罪のない猫を救い、幸せに繋げるためのシェルターを福岡に!

支援総額
目標金額 7,000,000円
- 支援者
- 174人
- 募集終了日
- 2023年1月20日

救う命を選ばない。どんな犬猫も保護し続け福岡の里親さんを増やしたい
#動物
- 現在
- 2,973,000円
- 支援者
- 281人
- 残り
- 1日

シンデレラサポーター募集「飼い主のいない猫」から「幸せな飼い猫」へ
#動物
- 総計
- 62人

ゆきねこサポーター募集中|保護猫シェルター幸せの家へご支援を
#環境保護
- 総計
- 111人

殺処分ワースト1位の福島県、まずはいわき市を殺処分ゼロへ!
#災害
- 総計
- 54人

たんぽぽの里サポーター募集中!保護活動に必要な費用にご支援を
#地域文化
- 総計
- 122人

にゃんこのしっぽサポーター募集★石垣島の捨てられた猫たちに治療を!
#動物
- 総計
- 124人

OneforMee@丹波 ☆安定した保護活動&医療費の継続支援募集
#まちづくり
- 総計
- 47人
プロジェクト本文
自己紹介
はじめまして。
私たち福岡地域猫連絡協議会は、福岡市で約30年間、犬、猫の保護、また、福岡市で10年間地域猫活動をやってまいりましたが、現在は主に飼い主のいない猫のTNR、保護活動、多頭崩壊、遺棄虐待防止活動を中心に行っています。
昨年、建て替えを控えた古いアパートに住みついた30頭の猫の緊急保護のため、クラウドファンディングを実施し達成することができました。
皆様のご支援を頂き30頭の猫達の保護、避妊去勢、その他の医療費に使わせて頂きました。(仔猫10頭保護・譲渡、成猫17頭保護・不妊手術、成猫リリース3頭、ケガが元での皮ふ疾患のため3ヶ月以上入院及び去勢手術となった1頭など)また、全頭のノミダニ駆除、ウイルス検査、真菌健康診断、避妊去勢手術、ケガの治療費、保護のためのケージ、猫トイレ(おしっこシート、チップ)、フードの購入などに使わせて頂きました。
クラウドファンディングの其々の担当者様のご指導の中、プロジェクトの掲載が始まり、皆様の力強いご支援、ご寄付を賜りお陰様で保護活動に専念する事が出来ましたことを大変有り難く感謝申し上げます。
猫達が住む空き家となったアパートまで自宅より遠いため、高速を利用、仕事の関係上や仲間との都合もあり1人で捕獲の時もありました。また、隣のマンションに猫嫌いの高齢男性がいて捕獲や餌やりに理解が得られず、揉めて警察のお世話になることもありました。しかし、皆様の暖かいご支援とボランティア仲間の協力によって全頭捕獲、保護、去勢手術他を無事に終了する事が出来ました。
普段から、猫に関わる様々な問題で悩んでいる方、困っている方の相談には昼夜を問わず可能な限り対応しています。猫達の命に関わる事であれば症状などを聞いて病院を紹介したり、手配をしたり、病院への送り迎えに車を出したりしています。小さな命を助けたい、少しでも困っている人の力になりたいと身体が動いてしまいます。
人との繋がりを大事に続けてきたことで、ボランティア仲間の皆さんが一生懸命方々に声を掛けて下さったおかげで支援に繋がり、皆さまの心の暖かさをより一層感じています。「 一時預かりさん」にお預けした猫ちゃんのお世話している間に愛着がわき、そのまま里親様になっていただいたことにとても心から感謝してます。
そして、遺棄された猫達、虐待を受けていた猫たち、野良の子猫や捨てられた子猫たちがやさしい里親さんのもとで猫ちゃん達が幸せに暮らせてるのが一番の喜びです。
プロジェクトを立ち上げたきっかけ
現在の保護環境では最近の保護頭数が多く一時預かりボランティアさん宅にも先住猫や犬がいる場合、ケージから出してあげれず、運動不足での肥満やウイルスキャリアの子はストレスからの発症がとても心配です。近々では4月から10月まで40頭の子達が譲渡できましたが、まだまだ保護しなくてはいけない子達がたくさんいます。自宅や預かりさんのキャパを考えると保護できないことに心が痛みます。
里親さんに譲渡するまでには少なくとも触れ、抱けるまで慣れておく必要があります。普段、ケージの中での飼育期間できるだけ優しく名前を呼んで話かけたり、遊んであげたりコミニュケーションを持つようにして信頼関係を構築する必要があります。
最初は「シャー!」と威嚇し、爪を立てパンチする子もやがて触れさせてくれるようになります。すんなり慣れる子もいるし、何年経っても抱けるまで行かない子もいます。 慣れない子は譲渡会では会場までのケージに入れて車での移動、慣れない会場での緊張状態などで萎縮してしまい、譲渡が決まらないことが多いです。未だにケージの中で過ごしている子達、その中にはエイズや白血病の子も含まれます。
「里親に出すまでのコミニケーション作り」と「ストレスがない状態で譲渡会が出来る場所」として、シェルターが必要だと感じました。
シェルターには光熱費を含め維持費が必要です。保護猫はウイルスキャリアの子も多く、白血病、エイズの子達の発症に係る医療費、健康診断、病気、怪我の治療費、避妊去勢手術費、ミルクやペットフード、トイレ関連の消耗品など様々な資金が必要になってきます。
ミニカフェでお茶をしながらゆっくり猫と触れ合いながら相性が合う猫を探していただく場とするとともに、仲間のボランティアさんによる 手作り品や野菜、果物の販売などで永続的収入源にできればと考えています。
また、ミニカフェで多くの方との交流で 地域猫の必要性の啓発やペットを飼っている高齢者の入院、施設入居などの問題の相談、行政に対する要望、意見などを考える場にしたいと思っています。
猫ちゃんが大好きで飼いたい方、猫ちゃんを飼いたくても飼えない方、ボランティアに興味があり協力したい方、猫ちゃんが安心して人間と共存していける社会作りを目指されてる方などに来ていただき猫ちゃんと触れ合いながら情報交換などに利用していただきたいと思っています。

昨今、集合住宅が増えたこともあり、人間関係も交流が希薄になって話し合うこともなく、お互い理解しあえなくなり誤解が生じ、トラブルの原因となってきています。その一つが猫問題です。糞尿、鳴き声などからご近所トラブルに発展。その結果、猫の虐待につながり命を落とす子が絶えなくなった事例もあります。また、ご近所トラブルから警察沙汰になって孤立、うつ状態になってる人もいます。
これらは「猫の問題」ではなく「人の問題」なのです。猫は被害者なのです。「猫」と「人」の幸せのためにどんな事でも耳を傾け、一人ひとりに寄り添い、 皆んなで解決の糸口を探して、 人も猫ちゃんも幸せになれる社会を 目指して行く事をモットーにしています。
社会の変化で人間関係も希薄になり 孤立を深めている方が多くなる中で ちょっとでも覗いて、猫ちゃんと触れ合いたい、癒されたい、ボランティアとして社会貢献したいと思える様な猫の魅力が生きる力となりえる事を多くの人と共有、共に命の大切さを伝えて行くことが一番の願いです。
プロジェクトの内容
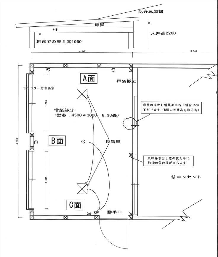
ケージの中の子達の解放・エイズ、白血病など感染症の猫の居場所づくり・猫達と人との触れ合いの場・小さな命の救援センター(遺棄や虐待、怪我、病気、飼育放棄など、他、新しい飼い主さんが決まるまでの一時預かりの場所としての役割)・相談窓口としての機能を備えた「譲渡シェルター兼ミニカフェ『猫ちゃん家(ち)』」を開設します。(2023年3月初旬予定)
施設名 :猫ちゃん家(ち)
所在地 :福岡市西区生の松原3−34−6
営業時間:午前10時から午後4時まで
利用料金:1000円予定
販売予定:手作り小物アクセサリーなど
【資金使途】
初期費用(見積金額):600万円(税込)
(仮設工事:49万/土留め工事:53.12万/基礎工事:35.2万/大工工事:231万/板金工事:21.4万/サッシ工事:45.4万/内装仕上げ工事:11.4万/塗装工事:15万/電気工事:18.4万/経費、その他:37万)
必要資金との差額は自己資金で補填しますが、不要な物のクレーンなどでの引き上げ場所変更で40万削減となる予定です。(これからも削減の方向で自分達で出きる所を交渉していきたいと思っています)
プロジェクトの展望・ビジョン
これまでのボランティア活動に携わる年齢層が高齢化してきてる中で、体力と共に資金面などでも困難を極めてる状況です。
行政との地域猫が進まない、以前にも増して仔猫が毎年増えている、虐待、遺棄の相談も多いなどで、地域猫活動に専念して更に行政との連携で動物と共存していける地域を目指しています。
又、高齢化に伴い入院、他取り残された猫ちゃんの保護活動の強化を包括地域支援センターと協力しながら行っていきたいと思っております。ご支援のほど、よろしくお願いいたします。

私たちは収入を目的に活動している団体ではないため、活動資金は自己負担で続けてきました。 保護活動からTNR、里親さんに出すまでの病気のケア、治療費、避妊去勢手術費、給餌費など、そのほか多くの時間も費やして来ました。
相談があっても、状況次第ではすぐ動けないことも。緊急を要する場合は悪天候でも救援に向かうなどしてますが、全ての猫に対応するには限界があります。 里親さんの所で幸せに暮している子もいれば、猫どうしの権力、縄張り争い、交通事故、心無い人からの虐待に遭ってしまう子など厳しい環境下で不安の中過ごしている野良ちゃんなどもいます。人と猫との多くの厄介な問題もTNRを主とした野良猫の個体数を減らす、いわゆる蛇口を閉めることで解決できると考えています。
また、高齢者の病気入院や施設への入居、また亡くなられた後に取り残された犬、猫の相談も絶えずあります。 人間関係、仕事の悩み、ペットロスの方などは猫ちゃんに寄って生きる希望が出て来たという方もいます。 このような悩める人たちに猫ちゃん達とのふれあいの場を提供しながら動物との共存社会の構築を目指して行きます。
- プロジェクト実行責任者:
- 砂田恵美子(福岡地域猫連絡協議会)
- プロジェクト実施完了日:
- 2023年3月31日
プロジェクト概要と集めた資金の使途
ケージの中の子達の解放・エイズ、白血病など感染症の猫の居場所づくり・猫達と人との触れ合いの場・小さな命の救援センター(遺棄や虐待、怪我、病気、飼育放棄など、他、新しい飼い主さんが決まるまでの一時預かりの場所としての役割)・相談窓口としての機能を備えた「譲渡シェルター兼ミニカフェ『猫ちゃん家(ち)』」を開設するための工事費用
リスク&チャレンジ
- プロジェクトを実施する上で必要になる資格や許認可について
- 第二種動物取り扱い業取得予定(2023年4月中旬)
- プロジェクトに必要な金額と目標金額の差額について
- 必要金額と目標金額の差額は自己資金にて補填いたします。万が一自己資金でも確保できなかった場合は、プロジェクトが大きく変わらない範囲で規模を縮小するなどして対応し、返金は致しかねます。
あなたのシェアでプロジェクトをさらに応援しよう!
プロフィール
10年前福岡地域猫連絡協議会の発足、個人的には20年以上前からの犬猫保護活動に 専念。現在は幅広くTNRの推進、多頭飼育崩壊、飼い主さんの病気入院中の猫の世話、里親探し、動物虐待防止などの活動など。
あなたのシェアでプロジェクトをさらに応援しよう!
リターン
3,000円+システム利用料

皆さまの暖かいご支援に感謝申し上げます。
【リターン不要】3000円応援コース
お礼のメール、活動報告書をお送りさせて頂きます。
- 申込数
- 67
- 在庫数
- 32
- 発送完了予定月
- 2023年2月
5,000円+システム利用料

皆さまの暖かいご支援により小さな命が救われます。有り難うございます。
【リーターン不要】5000円応援コース
暖かいご支援頂きありがとうございます。
お礼のメール、活動報告書をお送りさせていただきます。
- 申込数
- 68
- 在庫数
- 32
- 発送完了予定月
- 2023年2月
3,000円+システム利用料

皆さまの暖かいご支援に感謝申し上げます。
【リターン不要】3000円応援コース
お礼のメール、活動報告書をお送りさせて頂きます。
- 申込数
- 67
- 在庫数
- 32
- 発送完了予定月
- 2023年2月
5,000円+システム利用料

皆さまの暖かいご支援により小さな命が救われます。有り難うございます。
【リーターン不要】5000円応援コース
暖かいご支援頂きありがとうございます。
お礼のメール、活動報告書をお送りさせていただきます。
- 申込数
- 68
- 在庫数
- 32
- 発送完了予定月
- 2023年2月
プロフィール
10年前福岡地域猫連絡協議会の発足、個人的には20年以上前からの犬猫保護活動に 専念。現在は幅広くTNRの推進、多頭飼育崩壊、飼い主さんの病気入院中の猫の世話、里親探し、動物虐待防止などの活動など。












