
支援総額
目標金額 3,000,000円
- 支援者
- 133人
- 募集終了日
- 2024年6月30日

未来のパイロットを応援!AIRDO Lakseløp 2025
#観光
- 現在
- 1,061,000円
- 支援者
- 54人
- 残り
- 11日

児童養護施設平安養育院|子どもたちの「もっと遊びたい!」を叶えたい
#子ども・教育
- 現在
- 8,945,000円
- 寄付者
- 139人
- 残り
- 9日

道北の街角に“あかり”をともす移動飲食店バスを未来につなぐ
#地域文化
- 総計
- 5人

70年地域の食を支え続けるパン屋を「地域と人をつなぐ場」にしたい
#地域文化
- 現在
- 905,500円
- 支援者
- 83人
- 残り
- 2日

牛乳や牧場を一緒に学んで盛り上げる!クラフトミルクラボメンバー募集
#地域文化
- 総計
- 14人

藤岡発!やよいひめの魅力を全国へ!第4回いちごフェスプロジェクト
#地域文化
- 現在
- 80,000円
- 支援者
- 6人
- 残り
- 42日

日本一周経験者がご当地グルメを具に込めるおにぎりキッチンカーを運営
#地域文化
- 総計
- 0人
プロジェクト本文
終了報告を読む
■当別町産農作物でつくる生ジェラートで、世界へ通じる美味しさづくり
はじめまして、
株式会社一蓮の代表の濵屋幸佑です。
北海道の根室市生まれで、今は札幌市で
暮らしています。学生時代と、
ジェラート店の雇われ店長をしていた5年間を
過ごした当別町の農産物の魅力に再び光を
当てたいと思い、
生ジェラート店『uni』を開く準備をしています。
この町で感じた温かさと、新鮮で美味しい食材
を使ったジェラート店を通じて、
何か恩返しがしたいと考えたのが
生ジェラート店を始めよう
と思ったきっかけです。
大学時代から当別町の農産物の美味しさに
魅力を強く感じ、町の飲食店やふれあい倉庫(産
直市場のような場所)、そしてジェラート店店長
時代の実際の農家さんとの取引の中で町民の
方々の温かさや人柄に惹かれました。
今回新たな再出発として、
自分がオーナー兼店長となって当別町産農産物を
使った『生ジェラート』店を開きます。
レシピはジェラートの
「どんな食材もジェラートにできる」
という強みを活かし、
成分分析・計算をした緻密なレシピ構成を行い、
既存のジェラート店には存在しなかった
フレーバーづくりを行います。
私の夢は、
『世界に通じる「美味しい」ジェラートづくり』
です。
この地域から世界に羽ばたくブランドを作り、
地元の食材を使ったこだわりのジェラートが
広まることで、世界中の人に当別町の食材が
愛され、地域経済へ還元されることを
目指しています。
この挑戦に、あなたの支援と応援を是非お願いします!
■雇われ店長からオーナー店長へ。悔しさと学びを活かした当時の仲間たちと再出発をめざします
前店『氷菓専門店 二十三十二(ふとみとに)』
では、雇われ店長として立ち上げから従事
していました。独学でジェラートを学び、
何から何まで初めてのことばかりで
上手くいかないこともたくさんありましたが、
その当時のスタッフやお客様が応援をして
下さり、テレビや新聞、WEBメディアの方々
に取材いただけるような幸運にも恵まれました。
店長時代にメディアに取り上げていただいた記事がこちら
北海道新聞様記事 トリップイート北海道様掲載:
https://tripeat.hokkaido-np.co.jp/topics/60739/
よつ葉乳業様 よつ葉のおいしい時間掲載:
https://www.yotsuba.co.jp/common/pdf/story/time58.pdf
しかし、急遽お店を離れざるを得ない形
になってしまい、私が成し遂げたかったことが
中途半端に終わってしまいました。
共にお店を盛り上げてきた従業員たちも皆
同時に離れることとなり、
それまで築き上げたお客様・スタッフとの輪が
失われてしまったのです。
この悔しさをバネに、
お世話になった当別町への恩返しをすること
をやり遂げるため、株式会社一蓮という会社を
立ち上げ、当別町産農産物を生かした
生ジェラート店を開くことを決心しました。
一蓮という名前には、
『お客様、従業員、そして私含め全員が
また一つの場所に集まれるように』
という想いを込めて、
「一蓮托生」の本来の意味から「一蓮」
という言葉をとっています。
立ち上げにむけて、
それまで一緒に働いてくれていたスタッフも
「ぜひまた一緒にやりたい」と応えてくれており、
オープン当初から知識・経験のあるメンバーとの
事業開始が実現可能となりました。
また、前店舗で繋がりができた事業主様が
声をかけてくださり、既に卸販売・委託販売の
契約先が数件決まっており、
新たな出発への後押しをいただいております。
■本場イタリアでの研修を通して得た最新のジェラートづくり
再出発に向けて更なる知識と技術を求め、
2023年11月には本場イタリアボローニャの
『Carpigiani Gelato University』
での研修に参加してきました!
本場イタリアでは、
レシピの組み立て方は非常に理論的です。
糖分、脂肪分、水分量など全ての原料の組成分を
分析し、計算をして緻密なレシピの組み立て方を
行います。
そうすることで、-12℃程度の超低温下での
クリーミーな舌触りと適度な粘り気や食感を作る
ことができます。
イタリアでは、レシピ構築の基本から、
『アルコールジェラート』や
『ヴィーガンジェラート』
といった日本では聞き慣れない最新のジェラート
づくりも学ぶことができました。
文化や国民性、食事に関する価値観などイタリア
で過ごす日々の中で、イタリアの良さ、
そして改めて日本の文化や日本人らしさなどの
誇らしい部分が明確に理解できました。
本場イタリアと全く同じ提供方法では、
私はワクワクできません。
「日本で、北海道で店舗を構える意味」を考え、
「自分の店舗ではどういったジェラートとして
お客様へ提供するか」
といったことを考え出すと
様々な方法が頭に浮かんできて、
早くあなたと共有をしたい!!
とワクワクしております!
講習会の様子
■締めパフェ文化のある札幌から始める、持続可能なジェラート事業づくり
この度出店するのは、
北海道札幌市の円山地区周辺です。
札幌市にはすでに「締めパフェ」文化(夜飲み
終わりの締めにパフェを食べるという文化)
が根付いており、この地域は近辺に高所得層が
住むマンションや近代美術館、
また専門学校や大学といった、
多様な生活スタイルをもつ人びとの住む街です。
美術館に行った帰りに生ジェラートを食べて
いただいたり、仕事や学校の昼休憩や帰りに
生ジェラートを食べていただく、といった形の
「日常の中に当たり前にあるジェラート」
という姿を目指します。
店舗での販売を精力的に取り組みつつ、
一方で卸販売・委託販売向け商品の開発や
オンラインでの販売にも力を入れていきたい
と考えています。
ジェラートという商材はやはり夏の暑い期間に
1年の最大の売上をつくりますが、
冬にかけて売上が落ち込みます。
持続可能なビジネスモデルを目指して、
バーやレストラン、焼肉店や地産品スーパー
といった事業者向けの卸販売・委託販売向け
商品の開発、また、お中元やお歳暮向けの
ジェラートギフトECやふるさと納税への出品
も予定しているところです。
季節を問わない安定した事業基盤を構築する
ことで、北海道の新たな食文化として
ジェラートを根付かせることに挑戦して
いきたいと考えています。
店舗の名前は、
『uni(ウーニ)』⇒イタリア語で「唯一」の
意味を持ちます。
ここでしか味わえない特別なジェラート
という意味を込めてつけました。
店舗では
①『生ジェラート』
②『こころもち』
という2つの看板商品を用意しています。
『生ジェラート』とは、
出来立てのジェラートです。
私たちが口にしたことのあるジェラートは
実は出来立てとは大きく異なります。
私自身、初めて出来立てジェラートを食べた
ときは、ジェラートの概念が覆りました。
クリームのような滑らかな舌触りと
口に入れたときの風味の広がり方は、
ショーケースでは味わえない特別なひと時を
あなたに届けてくれるはずです。
uniでは、曜日ごとに異なる、その日しか
食べられない唯一のフレーバーを提供します。
毎日来ても驚きと楽しみを感じられる味を、
ぜひご賞味ください。
『こころもち』とは、
あなたの目の前でまごころを込めて、
ジェラートをお包みしてお渡しする商品です。
あなたのお好みのジェラート1フレーバーを
求肥で包み、トッピングをしてお渡しします。
見た目のかわいらしさだけでなく、
求肥のもちもち感がアクセントとなり、
ジェラートの美味しさをさらに引き立たせてくれます。
図.店舗ロゴ
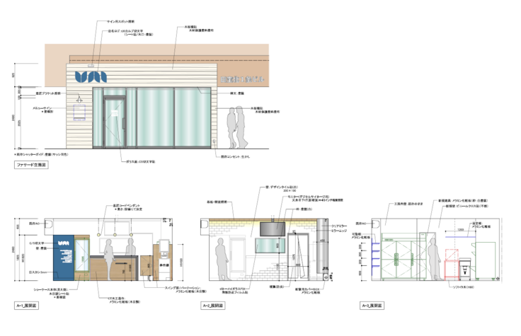
図.店舗外観イメージ
図.店舗内観イメージ①
図.店舗内観イメージ②
図.こころもちイメージ写真
■私のこだわり
私が作るジェラートは食材の美味しさを
120%まで引き出すことができます。
「ジェラートになったから美味しい」
「素材そのものより素材らしく」
を目指して、日々試作をしております。
また、『生産者の方の顔が見える商品』を
心がけており、
提供してくれた生産者様のお名前や
生産に関するこだわりなどは
積極的に見て頂きたいと思っております。
元々医療職ということもあり、
論理的に考えることが好きで、
食品を作るにあたっても
根拠をもって作りたいと考えていました。
「なぜ美味しいのか」
「なぜその食材とこの食材を組み合わせるのか」
「どうしてそのレシピ構成となるのか」
これら全てに自信をもって、
確固たる理由が欲しかったのです。
「自分が美味しいと思ったから」
といった理由は私の納得できる回答では
ありませんでした。
そこで原点でもある、
『人間が味や香りをどのように知覚するのか』
から勉強をし始めました。
図.『フレーバー・マトリックス 風味の組み合わせから特別なひと皿を作る技法と科学』(ジェイムズ・ブリシオーネ/ブルック・パーカースト 著、目時能理子/中村雅子 訳、SBクリエイティブ 刊行)より転載
※使用している画像はSBクリエイティブ株式会社より許諾を得て掲載しております。
このフレーバー・ペアリング理論を元に、
私はレシピの組み合わせを作っています。
『裏付けされた複数の食材の新たな組み合わせ』
が私の最も得意としている部分です。
「赤ワイン×珈琲×ココア」や
「オレンジ×花椒×ナツメグ」など、
一見合うとはとても思えない珍しい組み合わせの
新たな美味しさを生み出すことができます。
■再出発1歩目の生ジェラート店。夢は世界に通じる当別町産ジェラートブランド
株式会社一蓮のオーナー兼店長として、
また、前店の仲間たちとの再挑戦の一歩目
としての、当別町産の素材をふんだんに
使った生ジェラート店づくり。
このプロジェクトで最も大切にしたい店は、
『当別町の食材の美味しさを広く伝えたい』
ということです。
持続可能な店舗づくりをすることで、
継続的に当別町の食材の魅力を発信し
続ける仕組みへとつながり、
当別町を支える農家さんや地域経済へ還元
できると信じています。
地元の素材を活かした「記憶に残る味」
を追求し、来店した誰もがその味を
忘れられないような体験を提供していきます。
当別町産ジェラートブランドを確立していく
ことで、ゆくゆくは地域の素材が世界に
認められるように尽力していきます。
あなたの支援とともに、
このプロジェクトを成功させられれば幸いです。
ご協力をぜひよろしくお願いいたします!
■応援メッセージ
当別町経済部観光振興課
課長 佐藤太一郎 様
札幌市内での新店舗開業準備
が着々と進み、あの甘くて
濃厚なジェラートを再び
味わえること、ファンの一人
として心よりお祝い申し上げ
ます。 当別町内の大学を卒業
した濱屋様が第二の故郷として
当別町を気に入ってくださり
さらに当別町の農産品を使用
していただくなど、濱屋様の
開拓者精神は他の追随を
許さないものがあります。
そして、新店舗開業に向けて
様々な課題にチャレンジして
乗り越えていく様が目に浮かび
ます。
札幌の皆様!そんな濱屋様が
作る珠玉のジェラートを是非
ご賞味ください!
きっと一瞬でファンになる
ことでしょう。
ジェラート専門店「uni」で
皆様をお待ちしております。
有限会社 松岡商事
代表取締役 松岡 宏尚 様
濱屋くんの人柄、情熱は信頼に
値しますし、だからこそ色々な
人が応援、サポート、伴走
しているんだと思います。
そしてジェラート・食に対する
探究心、冒険心には頭が
下がります。濱屋くんが追い
求める「美味しさ」は
間違いなく美味しいものへと
昇華され、様々な人に愛される
スイーツとなること間違いない
でしょう。当別に恩返ししたい
という気持ちも嬉しいですが、
地元民としては、その気持ちを
持って様々な挑戦をしてくれて
いることにいつも感謝しています。
これから多くの人、メディアに
注目されること間違いなしですが、
その一歩目を応援出来ることを
誇りに、引き続き陰ながら応援させていただきます。
当別町農業
ファーマーズ・ガーデンびとえ
園主 青柳 文吉 様
本場イタリアにも足をはこび
ジェラート職人研修をつんだ
濱屋幸佑さんが、このたび
札幌市内にジェラートの専門店
「uni」を開きます。
濱屋さんはこれまで当別町の
ジェラート店を拠点に、
果樹やトウモロコシなど地元
食材を生かしたユニークな
ジェラートをつぎつぎに発表し、
たくさんの人をひきつけました。
型どおりのアイスは、いまや
どこにいても口にすることが
できますが、濱屋さんの
「ジェラート愛=研究熱心」
から生まれるアイスは、
半端なものではありません。
新しいお店でも、彼の本領を
遺憾なく発揮し、期待に応えて
くれることを保証します。
一度ジェラート専門店「uni」
のジェラートを味わったあなた
は、かならずこのお店の〈虜〉
になることでしょう。
■プロジェクトの内容
住所:札幌市中央区北1条西19丁目1-4
オープン予定日:2024年6月中旬頃
店名『uni(ウーニ)』⇒イタリア語で「唯一」の意味
ここでしか味わえない特別なジェラート
という意味を込めて付けました。
スケジュール(仮):
2024年
5月中旬~下旬 内装工事着工、機材搬入設置
5月末 試運転、試作開始
6月上旬 プレオープン(1週間程度)
6月中旬 オープン予定
9月末 ECサイト、ふるさと納税開始予定
※5月1日時点での予定であり、変更になる可能性があります。
■私の経歴
出身:北海道根室市
現在の居住地:札幌市
経歴:
2012年 根室高等学校卒業
2013-2017年 北海道医療大学 入学・卒業
2017-2022年 国立病院機構仙台西多賀病院勤務
2022-2023年 当別町にて『氷菓専門店 二十三十二』店主として従事
2023年10月 北海道大学病院勤務
2024年3月 株式会社一蓮設立
- プロジェクト実行責任者:
- 濵屋幸佑(株式会社一蓮)
- プロジェクト実施完了日:
- 2024年6月30日
プロジェクト概要と集めた資金の使途
株式会社一蓮が『Gelateria uni』を開店し、 新商品開発に必要なサンプル製造機や開店に伴う設備資金533万円の一部に使用させて頂きます。 2024年 5月中旬 内装工事着工 5月下旬 工事完了&機材搬入設置 6月上旬 試運転&プレオープン 6月中旬 オープン予定
リスク&チャレンジ
- プロジェクトを実施する上で必要になる資格や許認可について
- プロジェクトを実施するためには、食品衛生法上の営業許可①アイスクリーム類製造業②飲食店営業 の二つが必要になります。申請手続きは進行中であり、2024年6月上旬ころには完了予定となっております。(2024年4月14日時点)
- リターンを実施する上で必要になる資格や許認可について
- プロジェクトを実施するためには、食品衛生法上の営業許可である①アイスクリーム類製造業②飲食店営業 の二つが必要になります。申請手続きは進行中であり、2024年6月上旬ころには完了予定となっております。(2024年3月3日時点)
- プロジェクトに必要な金額と目標金額の差額について
- 必要金額と目標金額の差額は、自己資金および銀行融資にて補填します。
あなたのシェアでプロジェクトをさらに応援しよう!
プロフィール
出身:北海道根室市 年齢:30歳 目指す場所:世の中の『当たり前』を新たに創り出す 大切にしていること:『人とのつながり』『一人の限界』『身体が資本』 得意なこと:『一つの事柄を追求すること』『わかりやすく物事を伝えること』『わくわくを共有すること』
あなたのシェアでプロジェクトをさらに応援しよう!
リターン
1,000円+システム利用料
感謝のメール
感謝のメールを報告します。
- 申込数
- 4
- 在庫数
- 制限なし
- 発送完了予定月
- 2024年7月
2,000円+システム利用料
活動報告
・活動報告書(PDF形式でメールで送付)
- 申込数
- 3
- 在庫数
- 制限なし
- 発送完了予定月
- 2024年7月
1,000円+システム利用料
感謝のメール
感謝のメールを報告します。
- 申込数
- 4
- 在庫数
- 制限なし
- 発送完了予定月
- 2024年7月
2,000円+システム利用料
活動報告
・活動報告書(PDF形式でメールで送付)
- 申込数
- 3
- 在庫数
- 制限なし
- 発送完了予定月
- 2024年7月
プロフィール
出身:北海道根室市 年齢:30歳 目指す場所:世の中の『当たり前』を新たに創り出す 大切にしていること:『人とのつながり』『一人の限界』『身体が資本』 得意なこと:『一つの事柄を追求すること』『わかりやすく物事を伝えること』『わくわくを共有すること』













