
支援総額
目標金額 600,000円
- 支援者
- 50人
- 募集終了日
- 2016年9月21日
新しいお店の場所とロゴとデザイン資料
ネクストゴールへ向けた再出発。
一度達成したにも関わらず新しいご支援を
更に頂戴しております。
誠にありがとうございます!
残り期間はあと6日。
次の目標までたどり着くと本当の意味で
やり遂げたような気持ちになります。
今回の新着情報は新しいお店の場所とロゴ。
それとデザインの新旧です。
新しいお店は
東京メトロ日比谷線3番出口から徒歩1分
都電荒川線三ノ輪橋駅から徒歩3分
駅からとても近くにあるのと、
とても目立つ場所にあります。
近くにはトイボックスさんという
ミシュランを獲得したラーメン屋さんがありますが、
新しい三ノ輪の飲食スポットになればと思っています。
新しいお店のロゴは今までのを周到しながらも、
長年の高橋さんの想いだったワインを楽しんで頂くイメージ
87とは、最初にオープンしたのが1987年。
それと花という意味と、
花をフランス語でフレールと言うのですが、
色々な意味が込められています。
今回、谷中店を出してから15年経っているのですが、
デザイン手法もアナログからデジタルになっています。
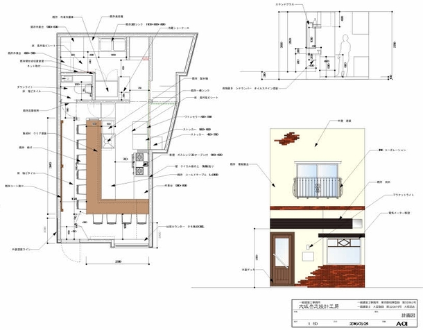
今回はとても急な移転だった為資料が少なめなのと、
15年で2店舗目、30年で3店舗目では、
高橋さんご自身のキャリアが全く違ったので、
そういう意味でも今回のお店づくりは大変でした。
まずは15年前の資料から。


当時はこれが普通だったようですが、
とても細かくてすごいですね。
手書きでここまで書けるのもすごいと思います。
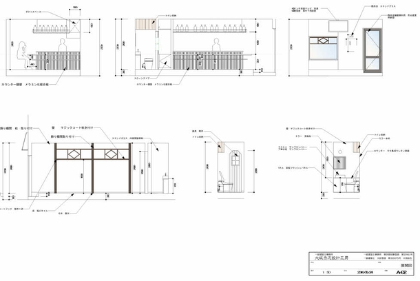
そして今回の資料。


ここまで来るのに何枚も書きなおしをしていて、
最初とは違うデザインになっているのと、
工事をしながらも高橋さんのご経験で、
ここはこう、あそこはこうという指示もありました。
今回の職人さんたちは飲食店の経験も豊富で、
自宅がすぐそば!という幸運にも恵まれて、
少し大変でしたが最終的にはとても可愛いお店が出来ました。
現在の高橋さんはいよいよ新しい厨房で
仕込み作業を始めたそうです。
オープン日やレセプションパーティーも調整します。
ネクストゴール達成まであと少し。
引き続きご支援のほどおろしくお願い致します。
リターン
1,000円
ハウスワイン無料券(3杯まで)
移転後新規御来店お食事の際にハウスワインを3杯まで無料でお付け致します。
(写真はあくまで参考です。)
*有効期限 平成29年6月まで
- 申込数
- 1
- 在庫数
- 制限なし
- 発送完了予定月
- 2016年10月
2,000円

新規ご来店時お食事券(3000円相当分)
移転後新規御来店お食事の際に3000円分の食事券としてご利用いただけます。
(写真はあくまで参考です)
*有効期限 平成29年6月まで
- 申込数
- 11
- 在庫数
- 制限なし
- 発送完了予定月
- 2016年10月
1,000円
ハウスワイン無料券(3杯まで)
移転後新規御来店お食事の際にハウスワインを3杯まで無料でお付け致します。
(写真はあくまで参考です。)
*有効期限 平成29年6月まで
- 申込数
- 1
- 在庫数
- 制限なし
- 発送完了予定月
- 2016年10月
2,000円

新規ご来店時お食事券(3000円相当分)
移転後新規御来店お食事の際に3000円分の食事券としてご利用いただけます。
(写真はあくまで参考です)
*有効期限 平成29年6月まで
- 申込数
- 11
- 在庫数
- 制限なし
- 発送完了予定月
- 2016年10月

【静岡県竜巻】緊急支援を開始!被災地を応援してください
- 現在
- 568,000円
- 寄付者
- 69人
- 残り
- 19日

義足ユーザーの「走りたい」を叶えたい サポーター募集
- 総計
- 28人

「防衛技術博物館を創る会」のマンスリーサポーターを募集します!
- 総計
- 530人

ワンラブ助っ人募集中!|ルワンダでずっと義足を作り続けるために!
- 総計
- 87人

にゃんたまサポーター!~80匹の譲渡が叶わない猫と暮らす旅館~
- 総計
- 111人

“鉄道を撮る、鉄道に乗る”を楽しむ活動で鉄道会社を応援したい!
- 総計
- 43人

牛乳や牧場を一緒に学んで盛り上げる!クラフトミルクラボメンバー募集
- 総計
- 14人













