
支援総額
目標金額 1,000,000円
- 支援者
- 27人
- 募集終了日
- 2022年10月31日

貧困・虐待などで親を頼れない若者に伴走支援を|若者おうえん基金
#子ども・教育
- 現在
- 7,221,000円
- 支援者
- 339人
- 残り
- 6日

奨学金の原資が不足しています│未来応援奨学金にいがた2025
#地域文化
- 現在
- 1,745,000円
- 支援者
- 93人
- 残り
- 29日

『d design travel』を続けたいvol.36 徳島号
#地域文化
- 現在
- 742,000円
- 支援者
- 69人
- 残り
- 29日

丸岡城下に新たな歴史を 日向御前・国姫の顕彰モニュメントを未来へ
#地域文化
- 現在
- 6,320,000円
- 支援者
- 78人
- 残り
- 19日

開湯400年!お客様を温かくお迎えする歓迎標のリニューアルに挑戦!
#地域文化
- 現在
- 4,512,000円
- 支援者
- 235人
- 残り
- 22日

佐賀・呼子| 甚六サウナ・ホテルなど続々開業!鯨をしるべに町を興す
#地域文化
- 現在
- 3,735,000円
- 支援者
- 32人
- 残り
- 29日

清瀬市から未来へ— 幻のロマン客車「夢空間」の鼓動を、再び。
#地域文化
- 現在
- 2,329,064円
- 支援者
- 115人
- 残り
- 9日
プロジェクト本文
終了報告を読む
自己紹介
薩摩半島の南端に位置する枕崎市は平均気温約18度と温暖な気候で、南国らしい太陽と潮香る街です。
東シナ海を望む景色は三島、屋久島などの島や薩摩富士と呼ばれる開聞岳と一体となり、南九州でも随一の大パノラマが広がります。
南側海岸線は枕崎漁港を中心に全国最多のかつお節の生産量を誇り、かつおの水揚げ量も全国2番目と名実ともに鰹の街です。また日本本土最南端の始発・終着駅の枕崎駅があり、鉄道ファンのメッカともなっています。
私たち一般社団法人地域商社まくらざきは、その枕崎に眠る地域資源を再発掘し、地域活性のために事業化を行っている地域商社です。
枕崎特産の鰹節や焼酎のふるさと納税事業、パッションフルーツなどの地域資源ブランド化事業、スノーピークと提携しコワーキングスペースの開設による関係人口作りなど、未来へ繋げる活動を行なっています。
プロジェクト立ち上げのきっかけ
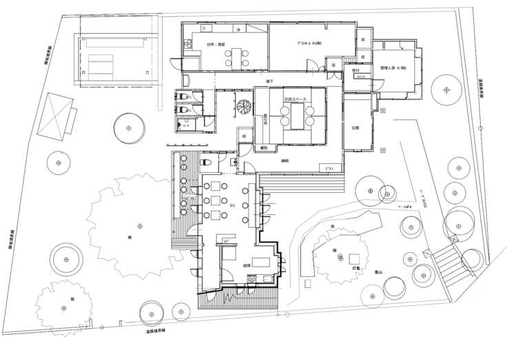
枕崎駅から徒歩5分ほどの中心街にある築100年の古民家。
この古民家は大正時代より歴代医師としてこの地で活躍された尾辻氏の邸宅で、枕崎市の市街地の9割が焦土となった昭和20年7月29日の枕崎大空襲で奇跡的に戦災を免れました。
この歴史ある邸宅も空き家として10年の時が経ち、台風や地震が発生した場合の危険性を考慮し解体の話が出ていたところ地域資源の保全と活用のため、一般社団法人地域商社まくらざきが手をあげ、古民家再生プロジェクトが立ち上がりました。
枕崎市の人口は1955年の3万5千人をピークに少子化と若者の都市部への人口流出により年々減少し現在では2万人を割り込んでいます。
シャッターが閉まったままの店舗や空き家、空き地が目立つようになり、街の賑わいの象徴だったアーケードも撤去されました。
人口減が続く中でも、枕崎にはかつお節や最南端の始発・終着駅枕崎駅、焼酎さつま白波など全国に誇る地域資源があります。
そうした地域資源を求めて訪れて頂ける方に気軽に集い宿泊ができる拠点として、古民家をカフェ、ゲストハウスに再生します。
地域外から来て頂ける人と、地域の人が出会い、会話し、新たなつながりが生まれる、そんなゲストハウス、コミュニティカフェを目指します。
プロジェクト内容
枕崎市の未来あるまちづくりの一端を担うという想いのもと、拠点名を個と個と紡ぐ「KoToKoTo」と名付けました。
KoToKoToでは古民家ならではの実家に帰ってきたような安心感、リノベーションによる快適な空間でお越し頂ける皆様がくつろぎ、居心地の良い空間にしていきたいと思っています。
カフェはテラス席を設け、春には桜を見ながらゆったりとアットホームな雰囲気で、地域内外の人々が交流し繋がる場所にします。
皆様に気軽にお越しいただけるよう、リーズナブルな金額設定にしたいと思っております。
・ゲストハウス:1泊 4,000円前後〜(一部除く)
※ドミトリー部屋、個室、貸し切り対応可
※ご予約はこちらから:https://reserva.be/makurazaki
※2023年8月現在の情報に更新いたしました/READYFOR事務局
|資金使途
クラウドファンディングでの資金は以下のゲストハウス、コミュニティカフェの内装設備/什器備品の購入費等として利用させて頂きます。
ベッド・テーブルなどの家具:約20万円
テラス席の整備:約15万円
キッチン、冷蔵庫、洗濯機などの家電:約40万円
お礼の品:5万円
手数料、税:約20万円
計:100万円
なお、総事業費600万円を見込んでおります。
耐震・補修・改修工事の500万円は自己資金により捻出する予定です。
注目リターン品
<かつおラーメン>
枕崎市にある鹿児島水産高等学校は、県内唯一の水産・海洋系高校として実習船をはじめ特色のある教育活動を展開している学校です。食品工学科では、生徒自ら農水産物の加工から販売まで行っており、地元のイベントにも積極的に参加しております。
そんな食品工学科の生徒が全国生産量の約4割を占めている地元枕崎産かつお節を使った「枕崎かつおラーメン」の和風しお味のスープを考案しました。しっかりとした塩味の中にかつおのお出汁の味が感じられるスープです。
<CAMPING OFFICE OSOTO MAKURAZAKI>
アウトドア総合メーカー・スノーピークとのコラボによる、まるでキャンプ場のようなシェアオフィス・コワーキングスペースが「Camping Office osoto Makurazaki」です。
これは、地域資源からビジネスを生み出すことを目指す一般社団法人「地域商社まくらざき」が掲げるチャレンジのひとつ、関係人口創出事業の一環で、空きビルを利用したもので、オフィス内は人工芝にテントやアウトドアチェアなど、キャンプ気分を味わえる開放的な空間できっと仕事もはかどるはずです。
屋外には芝生エリアもあり、天気の良い日は、外にタープを張り、開放的なミーティングも可能です。
応援コメント
|尾辻病院:尾辻院長(空き家提供)
この家は築100年ではありますが、木材は坊津のお寺のものを使っていると家族から聞いています。数ある台風を乗り越えた古民家で、枕崎市も少子高齢化が進む中、古民家再生により地域活性化につながることを期待します。
枕崎にはお茶、かつお、焼酎など全国に誇る特産が多くあります。その特産品を活かしたカフェやゲストハウスにしていただければと思います。
コロナが落ち着いたら高齢者の方も含め、年代関わらずいろんな方が交流する場となればと思っています。
|枕崎市地域おこし協力隊:大橋さん
枕崎市の地域おこし協力隊(関係人口創出・移住定住促進事業担当)の大橋です。
私はこの古民家再生プロジェクトを応援します!
東京出身で枕崎に縁もゆかりもなかった私ですが、枕崎は本当に魅力溢れる場所です!
まず何より食のレベルが高すぎる!カツオが好きでよく東京でカツオのたたきを食べていたのですが、日本でも有数の漁港がある枕崎ではカツオを生で食べれます!生のカツオですが、臭みなど全くなくマグロ?と思ってしまうくらいの美味しさです。そしてそれがスーパーで手頃な金額で売ってる驚き、、
また焼酎ではあのさつま白波の酒蔵があったり、戦艦大和が沈んだ海を見れたり、、食・酒・歴史で魅力溢れる場所が枕崎です。
その枕崎の魅力をもっといろんな方に知ってほしい、、そのための交流する、泊まる拠点として古民家再生プロジェクト=KoToKoToが役割を担ってくれると信じています。
|枕崎生まれ、枕崎育ち、枕崎大好き、枕崎在住:山下さん
私には夢があります。
暖かい陽射しのなか、背中を丸め愛猫をなでながら大好きな花木の香りを感じ、その時飲みたいものを飲み、食べたいものを食べ、できないことが増えてもその失敗を笑い飛ばしてくれる家族や友人に囲まれて過ごすおばあちゃんになること・・。私がおばあちゃんになっているはずの2060年あたりには、人口7000人のまちになってしまう勢いのこのまちで、今私たちができること、、、。
その私の夢をかなえるために、いろんな個性を持った人が、それぞれの幸せを1分1秒でも多く感じられる生き方、活き方、逝き方ができる場所を創りたい。
そう心に決めた時を同じくして、この古民家再生事業!!!ワクワクしかありません!!!思い描く枕崎の暮らしを叶えるために重要なこの場所は、枕崎に暮らす人にも世界各地で頑張っている枕崎を心の拠り所にしている人にも、個と個を繋ぐかけがえのない場所になるでしょう。私も『私が今できること』で応援していきます。
|枕崎市地域おこし協力隊:中村さん
4月から地域おこし協力隊として枕崎で活動している中村です!
私は、枕崎の観光に関する情報発信をメインに活動をしています。新しい枕崎の魅力としてゲストハウスの完成が楽しみです!ぜひ完成した際は取材に行かさせてください!
|枕崎市地域おこし協力隊:今さん
4月から地域おこし協力隊としてスポーツを中心とした活動をしている今です!メインとしている活動は女子硬式野球クラブチームの創設です。
ゲストハウスの完成が楽しみで、ワクワクしています!ゲストハウスが完成したらスポーツを通して、利用させて頂きたいとも密かに思っています!!
プロジェクト展望
枕崎にはかつお節や最南端の始発・終着駅枕崎駅、焼酎さつま白波など全国に誇る地域資源があります。その地域資源を求めてお越し頂いた方、地域の方が出会い、交流し、未来へつながる拠点を目指します。
皆様の応援お待ちしております。どうぞよろしくお願いいたします。
- プロジェクト実行責任者:
- 下竹重則(一般社団法人地域商社まくらざき)
- プロジェクト実施完了日:
- 2022年11月30日
プロジェクト概要と集めた資金の使途
クラウドファンディングでの資金は以下のゲストハウス、コミュニティカフェの内装設備/什器備品の購入費等として利用させて頂きます。 ベッド・テーブルなどの家具:約20万円 テラス席の整備:約15万円 キッチン、冷蔵庫、洗濯機などの家電:約40万円 お礼の品:5万円 手数料、税:約20万円 計:100万円
リスク&チャレンジ
- プロジェクトを実施する上で必要になる資格や許認可について
- プロジェクト実施のためには宿泊法及び食品衛生法上の営業許可(飲食店営業許可)が必要となります。現在手続きを進めており2022年11月30日には取得できる見込みとなっています。
- リターンを実施する上で必要になる資格や許認可について
- KoToKoToゲストハウスの宿泊法・旅館法(簡易宿泊所等)及び食品衛生法上の許可(飲食店営業許可)が必要となります。現在手続きを進めており2022年11月30日には取得できる見込みとなっています。
- プロジェクトに必要な金額と目標金額の差額について
- 必要金額と目標金額の差額は自己資金にて補填いたします。 万が一、自己資金でも確保できなかった場合はプロジェクトが大きく変わらない範囲で規模を縮小するなどして対応し、返金は致しかねます。
あなたのシェアでプロジェクトをさらに応援しよう!
プロフィール
あなたのシェアでプロジェクトをさらに応援しよう!
リターン
3,000円+システム利用料
【3,000円】感謝コース
お礼のメール&お名前を自社WEBサイトへ表記
- 申込数
- 5
- 在庫数
- 制限なし
- 発送完了予定月
- 2022年12月
3,000円+システム利用料

【3,000円】カフェ付きリモートワークプラン(1回分)
CAMPING OFFICE OSOTO MAKURAZAKI終日利用券1枚、カフェ利用券1枚(有効期限 発行日から6ヶ月内)
- 申込数
- 2
- 在庫数
- 48
- 発送完了予定月
- 2022年12月
3,000円+システム利用料
【3,000円】感謝コース
お礼のメール&お名前を自社WEBサイトへ表記
- 申込数
- 5
- 在庫数
- 制限なし
- 発送完了予定月
- 2022年12月
3,000円+システム利用料

【3,000円】カフェ付きリモートワークプラン(1回分)
CAMPING OFFICE OSOTO MAKURAZAKI終日利用券1枚、カフェ利用券1枚(有効期限 発行日から6ヶ月内)
- 申込数
- 2
- 在庫数
- 48
- 発送完了予定月
- 2022年12月












