
支援総額
目標金額 98,000円
- 支援者
- 21人
- 募集終了日
- 2017年5月22日
学校建設についてご報告です!
今回のプロジェクトとは直接関係ありませんが、アーチアフリカで進めている学校建設について報告させて頂きます!写真とともにご覧ください!
そして今回支援をしていただいた方もありがとうございます。

▲学校は小学校(primary school)から高等学校(high school)が一体になっています。この写真は学校に通う人たちです。

▲私たちは学校と寮を増築します(子供が増えてきて寮と教室が狭い為)。資金はマラウイ政府から出ています(文化庁より)。私たちも少額の寄付(設計を無償で行うという間接的な寄付)をおこないました。

▲寮の中の様子です。2段ベットが敷かれていますが、この2段ベットを4人で使っています(1段を2人で使用)。とても狭いので増築をしています。
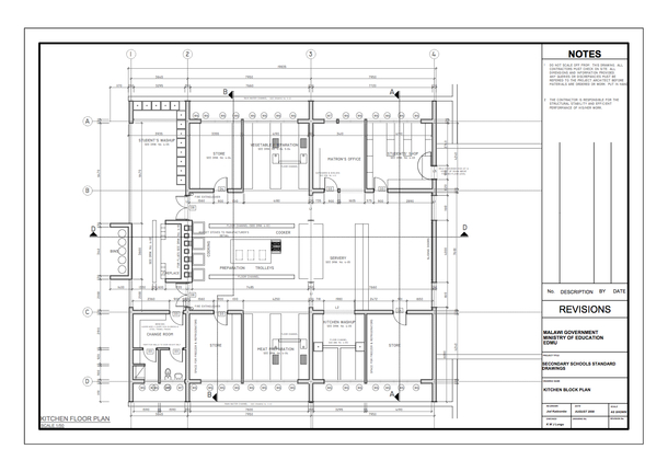
▲学校の設計図です。現在の学校とほぼ同じ間取りなので、難しくなかったのですが、マラウイではレンガを構造材にするので、そこが日本と違っていて難しかったです。
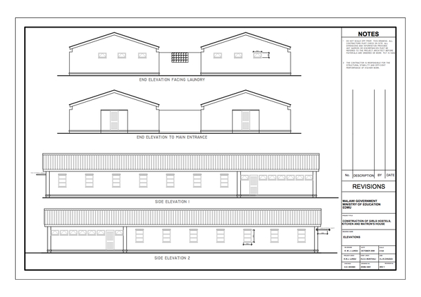
▲立面図です。電気は通っていない(電気が通っているのはマラウイ全体で30%程度)ので、太陽光を使います。太陽光は南アフリカ産の物を使用しています。しかし、蓄電池が高い!学校の建設費と同じくらいです。今年テスラから安い蓄電池が出るそうなので楽しみです。
またアーチアフリカのプロジェクトをお伝えして行きます。引き続き宜しくお願い致します。
リターン
1,000円

~マラウイからあなたにコーヒーを1つプレゼントします~
・アフリカでも有名なマラウイのコーヒーである「リロングウェコーヒー」を80g×1つをお送りします。
香ばしく、飲み易く、酸味のある、試飲会をした時は大好評のコーヒーです!
- 申込数
- 7
- 在庫数
- 制限なし
- 発送完了予定月
- 2017年11月
1,000円

~プロジェクト応援コース~
・readyforへの手数料を差し引いたご支援のすべてが現地のプロジェクト実施のために使われます。
- 申込数
- 5
- 在庫数
- 制限なし
- 発送完了予定月
- 2017年11月
1,000円

~マラウイからあなたにコーヒーを1つプレゼントします~
・アフリカでも有名なマラウイのコーヒーである「リロングウェコーヒー」を80g×1つをお送りします。
香ばしく、飲み易く、酸味のある、試飲会をした時は大好評のコーヒーです!
- 申込数
- 7
- 在庫数
- 制限なし
- 発送完了予定月
- 2017年11月
1,000円

~プロジェクト応援コース~
・readyforへの手数料を差し引いたご支援のすべてが現地のプロジェクト実施のために使われます。
- 申込数
- 5
- 在庫数
- 制限なし
- 発送完了予定月
- 2017年11月

緑と笑顔あふれる森の教室を再び!東原小学校森の教室リフォーム計画!
- 現在
- 638,000円
- 支援者
- 89人
- 残り
- 39日

ごかつら池どうぶつパーク|命を守り、次世代へ繋ぐ小さな動物園の挑戦
#観光
- 現在
- 5,783,000円
- 支援者
- 365人
- 残り
- 35日

【第二弾】法隆寺金堂、火災で失った色彩|「鈴木空如」模写絵を未来へ
- 現在
- 1,450,000円
- 寄付者
- 61人
- 残り
- 28日

沖縄が誇る歴史文化をつなぐ 琉球びんがた事業協同組合50年目の挑戦
- 現在
- 1,295,000円
- 支援者
- 61人
- 残り
- 14日

東京国立博物館|価値ある文化財を救い出す。源氏物語図屏風、修理へ
#伝統文化
- 現在
- 61,845,000円
- 寄付者
- 2,866人
- 残り
- 28日

豪雨災害で崩壊した参道修復を。重要文化財・舟城神社を未来へ繋ぐ。
- 現在
- 4,605,000円
- 支援者
- 69人
- 残り
- 7日

消滅寸前・住民3人の秘境|心と身体を整える「雲隠れの里」に再生へ
- 現在
- 7,835,000円
- 支援者
- 234人
- 残り
- 18日










