
支援総額
目標金額 2,880,000円
- 支援者
- 63人
- 募集終了日
- 2016年6月3日

能登半島地震で全壊した須須神社奥宮|再建を叶え、ミホススミ神に光を
#地域文化
- 現在
- 1,250,000円
- 支援者
- 45人
- 残り
- 55日

コウノトリと共に生きる郷づくり~環境保全プロジェクト~
#まちづくり
- 現在
- 32,000円
- 寄付者
- 6人
- 残り
- 35日

東京国立博物館|価値ある文化財を救い出す。源氏物語図屏風、修理へ
#伝統文化
- 現在
- 61,730,000円
- 寄付者
- 2,858人
- 残り
- 29日

丸岡城下に新たな歴史を 日向御前・国姫の顕彰モニュメントを未来へ
#地域文化
- 現在
- 6,320,000円
- 支援者
- 78人
- 残り
- 19日

開湯400年!お客様を温かくお迎えする歓迎標のリニューアルに挑戦!
#地域文化
- 現在
- 4,500,000円
- 支援者
- 234人
- 残り
- 22日

佐賀・呼子| 甚六サウナ・ホテルなど続々開業!鯨をしるべに町を興す
#地域文化
- 現在
- 3,635,000円
- 支援者
- 31人
- 残り
- 29日

地域文化を残し、課題を創造的に解決する 『めぐる、友の会』会員募集
#地域文化
- 総計
- 100人
プロジェクト本文
淡路島の登録有形文化財「春陽荘」が、島の観光資源に生まれ変わる!
◇◆◇2016年10月オープンへ◇◆◇
私たちと一緒に「春陽荘」を守り継いでくれる同志を募集しています!
はじめまして、高山傑(まさる)と申します。淡路島に移住をして10年程が経ちました。元々は、自然が豊かで町並みの景観が美しく、お祭などの行事を通して地域住民の結束が強く、海の幸や郷土料理が美味しい地を求めて移住を決意しました。しかし、人口の高齢化や後継者不足、効率を追求した運営への転換などで、現在の島の景観や生活は急速に変わりつつあります。
昨年より修繕作業を重ねている「春陽荘」もまた、所有者の高齢化により手放さざる負えなくなったものの一つです。完成から75年にわたり守り継がれてきたこの建物は、歴史的景観や造形に優れ、再現が容易でないという観点から、平成16年に国の登録有形文化財となっています。
この歴史ある春陽荘を失くさないためにも、私たちは昨年、自己資産を投入し、自分たちの手で守っていこう!と買い取りを決め、修繕作業を重ねてきました。しかし、修繕する必要がある箇所はまだまだ多くあります。
そこで、春陽荘を守り継ぎ、淡路島の新たな観光資源として生まれ変わらせるお手伝いをして頂ける同志を募ることを決めました!みなさま、応援お願いします!
75年前、風水の思想を元に建てられた「春陽荘」
和風建築の母屋と近代的な要素を取り入れた洋館が調和した
美しい建築景観を再び取り戻す!
春陽荘は、昭和16年に地元の造船会社社長が自宅兼事務所として建てました。家相方位学の権威である風水の思想にもとづき山本豊圓氏が設計し、施工は地元の大工棟梁斉藤 三吉の手により建てられています。
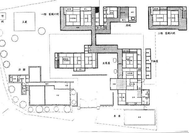
約1,400 ㎡の敷地に、①常住殿②会社の事務所・応接室として使用されていた洋館③寝殿④客殿など、八棟が建てられており、平成16年には国登録有 形文化財に指定されました。
また、美しい和風建築の母屋と近代的な要素を取り入れた雰囲気のある洋館、さらには、建築家の出江寛氏により設計された塀と門扉も母屋等と調和し、美しい建築景観を創りだしています。
その後1973年には、飲食業などを営む米田家がこの邸宅を所有し、生活の場として利用していましたが、引っ越しを機にこの邸宅の文化的価値を知ってもらうため、一般公開をはじめられました。しかし、築75年が経過しているため、一般公開を続けていくには、建物の修繕が必要となっています。
淡路島の伝統と文化を後世へ
島が誇る文化や風習を伝承されるための施設として生まれ変わる「春陽荘」
これまで補修工事だけで1,100万円程の自己資金を投入し、ボランティアにも協力して頂きながら、全施設の地震で歪んだ基礎から雨漏りのある屋根までといった場所の修繕作業を、五ヶ月程の時間を費やし、全て手作業で進めてきました。しかし、一般公開するにはまだまだまだ手を加える必要がある場所が残っている状態です。
そこで今回は、主屋・寝殿・客殿・洋館において地震で剥離した土壁を修繕しようと考えています。75年間、一度も手を加えられることがなかった土壁は、梅雨や台風時の雨漏り対策がされておらず、地震でのひび割れや基礎がむき出しとなり更なる風化と侵食により悪化するため修繕を行う必要があります。そして、これから先の未来も淡路島の観光資源として大切な「春陽荘」を雨風から守っていってほしいと思います。
再び、建設当時の美しい景観を取り戻した「春陽荘」は、みなさまに一般公開します。さらに建物内部では、地域住民にも協力して頂き、淡路島の伝統と魅力を島の外から足を運んで頂いた方々にも伝えていく催し物を開催していきたいと思います。
【春陽荘での催し物(一例)】
◇伝統工法や建築材料を紐解くように解説する語り部の養成
◇お茶室での茶道体験や大広間を利用した淡路浄瑠璃の公開
◇昔遊びや書道教室等の開催
◇淡路名産玉ねぎでの草木染、線香作りや郷土料理教室の体験学習 など
生まれ変わった春陽荘
観光資源化と持続可能な有形・無形文化財の維持・継承目指して!
今回のプロジェクトを通して、春陽荘は「島が誇る文化や風習を伝承されるための施設」に生まれ変わります。島に観光資源ができることで、淡路島に足を運んでくれる方々を増やし、さらに、近隣のお年寄りがここに集まり、世代を越えて島の伝統や文化を島外の人たちに伝えていく場になってほしいという思います。
また、婚礼など住民の集いの場としても使ってもらえるような場所にしたいと強く願っています。そのためにも、まずはみなさまにお越し頂ける状態まで完成させる必要があるのです。
みなさま、私たちの同志になって頂けないでしょうか?
応援どうぞよろしくお願いします!
支援金の使用用途
登録有形文化財「春陽荘」の保存に必要な改修作業(左官工事)の一部資金に充てさせて頂きます!
①内部既存壁の除去費用
②墨だし・土中塗り費用
③淡路土・のり差仕上げ費用 など
リターンのご紹介
READYFORでご支援頂いたみなさま限定に、心ばかりではございますが、
完成した「春陽荘」をご利用頂けるリターンや淡路島の名産品等を準備致しました!
ぜひ応援して頂ければと思います。よろしくお願い致します!
【3,000円】
①サンクスメール
②淡路島銘菓をお茶をお茶室や寝殿でお楽しみ頂けます
*まずは施設を見学してください。(予約制)

【10,000円(お越し頂ける方向け)】
①サンクスメール
②淡路島銘菓をお茶をお茶室や寝殿でお楽しみ頂けます
*1〜4名対応可能 予約制
*まずは施設を見学してください。
③はがきセット
*春陽荘の再生工事の様子や施設を撮影した、10-12枚のはがきセットとサンクスカードをお送りします。
④一般公開日や企画展に入場無料でお越し頂けます
⑤半年に一度のイベントに参加費半額でお越し頂けます
⑥ご宴会やイベントを無料で企画して頂けます
⑦ラウンジ・お茶室を一割引でご利用頂けます

【10,000円(遠方の方向け)】≪NEW!リターンを追加しました!≫
①サンクスメール
②しらすちりめんじゃこ/いかなごの釘煮/生わかめなど2品の詰合商品
*淡路島近海で水揚げされた無添加・減塩・天日干のじゃこは絶品です!
③はがきセット
*春陽荘の再生工事の様子や施設を撮影した、10-12枚のはがきセットとサンクスカードをお送りします。
④一般公開日や企画展に入場無料でお越し頂けます
⑤半年に一度のイベントに参加費半額でお越し頂けます
⑥ご宴会やイベントを無料で企画して頂けます
⑦ラウンジ・お茶室を一割引でご利用頂けます
【30,000円(お越し頂ける方向け)】≪NEW!リターンを追加しました!≫
①サンクスメール
②四季折々の仕出し弁当または寿司弁当
*大人1-4名様
*例:ご飯・造り・天ぷら・酢の物・一品・吸物・香の物など
③はがきセット
*春陽荘の再生工事の様子や施設を撮影した、10-12枚のはがきセットとサンクスカードをお送りします。
④一般公開日や企画展に入場無料でお越し頂けます
⑤半年に一度のイベントに参加費半額でお越し頂けます
⑥ご宴会やイベントを無料で企画して頂けます
⑦ラウンジ・お茶室を一割引でご利用頂けます
【30,000円(遠方の方向け)】≪NEW!リターンを追加しました!≫
①サンクスメール
②◇淡路ビーフ特上すきやき肉600g
または
◇しらすちりめんじゃこ・いかなごの釘煮・生わかめの詰合商品
◇淡路島たまねぎ5キロ
③はがきセット
*春陽荘の再生工事の様子や施設を撮影した、10-12枚のはがきセットとサンクスカードをお送りします。
④一般公開日や企画展に入場無料でお越し頂けます
⑤半年に一度のイベントに参加費半額でお越し頂けます
⑥ご宴会やイベントを無料で企画して頂けます
⑦ラウンジ・お茶室を一割引でご利用頂けます
【50,000円(お越し頂ける方)】
①サンクスメール
②洋館または主屋寝殿を半日貸切でご利用頂けます
*大人4名様または大人2名様中学生以上のお子様2名まで
*洲本バスターミナルから無料送迎・駐車場確約
*薪で焚くひのき風呂(洋館)または昔風呂(寝殿)の入浴OK!ご案内を郵送させて頂きます。
③一般公開日や企画展に入場無料でお越し頂けます
④半年に一度のイベントに参加費半額でお越し頂けます
⑤ご宴会やイベントを無料で企画して頂けます
⑥ラウンジ・お茶室を一割引でご利用頂けます

【50,000円(遠方の方)】≪NEW!リターンを追加しました!≫
①サンクスメール
②◇淡路ビーフ特上すきやき肉600g
◇しらすちりめんじゃこ・いかなごの釘煮・生わかめの詰合商品
◇淡路島たまねぎ5キロ
③一般公開日や企画展に入場無料でお越し頂けます
④半年に一度のイベントに参加費半額でお越し頂けます
⑤ご宴会やイベントを無料で企画して頂けます
⑥ラウンジ・お茶室を一割引でご利用頂けます
【100,000円】
①サンクスメール
②洋館または主屋寝殿24時間貸切でご利用頂けます
*大人4名様または大人2名様中学生以上のお子様2名まで
*洲本バスターミナルから無料送迎・駐車場確約
*薪で焚くひのき風呂(洋館)または昔風呂(寝殿)の入浴OK!ご案内を郵送させて頂きます。
③一般公開日や企画展に入場無料でお越し頂けます
④半年に一度のイベントに参加費半額でお越し頂けます
⑤ご宴会やイベントを無料で企画して頂けます
⑥ラウンジ・お茶室を一割引でご利用頂けます

【300,000円】
①サンクスメール
②全館24時間貸切でご利用頂けます
*中学生以上のお子様を含む大人8名様まで洋館・母屋・蔵など建物1,500平米、敷地4,000平米
*洲本バスターミナルから無料送迎・駐車場確約
*薪で焚くひのき風呂(洋館)または昔風呂(寝殿)の入浴OK!ご案内を郵送させて頂きます。
③一般公開日や企画展に入場無料でお越し頂けます
④半年に一度のイベントに参加費半額でお越し頂けます
⑤ご宴会やイベントを無料で企画して頂けます
⑥ラウンジ・お茶室を一割引でご利用頂けます

【1,000,000円】
300,000円のリターンに加え、
①プレミアム会員向けイベント
*ポーゲンポールのキッチンでケータリングシェフによる忘年会や神戸牛・淡路島の海幸の美食会のご招待2名様
*新神戸駅、伊丹・関西・神戸・徳島各空港等から高級外車での無料送迎付!

あなたのシェアでプロジェクトをさらに応援しよう!
プロフィール
淡路島の住民雇用や地産地消を促進し、登録文化財の再生と日本文化の継承の地として運営することで持続可能な質の高い観光資源化を実現したいです。
あなたのシェアでプロジェクトをさらに応援しよう!
リターン
3,000円

◇どなたでもご利用頂けます!◇
①サンクスメール
②お茶室や寝殿などで淡路島銘菓とお茶を楽しんで頂けます。まずは施設を見学してください。(予約制)
- 申込数
- 21
- 在庫数
- 制限なし
- 発送完了予定月
- 2016年9月
10,000円

◇お越し頂ける方向け◇春陽荘ご利用可能なリターンをご用意致しました!
①サンクスメール
②淡路島銘菓をお茶をお茶室や寝殿でお楽しみ頂けます*1〜4名対応可能 予約制
③はがきセット
*春陽荘の再生工事の様子や施設を撮影した、10-12枚のはがきセットとサンクスカードをお送りします。
④一般公開日や企画展に入場無料でお越し頂けます
⑤半年に一度のイベントに参加費半額でお越し頂けます
⑥ご宴会やイベントを無料で企画して頂けます
⑦ラウンジ・お茶室を一割引でご利用頂けます
- 申込数
- 26
- 在庫数
- 74
- 発送完了予定月
- 2016年10月
3,000円

◇どなたでもご利用頂けます!◇
①サンクスメール
②お茶室や寝殿などで淡路島銘菓とお茶を楽しんで頂けます。まずは施設を見学してください。(予約制)
- 申込数
- 21
- 在庫数
- 制限なし
- 発送完了予定月
- 2016年9月
10,000円

◇お越し頂ける方向け◇春陽荘ご利用可能なリターンをご用意致しました!
①サンクスメール
②淡路島銘菓をお茶をお茶室や寝殿でお楽しみ頂けます*1〜4名対応可能 予約制
③はがきセット
*春陽荘の再生工事の様子や施設を撮影した、10-12枚のはがきセットとサンクスカードをお送りします。
④一般公開日や企画展に入場無料でお越し頂けます
⑤半年に一度のイベントに参加費半額でお越し頂けます
⑥ご宴会やイベントを無料で企画して頂けます
⑦ラウンジ・お茶室を一割引でご利用頂けます
- 申込数
- 26
- 在庫数
- 74
- 発送完了予定月
- 2016年10月
プロフィール
淡路島の住民雇用や地産地消を促進し、登録文化財の再生と日本文化の継承の地として運営することで持続可能な質の高い観光資源化を実現したいです。










