
支援総額
目標金額 1,000,000円
- 支援者
- 158人
- 募集終了日
- 2020年6月30日

丸岡城下に新たな歴史を 日向御前・国姫の顕彰モニュメントを未来へ
#地域文化
- 現在
- 6,320,000円
- 支援者
- 78人
- 残り
- 19日

開湯400年!お客様を温かくお迎えする歓迎標のリニューアルに挑戦!
#地域文化
- 現在
- 4,495,000円
- 支援者
- 233人
- 残り
- 22日

佐賀・呼子| 甚六サウナ・ホテルなど続々開業!鯨をしるべに町を興す
#地域文化
- 現在
- 3,635,000円
- 支援者
- 31人
- 残り
- 29日

地域文化を残し、課題を創造的に解決する 『めぐる、友の会』会員募集
#地域文化
- 総計
- 100人

70年地域の食を支え続けるパン屋を「地域と人をつなぐ場」にしたい
#地域文化
- 現在
- 920,500円
- 支援者
- 85人
- 残り
- 1日

10周年記念事業「東北ゼブラ会議 2026」開催!東北創生の次代へ
#地域文化
- 現在
- 940,000円
- 支援者
- 33人
- 残り
- 31日

一乗谷朝倉氏遺跡を世界遺産登録へ! 朝倉狂楽(あさくらきょうがく)
#地域文化
- 現在
- 770,000円
- 寄付者
- 20人
- 残り
- 25日
プロジェクト本文
終了報告を読む
【達成のお礼とネクストゴールについて】
皆様のおかげで第一目標の100万円に到達することができました。
あたたかいご支援に心より感謝申し上げます。本当にありがとうございました。
今回第一目標を達成したことにより、新たに『ネクストゴール』にチャレンジさせていただきます。実際このプロジェクト全体で改修費用や機材購入などを含めると約650万ほどの費用がかかります。この費用は、クラウドファンディング・補助金・自己資金・融資で賄います。
クラウドファンディングは目標額を達成できなければゼロということから、公開前はとにかく不安で目標金額の設定に悩み、実際の希望よりも低めに設定をしました。
目標を達成した今、次の目標となるネクストゴール150万円とし、最終日までより良い施設づくりのために挑戦をさせてください。
このネクストゴールの達成で、限られた予算の中で諦めたことを実現させたいのです。
叶えたいのはこの3つ。
・トイレ内に専用手洗い場を設置
・パウダールームの水栓からお湯が出るようにする
・杉無垢フローリングに、表面保護防水防汚オイル塗装を実施
ネクストゴールの達成で、より施設内を快適に利用していただけるようになります。
応援してよかったと思ってもらえるように頑張りますので、引き続き、温かいご支援のほどよろしくお願いいたします。
2020年6月12日 追記
能代市地域おこし協力隊「宇宙のまちづくり」担当3年目の挑戦!
能代市地域おこし協力隊「宇宙のまちづくり」担当の八巻枝美です。
秋田県とは縁のない岐阜県の出身ですが、長野県阿智村の星空ガイドとして勤務した経験を活かし「星空を活用した地域おこし」に取り組めないかと、「宇宙のまち」をPRする秋田県能代市に移住しました。着任後は「星のおねえさん」として、市内での星空観察会や、プラネタリウムでのイベント開催、星空の下で行うヨガ教室などを行ってきました。

能代だけでなく、全国さまざまな場所の宿泊施設様から依頼をいただいて星空ガイドとしても活動しており、2020年3月26日、星空イベントの企画・制作・運営や星空ガイドを行う「合同会社ほしあわせ」を秋田県能代市で開業しました。
協力隊員として活動する中で、能代駅の目と鼻の先にある“元観光協会”の建物に着目しました。
観光協会が駅構内へ移転してから、駅前の一等地が空き店舗になり、他にも営業している店舗は数えるほどしかなく、“駅前”なのに寂しい雰囲気が漂ってるのです。

駅前のこの場所は、わかりやすく、電車はもちろん、市内巡回バスも止まるので、車のない方でも足を運びやすい場所。「この場所を眠らせておくなんてもったいない!」
協力隊活動の中で出会った皆さんとの繋がりを活かせば、この空き店舗を「能代ならでは」の「ここにしかない」「とっておきの体験空間」に変身させることができる!
みんなが足を運びたくなる、“能代ならでは”の場所をつくるプロジェクトが動き始めました。
しかし、物件の改装には多額の費用が必要となります。自己資金や、借り入れ、助成金など用意できるところは準備を進めていますが、それでも必要資金の一部が不足している状況にあります。
地域おこし協力隊に着任してから3年目の今年は活動の最終年度。集大成としてやりたいと思ったことを、お金を理由に諦めたくはないと思い、クラウドファンディングに挑戦することを決意しました。完成に向けて、どうかあたたかいご支援をよろしくお願いいたします。

地域おこし協力隊活動3年間の集大成として、
宇宙のまち“のしろ”らしい「新たな場所」をつくる!
舞台となる秋田県能代市は、日本でも数少ないJAXA(宇宙航空研究開発機構)の実験場がある「宇宙のまち」です。私の協力隊としての任務は、「宇宙のまち能代」のPRです。
隊員として何ができるか試行錯誤しながら、大人の皆さんに “能代は宇宙のまち”と知っていただくきっかけの1つとして、星空や満月の下でヨガをする企画を立てたところ、多くの皆様に参加をしていただくことができました。冬になれば天気も悪く、寒い日が続いて外でヨガはできませんが、室内で行う「夜ヨガ」を企画すれば、それもすぐ定員になりました。
そして、参加者の声を聞いていると、人気の理由が見えてきました。
・星空や月明かりの下でヨガをするのってロマンティックで好き
・癒される!
・暗い中でやるから、恥ずかしくないのが良い。
ということは、「プラネタリウム空間でヨガをすれば、天候に左右されず、ロマンティックな気分に浸れ、癒され、暗いから周りの目を気にすることなく挑戦できる!これだ!!」と思いました。さらにプラネタリウムヨガのお店をつくることは、私自身もこれまでの自分のスキルを活かすことができ、自分の任務である「宇宙のまちづくり」を推進することができます。
プラネタリウムヨガを調べていくと、イベントとして開催されているものはたくさん見受けられましたが、常設スタジオとして店舗展開されている場所はざっと探した中では見当たりませんでした。
地元の方からは、よく「ここには何もない」「つまらない」という言葉を聞きます。シャッターが閉まり、人のいない中心地。飲食店はあるものの、それ以外に楽しい時間を過ごせる場所がいくつあるだろうか。
ここ能代に「プラネタリウムヨガスタジオ」という珍しくて楽しい場所ができたら、市民の皆さんに「能代にも楽しい場所ができた」と笑顔になってもらえるのではないか。「能代にあるプラネタリウムヨガスタジオに行ってみたい!」とこの街に遊びに来てくださる方ができれば、能代が賑やかになるきっかけを作れるかもしれない。「やるなら今だ!」協力隊3年目を迎えた春、私は心を決めました。

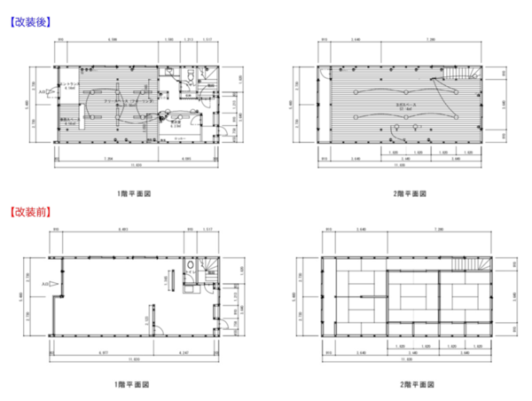
皆様からいただいたご支援で古くなった空き店舗を大改装!
9月に「プラネタリウムヨガスタジオ」としてオープンさせます
今回のプロジェクトでは、皆様からいただいたご支援を活かして空き店舗を改装し、プラネタリウムヨガスタジオを開業を目指します。
改装する空き店舗の1階は、過去に飲食店が入っていたり、観光協会が入っていたりして使われていましたが、2階はしばらく使われていませんでした。
今回は2階をメインスタジオとして使用する計画ですが、これまで使われていなかったため床面全体に補強工事が必要です。また、現状は押入れや床の間、壁があり、これらをすべて撤去して広い一つの空間に作り変え、プラネタリウムを綺麗に投影するため、床や天井を白く塗り替える作業が待っています。1階もトイレを作り直し、床を張り替え、ガラスが割れている入口もすべて作り変えるため、多額の費用がかかります。
どうか皆様のご協力で、この物件を今までにない世界に変身させ、能代を盛り上げる一助にさせてください。
■スタジオの詳細
・場所:秋田県能代市元町13−14
・営業時間:別紙のとおり
・オープン日:2020年8月29日(予定)
テーマは、白神の森と宇宙への出発基地、そして星空空間へ
地元の若手メンバーが集まり、能代ならではの、ここでしかできない体験ができる空間設計を行っています。
・湊 哲一(ミナトファニチャー)内装・家具デザイン
・鈴木 了(cochiデザイン二級建築士事務所) 内装・設計
・須藤 和彦(木肌のぬくもり社)内装・設備工事・藤田 明(リブウトアートワーク)ロゴ・広告デザイン
■1階設備(案)
受付・ロッカールーム・お手洗い・サブスタジオ(フリースペース)・ウォーターサーバー
■2階設備(案)
メインスタジオ(プラネタリウムによる満天の星空とインストラクター照明のみ)
音響設備・アロマディフューザー(この空間オリジナルの香りを製作予定)
星空をつくりだすのは...
プラネタリウム・クリエーター 大平貴之によって生み出されたパーソナルユースを対象とした、大平技研の超小型機種「MEGASTAR CLASS(メガスター・クラス)」を使用します。
簡単に持ち運びできるほどに小型軽量でありながら、プラネタリウム館と同様に 180度の全方向に、煌めく100万個の美しい星空を創りだすことができます。MEGASTAR の繊細でダイナミックな星空表現がそのまま凝縮された至高の星空をお楽しみください。

ほしのしろ オリジナルヨガメニュー:「88星座ヨガ」
世界共通の星座は現在88個あります。この88個すべての星座のヨガポーズを開発!レッスンで取り入れます。「88星座ヨガ」は商標登録を申請しており、「ほしのしろ」のプラネタリウムヨガでしか体験できないオリジナルメニューとして提供する予定です。

プラネタリウム×ヨガ
宇宙のまち“のしろ”ならではの、とっておきな体験を!
お店の名前は「ほしのしろ」。星×能代の出会いを表現し、また星に包まれてヨガができる星の城でもあります。能代とのご縁を大切にした場所でありたいという思いから、お店の名前に能代を入れました。この場所で末長く愛される場所になりたいと思っています。
そして、プラネタリウムヨガができれば、能代にさまざまな可能性を見いだすことができます。
⒈全国でも珍しいこころみ!「プラネタリウムヨガスタジオ」
能代・秋田の話題を創出!地元の皆さんの「ここには何もない」を解消し、能代暮らしの新たな楽しみをつくります
⒉ここでしかできない体験!人が集まり地域の元気のきっかけに!
能代駅前の一等地が寂しい状況の改善のきっかけに!市が目指す「宇宙のまち」のイメージ醸成に!
⒊暗いから人目を気にせずヨガ体験!初心者も運動が苦手な方も挑戦しやすい!
運動不足を解消!健康寿命に貢献!冬季間はこもりがちな雪国でも体を動かす冬の楽しみが増える!
そして将来はここ能代を出発地として、全国へ展開していきたいと考えています。
どうか皆様のご支援のほどよろしくお願いします。

リターンのご紹介:今回だけ受け取れる、能代名物シリーズ
最近全国から注文が殺到している「翁飴」を販売している桔梗屋さんの全面協力により、READYFOR支援者だけが手に入る「秋田杉の箱入り翁飴」や「星形の翁飴」をご用意いたしました。能代は遠くて足が運べないという方のために、能代の魅力を詰め込んだ玉手箱です。
当店も地域活性化のために頑張ると立ち上がった『ほしのしろプロジェクト』に少しでも貢献できればと思った次第です。このプロジェクトためだけの翁飴セットですので是非とも皆様のご協力お願いいたします。
近隣の皆様には、ヨガ体験をしていただける、チケット付きプランをご用意いたしましたので、ぜひ体験においでください。
また、杉板にレーザー加工でお名前を刻み、建物内に協力者として掲載させていただくプランも用意しました。是非一緒にスタジオを創っていただると幸いです。
プロジェクトメンバーのご紹介

■RIE:須藤(旧姓 武隈) 梨恵
ほしのしろ プラネタリウムヨガインストラクター
日本女子体育大学舞踊学卒業後、バリ舞踊とモダンダンスを融合させたオリジナル舞踊団『バリアージ』に所属し、イベントや舞台などに出演。都内の大手スポーツジムにて、スポーツトレーナー、ヨガインストラクター、介護予防運動士も行う。柔道整復師の旦那と共に15年ぶりに能代へ帰郷し、『あすなろ整骨院』を開業。只今、娘の育児に奮闘中。
田舎から早く都会へ出たくて仕方がなかった幼少期。高校卒業と共に東京へ飛び立ちました。都会のスケールの大きさに驚き、毎日がお祭りなのかと思いました。ダンサーとして数々の舞台に立ち、ヨガやトレーナーとしてもお仕事の日々。そんな日々を過ごす中でふと思いました。都会でなくても田舎でも可能性はある!と。都会でなくては何もできないと思っていました。が、やり方次第だと気がつきました。
私は、地元の田舎ならではの自然が大好きで、地に根を張るような人、表現者になりたい。地元から何かを発信したい!と思うようになりました。旦那と共に帰郷した時に、八巻さんと出会いました。とても情熱のある女性だと感じ、一緒に事業をできることにワクワクが止まらなくなりました。プラネタリウムヨガスタジオという新しい発想。人と人との繋がり、心と身体に癒しを。地元を盛り上げるために私にできることをチャレンジしていきます!
本プロジェクトのリターンのうち、【お名前掲載】に関するリターンの条件詳細については、リンク先(https://readyfor.jp/terms_of_service#appendix)の「リターンに関するご留意事項」をご確認ください。
あなたのシェアでプロジェクトをさらに応援しよう!
プロフィール
1982年岐阜県大垣市市生まれ。 長野県阿智村の星空ガイドとして5年勤務後、「宇宙のまち」で市のPRに取り組む地域おこし協力隊を募集していた秋田県能代市に移住。 「星のおねえさん®︎」として星空観察会や、プラネタリウムでの音楽会、星空の下で行うヨガ教室などのイベントを行う。 星空ガイド / 星空を使った地域、施設活性化事業のアドバイスやコンサルティングを行う個人としても活動。 2020年「合同会社ほしあわせ」を設立。 宙ツーリズム推進協議会会員・星空案内人 / 星のソムリエ
あなたのシェアでプロジェクトをさらに応援しよう!
リターン
5,000円
「ほしのしろ」応援!お気持ちコース
■感謝のメール
■ウェブサイトにお名前掲載(任意)
リターンに費用がかからない分、ご支援の多くをプロジェクト実施にあてさせていただきます。
- 申込数
- 46
- 在庫数
- 制限なし
- 発送完了予定月
- 2020年8月
8,000円

「ほしのしろ」内に名前プレートの設置
■杉板にレーザー加工でお名前を刻み、建物内に掲示(任意)
■感謝のメール
■施設見学チケット1枚
*有効期限:発行から1年以内
■ウェブサイトにお名前掲載(任意)
※ニックネーム等も可能です。
※掲示をご希望されない方は、お手数ですが、「不要」とご記載ください。
お礼状と施設見学チケット1枚もお送りしますので、是非ご自身のプレートを見にお越しください。
- 申込数
- 14
- 在庫数
- 制限なし
- 発送完了予定月
- 2020年8月
5,000円
「ほしのしろ」応援!お気持ちコース
■感謝のメール
■ウェブサイトにお名前掲載(任意)
リターンに費用がかからない分、ご支援の多くをプロジェクト実施にあてさせていただきます。
- 申込数
- 46
- 在庫数
- 制限なし
- 発送完了予定月
- 2020年8月
8,000円

「ほしのしろ」内に名前プレートの設置
■杉板にレーザー加工でお名前を刻み、建物内に掲示(任意)
■感謝のメール
■施設見学チケット1枚
*有効期限:発行から1年以内
■ウェブサイトにお名前掲載(任意)
※ニックネーム等も可能です。
※掲示をご希望されない方は、お手数ですが、「不要」とご記載ください。
お礼状と施設見学チケット1枚もお送りしますので、是非ご自身のプレートを見にお越しください。
- 申込数
- 14
- 在庫数
- 制限なし
- 発送完了予定月
- 2020年8月
プロフィール
1982年岐阜県大垣市市生まれ。 長野県阿智村の星空ガイドとして5年勤務後、「宇宙のまち」で市のPRに取り組む地域おこし協力隊を募集していた秋田県能代市に移住。 「星のおねえさん®︎」として星空観察会や、プラネタリウムでの音楽会、星空の下で行うヨガ教室などのイベントを行う。 星空ガイド / 星空を使った地域、施設活性化事業のアドバイスやコンサルティングを行う個人としても活動。 2020年「合同会社ほしあわせ」を設立。 宙ツーリズム推進協議会会員・星空案内人 / 星のソムリエ














