
支援総額
目標金額 300,000円
- 支援者
- 32人
- 募集終了日
- 2023年1月31日

緊急支援|フィリピン地震へのご支援を
#国際協力
- 現在
- 1,628,000円
- 寄付者
- 222人
- 残り
- 9日

救う命を選ばない。どんな犬猫も保護し続け福岡の里親さんを増やしたい
#動物
- 現在
- 3,238,000円
- 支援者
- 307人
- 残り
- 8時間

【静岡県竜巻】緊急支援を開始!被災地を応援してください
#災害
- 現在
- 568,000円
- 寄付者
- 69人
- 残り
- 19日

消滅寸前・住民3人の秘境|心と身体を整える「雲隠れの里」に再生へ
#地域文化
- 現在
- 7,858,000円
- 支援者
- 236人
- 残り
- 18日

丸岡城下に新たな歴史を 日向御前・国姫の顕彰モニュメントを未来へ
#地域文化
- 現在
- 6,325,000円
- 支援者
- 79人
- 残り
- 18日

豪雨災害で崩壊した参道修復を。重要文化財・舟城神社を未来へ繋ぐ。
#地域文化
- 現在
- 4,605,000円
- 支援者
- 69人
- 残り
- 7日

開湯400年!お客様を温かくお迎えする歓迎標のリニューアルに挑戦!
#地域文化
- 現在
- 4,512,000円
- 支援者
- 235人
- 残り
- 21日
プロジェクト本文
空き物件をみんなの「イバショ」に!
須賀川に交流と学びの滞在拠点をつくりたい! 「みんなのイバショソダテプロジェクト」
こんにちは!閲覧ありがとうございます!
福島県須賀川市にあるまちづくり会社「テダソチマ」で働く大学生です!
私たちは、須賀川市にある旧母子生活支援施設のリノベーションに取り組んでいます。
役目を終えた施設を、みんなのイバショとして生まれ変わらせる。
名付けて「みんなのイバショソダテプロジェクト」を実行中です!
このプロジェクトでは、須賀川市が所有していた旧母子生活支援施設を買い取り、
交流や学びができる滞在拠点へとリノベーションします。
「須賀川に貢献したい!」「須賀川で何かに挑戦したい!」
と思ってくれている方たちが気軽に滞在できる。
「学びたい!」と意欲を持っている学生が、合宿しながら思う存分学べる。
イベントを開いて、滞在した人と地域の人とが交流できる。
交流から生まれた繋がり・アイデアで須賀川をもっと盛り上げる。
そんな場所をつくりたいと考えています。
須賀川に住む人、須賀川を訪れた人、次世代を担う子どもたちなど、
みんなにとっての「イバショ」を「ソダテ」る。
それが「みんなのイバショソダテプロジェクト」です。
このプロジェクトを実現させるためには、準備段階からたくさんの人と協力して
この施設をつくり上げることが必要だと考えました。
そこで、母子支援施設のDIYをしてくれるボランティアの方を募集し、
ワークショップを開催することにしました。
ワークショップを通して、いろんな人が交流し、楽しみながら
「みんなのイバショ」をつくりあげる。
そうして生まれた「みんなのイバショ」から、新たな交流が生まれる。
そんな循環をつくりだしていきたいと思います。
このクラウドファンディングでは、ワークショップに参加するボランティアの方の交通費や
昼食の材料代(炊き出し)、DIYに必要な備品等の購入のための支援を募ります。
・ボランティアの方への交通費
・作業で食べる昼食材料費(炊き出し)
・DIYのための作業着や道具の費用
・その他、個人で負担となるような費用の補填
・ボランティアの方の負担を減らしたい
・須賀川に関わる人を増やしたい
この2つの目的をもって、支援を募ります。
<ボランティアの方々の負担を減らしたい>
このプロジェクトでは、一緒に旧母子支援施設をリノベーションしてくださる
ボランティアの方を募集します。
年齢やDIY経験を問わず、どなたでも参加可能なDIYワークショップとして、
12月から募集・作業を開始する予定です。
須賀川市内だけでなく、どこに住んでいる人でも参加可能としているため、
中には市外から参加してくださる方もいるかもしれません。
協力してくださる方たちの交通費や昼食代など、金銭的な負担を少しでも軽くしたい。
そんな思いからクラウドファンディングを行うことにしました。
ご支援いただいた資金は、ボランティアの方の交通費や昼食代として活用させていただきます。
また、DIY作業に必要な作業着や塗料等の備品購入に充てさせていただきます。
<みんなのイバショをみんなの手でつくり上げる>
そして、クラウドファンディングの目的は、協力してくださるボランティアの方のための
資金を集めるためだけではありません。
須賀川を盛り上げたいと想いのある皆さんとイバショソダテプロジェクトを進めたいと考えています。
「離れた場所にいるけど、須賀川に関わりたい」
「須賀川が好きで貢献したい」
「このプロジェクトを見て興味を持った」
というような、現地に来られない方とも一緒にプロジェクトを実現させたいと考えています。
そのための手段として、クラウドファンディングを立ち上げました。
このクラウドファンディングを、あなたと須賀川をつなぐツールとしてご活用していただき、
一緒にプロジェクトを進行させていただきたいです。
ボランティアとして現地で作業してくれる方、
現地に来られなくても、クラウドファンディングを通して支援してくれる方、
たくさんの方と一緒に、「みんなのイバショ」をつくりあげていきたいと思っています。
<地域を盛り上げるための施設>
・須賀川に貢献したい人が滞在できる施設にリプレイス
・滞在者と地域住民の交流できる空間
・地域住民に向けたいろいろな教室の開催
・子ども食堂など、子どもたちの成長を応援するイベントの開催
・学生が学び、積極的に活動できる場所の提供
<社会課題への挑戦>
・空き家の活用
空き家の増加が問題になっています。空き家を活用して、他の地域が真似したくなるような、須賀川を元気にするためのバショソダテに挑戦をします。
・若者の流入機会の創出
須賀川には大学がなく、高校を卒業した多くの人は市外に就学、就職してしまう傾向にあります。手軽に合宿等ができる施設をつくることで、高校生や大学生が使用しやすいバショにソダテ、須賀川への愛着や戻ってきたくなる、若者の流入機会の創出に挑戦します。
・老朽化した公営施設の官民連携の取り組み
人口が増加した昭和40~50年代に建てられた公共施設の老朽化が進み、維持管理費や解体費用の増加が全国的な課題となっています。公営住宅(母子支援施設)として活用されていた施設を民間事業者として入札しました。公営住宅を次世代のために活用するバショにソダテることで全国に誇れる事例作りに挑戦します。
福島県は関係人口数が全国1位であることをご存じでしょうか?
関係人口とは、「地域のために何かをしたい、関わりたい」「地域に貢献したい」
と思っている人のことを指します。
つまり、ありがたいことに、福島県に関わりたいと思ってくれている方がたくさんいるということです。
※ブランド総合研究所「関係人口の意識調査2021」をもとに作成
そんな状況を踏まえて、テダソチマでは須賀川に関わる人を増やすための活動を行ってきました。
首都圏在住者に向けて福島の情報を発信するイベントを開催したり、
移住イベントに参加して須賀川をPRしたり、シェアオフィスやお試し居住をつくったりなど、
須賀川で暮らし、働くための環境整備に取り組んでいます。
このような活動を続ける中で、1つの課題が見えてきました。
それは、「滞在拠点が足りない」ということ。
ある事業で東京から須賀川に3週間働きに来た方たちに、
須賀川で働いてみてどう感じたかアンケートを取りました。
すると、
「シェアオフィスがあって、ご飯もおいしくて、働く環境は整っていると思う。
でも、泊まれる場所が少ない。」
という声がいくつかあがりました。
たしかに須賀川は働きに来る人が多く、ビジネスホテルが満室になっていることも多々あります。
これでは、須賀川に関わりたい、働きたい、貢献したい、と思ってくれている方たちが
訪れにくくなってしまいます。
せっかく須賀川に関わりたいと思っている人たちがいるのに、
滞在できる場所がなくて来られないのはもったいない。
そんな状況を変えるために、このイバショソダテプロジェクトは始まりました。
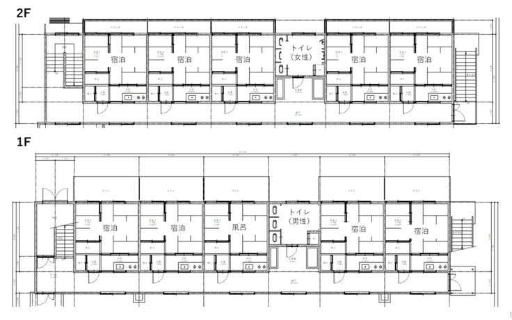
<旧母子支援施設概要>
・築年数 昭和47年3月
・延床面積 732.24 ㎡
・建物構造 コンクリートブロック造2階建2棟
<改修後施設設備>
・宿泊部屋数 14部屋
・会議室 3部屋
・風呂 1つ
・トイレ 男女各3つ
・キッチン 1つ
・Wi-Fi設備
・プロジェクター
<改修前現状>
<完成後施設図面>
部屋の内装など、専門的な知識が必要な部分以外をボランティアの方々とリノベーションします。
北側棟
南側棟
須賀川に来ていただける方、行くのは難しい方、
どちらの方にも対応した支援パターンを用意しました。
<3,000円>
・サンクスメール
<5,000円>
・サンクスメール&お試し滞在券(1回分)
・サンクスメール&STEPS&paletteワンデイフリーパス(1回分)
※返礼品が不要な場合は備考でお知らせください。
<10,000円>
・サンクスメール&お試し滞在券(2回分)
・サンクスメール&STEPS&paletteワンデイフリーパス(3回分)
・サンクスメール&オープン記念パーティーご招待券
・サンクスメール&須賀川特産品
※返礼品が不要な場合は備考でお知らせください。
<50,000円>
名前刻印(パターンに関わらず希望した方)
・サンクスメール&お試し滞在券(10回分)
・サンクスメール&STEPS&paletteのワンデイフリーパス(15回分)
・サンクスメール&オープン記念パーティーご招待券&お試し滞在券(2泊分)
・サンクスメール&福島特産品プレミアム
※返礼品が不要な場合は備考でお知らせください。
<100,000円>
名前刻印(パターンに関わらず希望した方)
・サンクスメール&オープン記念パーティーご招待券&お試し滞在券(10回分)、STEPS&paletteの1日利用券(30回分)
・サンクスメール&特産品
・サンクスメール&記念樹
※返礼品が不要な場合は備考でお知らせください。
※希望がある場合はその他返礼品と組み合わせします。
◆オープン記念パーティーご招待券
オープン記念のパーティーにご招待します!
一足先に須賀川を盛り上げる皆様と交流しましょう!
(2023年3月に一期完成予定です。イベントに関しては別途ご連絡いたします。)
◆STEPS、paletteの1日利用券
空き店舗をリノベーションしたシェアスペースSTEPS・サテライトオフィスpaletteを1日無料でご利用できます!
お仕事やちょっとした作業ができます。
◆お試し滞在券
完成した施設に滞在できます!
支援額に応じて滞在日数が増えます。
◆須賀川特産品
須賀川市、福島県の特産品をお送りいたします!
支援額に応じて内容が変わります。
◆名前刻印
支援してくださった方のお名前を施設の壁に刻印します!
◆記念樹
一緒に植樹をし、ネームプレートを設置させていただきます!
須賀川に来れない場合は代わりに植樹いたします。
2021年12月 作業開始、DIYワークショップ開催
2022年 2月 一時完成
2023年 秋 グランドオープン予定
株式会社テダソチマホームページ
テダソチマInstagram
https://www.instagram.com/tedasochima/
プロジェクトInstagram
https://www.instagram.com/palette_tedasochima/
<学生より>
最後までご覧いただきありがとうございます!
私たちテダソチマ学生スタッフは、ゼミでご縁があり、こうして須賀川にあるまちづくり会社で須賀川を盛り上げるお手伝いをさせていただいています。
昨年度は、築53年の空き家をお試し居住用の住宅に、空き店舗をサテライトオフィスにリノベーションしました!
これまで空き家・空き店舗のリノベーションを通して、
たくさんの方々と交流する機会をいただきました。
その中で、様々な考え方、思い、生き方に触れ、色々なことを学びました。
このプロジェクトが実現することで、もっとたくさんの人たちが出会い、
繋がることを考えると、とってもワクワクしています!
このワクワク感を皆様と一緒に共有していけたら嬉しいです!
資金を集めること、それ以上に、たくさんの人々でこの場所を育てていきたい。
そんな思いを実現させるために、このクラウドファンディングを立ち上げました。
沢山の人が交流し、学び、育つ。
そんな場所を一緒に育てていきませんか?
ぜひ、ご支援ご協力をよろしくお願いいたします!
<テダソチマ代表取締役 大木和彦より>
今回このプロジェクトに興味を持っていただきありがとうございます。
須賀川の活性化のために、昨年より福島大学の学生と共に様々なプロジェクトを進めてきました。
この事業では、「安価で利用できる」「学生をはじめとした色々な人たちが使える」「多様性を取り込める」ような滞在施設を須賀川に設備したいと考えています。
工事の段階からたくさんの人たちと関わることで、「みんなのイバショ」としての意識や愛着を育てられると考え、ボランティアの方を募集することに決めました。
ぜひ母子支援施設を改修してくださるボランティアの方々へご支援していただけたら幸いです。
須賀川を地域間だけではなく、ありとあらゆる人・物・事を巻き込んで盛り上げていきたいと思いますので、応援の程よろしくお願いいたします!
ぜひ、須賀川へお越しください!
<これまでの活動紹介>
DIY初心者の大学生が築53年の空き家のリフォームに挑戦しました!
間取りの提案から現場作業まで、建築のプロのお力添えをいただきながら取り組みました。
その様子を動画にまとめましたのでぜひご覧ください!
・福島大学生が築53年空き家リフォームに挑戦
https://www.youtube.com/watch?v=cBVpSKAeEPA
・テダソチマ紹介動画
https://www.youtube.com/watch?v=1emfGgeifN8
https://www.youtube.com/watch?v=aMFWGJJcuCQ
・須賀川紹介動画
https://www.youtube.com/watch?v=L0vfqvNtiis
- プロジェクト実行責任者:
- 株式会社テダソチマ 大木和彦
- プロジェクト実施完了日:
- 2023年8月31日
プロジェクト概要と集めた資金の使途
株式会社テダソチマがボランティアの方々と一緒に旧母子生活支援施設のリノベーションを行います。集まった資金はボランティアの方の交通費や昼食代、作業着など備品の購入費に充てさせていただきます。
リスク&チャレンジ
- プロジェクトを実施する上で必要になる資格や許認可について
- 本クラウドファンディングでは、プロジェクト履行のために簡易宿泊所営業、または住宅宿泊の の許可・届出が必要となります。現在、既に手続きに向けた打ち合わせを進めています。本プロジェクト実施である2023年8月31日までには、許可申請・届出の見込みが立っております。(2022年11月29日現在) また、承諾が遅れる場合は適法な運営方法(住宅としての利用)での運用により、法令順守を前提とした運営を致します。
- リターンを実施する上で必要になる資格や許認可について
- 本クラウドファンディングでは、プロジェクト履行のために簡易宿泊所営業、または住宅宿泊の の許可・届出が必要となります。現在、既に手続きに向けた打ち合わせを進めています。本プロジェクト実施である2023年8月31日までには、許可申請・届出の見込みが立っております。(2022年11月29日現在) また、承諾が遅れる場合は適法な運営方法(住宅としての利用)での運用により、法令順守を前提とした運営を致します。
- プロジェクトに必要な金額と目標金額の差額について
- 支援いただいた金額の有無にかかわらず、プロジェクトは支援金額が未達でも実行いたします。 ただし、ボランティアで参加していただく方へのフルのサポート(交通費の支給、作業着等の支給、昼食の補助)ができなくなってしまいます。
あなたのシェアでプロジェクトをさらに応援しよう!
プロフィール
あなたのシェアでプロジェクトをさらに応援しよう!
リターン
3,000円+システム利用料

サンクスメール
感謝のメールをお送りいたします!
- 申込数
- 12
- 在庫数
- 制限なし
- 発送完了予定月
- 2023年3月
5,000円+システム利用料

シェアオフィス1日利用券
株式会社テダソチマが運営している、須賀川市の中心街にあるシェアオフィスの1日利用券です。
※発行日より6か月内有効
- 申込数
- 2
- 在庫数
- 制限なし
- 発送完了予定月
- 2023年3月
3,000円+システム利用料

サンクスメール
感謝のメールをお送りいたします!
- 申込数
- 12
- 在庫数
- 制限なし
- 発送完了予定月
- 2023年3月
5,000円+システム利用料

シェアオフィス1日利用券
株式会社テダソチマが運営している、須賀川市の中心街にあるシェアオフィスの1日利用券です。
※発行日より6か月内有効
- 申込数
- 2
- 在庫数
- 制限なし
- 発送完了予定月
- 2023年3月









