
支援総額
目標金額 3,000,000円
- 支援者
- 280人
- 募集終了日
- 2023年6月24日

ぬるぬるのお引越|万博・落合陽一 null²パビリオン次なる場所へ
#ものづくり
- 現在
- 216,684,000円
- 支援者
- 12,280人
- 残り
- 30日

命を守る手術器械の職人技を次代へ。技術継承にご支援を
#生活用品
- 現在
- 1,829,000円
- 支援者
- 55人
- 残り
- 11日

助かる命に駆けつけたい。1秒でも、早く。ドクターカー更新へご寄付を
#医療・福祉
- 現在
- 279,000円
- 寄付者
- 35人
- 残り
- 86日

能登半島地震で全壊した須須神社奥宮|再建を叶え、ミホススミ神に光を
#地域文化
- 現在
- 1,235,000円
- 支援者
- 43人
- 残り
- 56日

【茨城県取手市】森の中にある保育園の未来を繋ぐプロジェクト「伐採」
#子ども・教育
- 現在
- 665,000円
- 支援者
- 66人
- 残り
- 45日

樹齢1200年を超える「伊佐沢の久保ザクラ」を未来へ繋ぐために
#地域文化
- 現在
- 93,000円
- 寄付者
- 18人
- 残り
- 42日

「心の湯治場」下呂温泉が誇る掬水荘を修繕し、地域でのさらなる活用を
#地域文化
- 現在
- 465,000円
- 支援者
- 14人
- 残り
- 30日
プロジェクト本文
終了報告を読む
【目標金額達成!】
開始当初から1か月経過まではなかなか資金が集まらず、悩んだ時期もございましたが、200人以上の皆様からご支援、応援、情報発信をしてくださった皆様のおかげで、旧飯田家保存活用プロジェクトの為のクラウドファンディングは、目標金額の300万円を無事達成することができました。
佃島の周辺にご住まい方々から全国、さらには海外の方々まで、このプロジェクトを支援はもちらん、温かいコメントや応援コメントで本当に励まされました。感謝申し上げます。改めて、旧飯田家住宅を佃島の景観とともに残していきたいという思いがより一層強くなりました。
皆様からのご支援金は飯田家住宅を保存・活用する為に、事業工事事前調査費用や設計費用、工事費用、登録有形文化財(建造物)申請に係る調査、火災保険料、その他経費として、大切に使わせていただきます。
【ネクストゴール】
また残り2日となりましたが、ここ一週間の伸びから期待を込めて、ネクストゴールを設定させていただくことに決めました。
次の目標は400万円です!
かなり難しい目標ですが、ネクストゴールとして挑戦していきますので、ぜひ引き続きお力をお貸しください。ネクストゴールでのご支援金は、上記と同様の費用として大切に使わせていただきます。仮にネクストゴールの金額を達成できなかった場合、ご支援いただいた資金で実施できる範囲にて、実施はさせていただく予定でおります。
目標達成は叶いましたが、最後の最後まで走り切りたいと思います。どうぞ、残りの3日間の最後まで見守っていただきたく、よろしくお願いいたします。
アカウント登録をせずとも、以下の画像(クリック 又は タップ)から代理支援制度の詳細をご確認できます。
URL:https://ready.jp/projects/tsukuda_iidahouse/announcements/267277
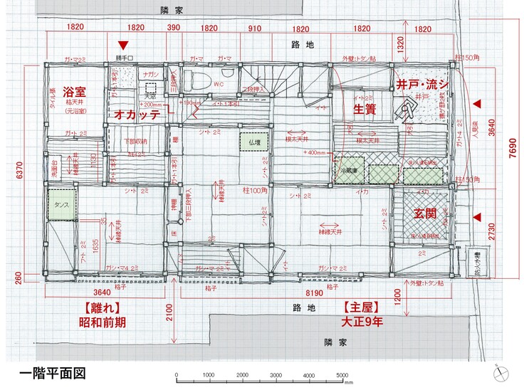
旧飯田家住宅は、「佃喜八」という屋号をもつ日本橋魚市場の魚問屋の併用住宅として大正9年(1920)頃に建築されました。佃島の「中通り」に面して建つ2階建の出桁造(だしげたづくり)町家で、魚問屋らしく北側に生け簀(いけす)と手押しポンプの井戸を配した広い土間をもち、南側には住宅への玄関を独立して設けていることが特徴です。土間の入口の鴨居には、商家のステータスとなる背の高い人見梁(ひとみばり)を用い、大八車が入りやすいように敷居が外れるようになっています。
また2階には榁(むろ)の変木を用いた数寄屋風の続き間座敷があり、昭和のはじめには、東京宝塚劇場の開設にあわせて阪急電鉄社長の小林一三(こばやしいちぞう)が滞在したとも伝えられています。
旧飯田家の建つ短冊形地割の敷地は、江戸時代のはじめに佃島の町割・屋敷地割が定められた当初の形状を保ちながら、南北両脇には隅田川の河岸に抜ける路地が設けられており、近代の埋立地である月島とはまた違った江戸の漁師町らしい密度の高い路地空間を留めています。佃島の伝統的な住居は、こうした路地空間の構成を生活に巧みに利用しています。
旧飯田家住宅もまた、南側の路地に面しては瀟洒な格子窓と硝子障子を用いてプライバシーを守りながら採光を確保し、北側路地の奥には、昭和初期に主屋裏に増築された「離れ」に設けられた台所と風呂に直接入れる勝手口を設けています。台所には天窓が設けられ床下収納を多用、2階には路地に面して物干場を配置するなど、漁師町らしい高密度居住のなかでの住まい方の工夫が随所にみられます。
旧飯田家住宅は、日常的には佃島の有力な魚問屋でしたが、同時に地域コミュニティの中心として位置付けられ、舟入堀の水中に埋められた「大幟」を掘り出して建てることで知られる佃島住吉神社の例大祭の「住吉祭」では、「佃住吉講二部」の重要な祭礼拠点として利用されてきました。
このように江戸から東京へと約400年の時を重ねたきわめて稀有な佃島の生活文化を、日本橋魚市場の魚問屋としてまた地域コミュニティの中心として、長く紡いできた旧飯田家の貴重な歴史的建築を保存活用することによって、佃島という「場所」のもつアイデンティティを東京ウオーターフロントの未来につなげていきたい、というのが我々の思いです。
調査写真(一部抜粋)
伊藤裕久
佃島は、徳川家康公の命で摂津国(現在の大阪府北部周辺)佃村などから移住した漁師達によって、江戸湊の要・隅田川河口の干潟が造成されて1644年に完成しました。近代になってから、月島の埋め立てなどがありましたが、約400年前の地割りをほぼとどめています。関東大震災や太平洋戦争時の空襲からの被害も免れたので、歴史的な建造物や家屋も多く残っています。開発が進んだ現代の東京では、きわめて稀有な存在と言えます。
志村秀明
佃島旧飯田家住宅活用委員会では、保存活用プロジェクトの一環として「国登録有形文化財(建造物)」の選定にむけて旧飯田家住宅の文化財的価値を明らかにするための建造物実測調査を2022年5月15日および7月6日に実施しました。その成果は、2022年12月6日に開催された東京建築士会シンポジウムにおいて「佃島の居住環境史と飯田家住宅の建築史的価値」というタイトルで伊藤裕久(東京理科大学)が報告しています。
伊藤裕久
今後、補足調査を実施した上で詳細な調査報告書を作成する予定ですが、ここでは概要を記します。
飯田家住宅を含めたこれまでの佃島の歴史的建造物に関する調査研究については、まず『中央区佃島地区文化財調査報告』東京都教育委員会1984年があり、昭和55年(1980)当時の詳細な祭礼調査成果と山崎弘(工学院大学)・渡邊保忠(早稲田大学)による佃の町並・住居・住吉神社など、重要な歴史的建造物調査の成果と詳細なリストが掲載されており貴重です。
また、江面嗣人・玉井哲雄(千葉大)らによる佃島の住居実測調査研究の成果があり、当時の住宅遺構を知ることのできる大変貴重な実測調査データが開示されています。
その主な書籍・論文としては、
1)『中央区の文化財(7)建造物』中央区教育委員会1988年があり佃島では日本橋魚市場の問屋・仲買である飯田家と桜木家が写真入りで掲載されています。
また、2)江面嗣人「明治・大正期における佃島の住居の類型と変遷」日本建築学会計画系論文報告集第396号、1989年および3)江面嗣人『近代の東京における庶民住居の発展に関する研究(中央区・文京区における実測調査を中心として)』千葉大学学位申請論文1991年1月、4)中央区文化財調査報告第2集『中央区の木造建造物』東京都中央区教育委員会1993年では、いずれも佃島の住居建築としての飯田家住宅の位置づけや建築的特徴など、貴重な調査研究成果が示されています。
今回の飯田家住宅調査でもこれらの研究成果を参考とさせていただきました。
志村 秀明(芝浦工業大学教授、専門:まちづくり、東京建築士会中央支部)
伊藤 裕久(東京理科大学嘱託教授、専門:都市史・建築史)
伊藤 洋子(芝浦工業大学名誉教授、専門:建築史)
斎藤 信吾(東京理科大学助教、専門:建築設計)
田中 大 (佃島在住)
中野 恒明(芝浦工業大学名誉教授、(株)アプル総合計画事務所代表、東京建築士会中央支部)
壁谷 佳世(旧飯田家住宅所有者)
萩原 啓 (芝浦工業大学大学院建築学専攻修士課程1年)
【タイムライン】
斎藤信吾建築設計事務所
【資金使途】
□建築物の保存・維持管理に関する
事業工事事前調査費用(平面図・断面図・展開図の実測図の精査)
□建築物の活用に関する事業
家財の清掃・撤去作業として
設計費用(意匠・構造・設備)
工事費用(建築本体+家具製作)
登録有形文化財(建造物)申請に係る調査+その他経費
火災保険料+その他経費
■多様な用途混在型シェアスペースとしての活用
①1階は佃島ゆかりの店舗の他、レンタルスペース・シェアオフィスとしての活用。
②2階はシェアハウスとして活用
斎藤信吾建築設計事務所
■利用シーンの事例
①1階佃島ゆかりの店舗
・近隣の方の日常的な利用
・土産などを求める国内外の観光客の利用
②1階レンタルスペース
・登録有形文化財(本建物)や佃島のまちなみの視察・観光の拠点としての一次利用
・近隣の方の日常的な利用
・専門家等の拠点施設としての利用
③2階シェアハウス
・若者の日常の居住スペースとして
旧飯田家住宅の清掃時に発見された魚問屋の屋号(佃喜八)の手ぬぐいを、数量限定ですが返礼品にいたします。
返礼品
・魚問屋の屋号(佃喜八)の手ぬぐい 115枚 ※未使用
地価が高く開発圧力が強い東京では、地域の歴史的・文化的資源を保存・活用するまちづくりは益々難しくなっています。各地でさまざまな工夫を凝らして苦労しながら、歴史文化まちづくりが取り組まれていますが、簡単には解決できない課題が山積です。そこで各地の有志が、「東京歴史文化まちづくり連携」https://www.machizukuri.arc.shibaura-it.ac.jp/ を立ち上げて、直面している状況・課題の共有、歴史的資源活用の手法の共有などを進めています。佃島旧飯田家住宅の保存・活用の成功は、東京全体の歴史文化まちづくりの大きな進展にもなります。また地域コミュニティの形成や歩いて暮らせるまちづくりといった未来に向けた取り組みでもあります。皆様と共に、このプロジェクトを成功させることは、本当に大きな意義があります。ご理解とご協力の程、宜しくお願い申し上げます。
※土地所有者様、建物所有者様(佃島旧飯田家住宅活用委員会メンバー 壁谷 佳世様)からプロジェクト・クラウドファンディングを行うことの許諾を取得しております。
- プロジェクト実行責任者:
- 志村秀明(芝浦工業大学教授、佃島旧飯田家住宅活用委員会)
- プロジェクト実施完了日:
- 2023年8月1日
プロジェクト概要と集めた資金の使途
クラウドファンディングで資金が集まり次第、旧飯田家住宅の改修工事を行います。 集まった資金は事業工事事前調査費用や設計費用、工事費用、登録有形文化財(建造物)申請に係る調査、火災保険料、その他経費 に充てられます。
リスク&チャレンジ
- プロジェクトに必要な金額と目標金額の差額について
- 必要金額と目標金額の差額は自己資金にて補填いたします。万が一自己資金でも確保できなかった場合はプロジェクトが大きく変わらない範囲で規模を縮小するなどして対応し、返金は致しかねます。
あなたのシェアでプロジェクトをさらに応援しよう!
プロフィール
佃島旧飯田家住宅活用委員会は、佃島にある築100年の魚問屋住宅の旧飯田家住宅を保存・活用するために結成された団体です。
あなたのシェアでプロジェクトをさらに応援しよう!
リターン
1,000円+システム利用料
【記念品なし】気軽に応援
●感謝のメール
- 申込数
- 110
- 在庫数
- 制限なし
- 発送完了予定月
- 2023年9月
5,000円+システム利用料

絵はがき7枚セットで応援
●感謝のメール
●旧飯田家住宅 イラスト+写真の絵はがき 7枚セット
- 申込数
- 66
- 在庫数
- 制限なし
- 発送完了予定月
- 2023年9月
1,000円+システム利用料
【記念品なし】気軽に応援
●感謝のメール
- 申込数
- 110
- 在庫数
- 制限なし
- 発送完了予定月
- 2023年9月
5,000円+システム利用料

絵はがき7枚セットで応援
●感謝のメール
●旧飯田家住宅 イラスト+写真の絵はがき 7枚セット
- 申込数
- 66
- 在庫数
- 制限なし
- 発送完了予定月
- 2023年9月
プロフィール
佃島旧飯田家住宅活用委員会は、佃島にある築100年の魚問屋住宅の旧飯田家住宅を保存・活用するために結成された団体です。













