
支援総額
目標金額 1,500,000円
- 支援者
- 166人
- 募集終了日
- 2023年9月12日
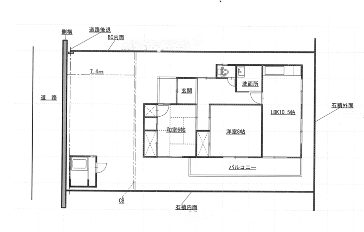
オンセンゴマツボ荘の中は・・
少し前の写真で、かつ準備中ではありますがご紹介。
平成9年築の65㎡、2LDKのこじんまりした家です。
3年前にリフォームされ、オール電化。
エコキュート、エアコン3台、バルコニー設置で
350万円ほどかけたと、大家さん。

敷地は200㎡弱。
道路脇に浴室棟が立ってます。
駐車は2台は余裕で、詰めれば・・かな?(笑)

道路から見たところ(軽トラ&軽箱バン駐車中)
車の前方奥が浴室棟。

建物。

玄関から中を見る。
黒電話は置いてるだけ(笑)
湯布院の家でいただいた。
すぐ左手がトイレ、その先の左手が洗面室。
右手が、手前が和室。黒電話の向こうが洋室。
正面奥がリビングダイニング。

リビングダイニング。
キッチン側からバルコニー方向。

リビングダイニング。
バルコニー側からキッチン方向。
※キッチン自体は平成9年物。


8畳洋室。

6畳和室。

洗面室。
冷蔵庫もここに設置。
リビングダイニングはすぐ隣。

トイレは温水洗浄便座。

「オンセンゴマツボの湯」浴室棟

脱衣室。

源泉かけ流しの浴槽。

シャワーは新品に交換。
リターン
3,000円+システム利用料

オンセンゴマツボ・エコトートバッグ1枚付!
全てのリターン(寄付コース除く)にオンセンゴマツボ・エコトートバッグ1枚を付けていますが、これはそれのみのシンプル支援コースとなります。※画像は確定版のデザインではありません。
- 申込数
- 41
- 在庫数
- 制限なし
- 発送完了予定月
- 2023年10月
5,000円+システム利用料

オンセンゴマツボ・エコトート、オンセンゴマツボの湯立ち寄り湯(市販飲物付)
クラウドファンディング成功により制作させていただいた、オンセンゴマツボ・エコトートバッグ1枚(当日現地渡し)。それとオンセンゴマツボの湯の立ち寄り湯1回付(日時は調整させてください)です。※飲物は市販のペットボトルや紙パックです。※有効期間は1年以内です。
- 申込数
- 3
- 在庫数
- 2
- 発送完了予定月
- 2024年3月
3,000円+システム利用料

オンセンゴマツボ・エコトートバッグ1枚付!
全てのリターン(寄付コース除く)にオンセンゴマツボ・エコトートバッグ1枚を付けていますが、これはそれのみのシンプル支援コースとなります。※画像は確定版のデザインではありません。
- 申込数
- 41
- 在庫数
- 制限なし
- 発送完了予定月
- 2023年10月
5,000円+システム利用料

オンセンゴマツボ・エコトート、オンセンゴマツボの湯立ち寄り湯(市販飲物付)
クラウドファンディング成功により制作させていただいた、オンセンゴマツボ・エコトートバッグ1枚(当日現地渡し)。それとオンセンゴマツボの湯の立ち寄り湯1回付(日時は調整させてください)です。※飲物は市販のペットボトルや紙パックです。※有効期間は1年以内です。
- 申込数
- 3
- 在庫数
- 2
- 発送完了予定月
- 2024年3月

地域の野良猫を守りたい!小さな命にTNRと医療を届けるプロジェクト
- 現在
- 120,000円
- 支援者
- 21人
- 残り
- 1日

命を守る手術器械の職人技を次代へ。技術継承にご支援を
- 現在
- 1,864,000円
- 支援者
- 57人
- 残り
- 8日

市場流通0.1%以下の「国産ごま」を信州から全国へ世界へ発信
- 現在
- 610,000円
- 支援者
- 28人
- 残り
- 8日

アルパカ・タックの膝の健康を守る!ときわ動物園の挑戦
- 現在
- 2,157,000円
- 支援者
- 164人
- 残り
- 20日

何があっても、駆けつける。救急医療の生命線「病院救急車」の更新へ
- 現在
- 25,833,000円
- 寄付者
- 308人
- 残り
- 26日

「アレルギー対応の教科書」を届けたい
- 現在
- 368,500円
- 支援者
- 43人
- 残り
- 6日

福岡県筑豊地区TNR助成金及び崩壊案件で不幸な猫を減らしたい
- 総計
- 11人













