
支援総額
目標金額 3,000,000円
- 支援者
- 349人
- 募集終了日
- 2023年3月31日

ぬるぬるのお引越|万博・落合陽一 null²パビリオン次なる場所へ
#ものづくり
- 現在
- 216,965,000円
- 支援者
- 12,306人
- 残り
- 29日

「防衛技術博物館を創る会」のマンスリーサポーターを募集します!
#地域文化
- 総計
- 530人

百寿の琴電23号、次世代に受け継ぐ応援を!
#地域文化
- 現在
- 424,500円
- 支援者
- 44人
- 残り
- 9日

清瀬市から未来へ— 幻のロマン客車「夢空間」の鼓動を、再び。
#地域文化
- 現在
- 2,316,064円
- 支援者
- 113人
- 残り
- 10日

「網走鉄道」 レール延伸 ホーム設置 運転設備拡充工事のご支援願い
#観光
- 現在
- 562,000円
- 支援者
- 32人
- 残り
- 25日

#みんなで届ける介助犬|介助犬と共に笑顔で暮らせる人を増やしたい。
#医療・福祉
- 現在
- 611,000円
- 寄付者
- 71人
- 残り
- 34日

上毛電気鉄道|次の100年を共につくる、新たな”なかま”を迎えたい
#地域文化
- 現在
- 3,581,000円
- 支援者
- 125人
- 残り
- 22日
プロジェクト本文
終了報告を読む
ネクストゴール達成のお礼と
3月31日(金)23:00までのご支援のお願い
2023年2月17日にスタートしたクラウドファンディングは皆様からのご支援により第一目標達成に続き、終了3日前にしてネクストゴールも達成することができました。
述べ300名を超える皆様よりご支援、心温まる応援のお言葉頂き、これまでの20年間の我々の保存活動にご賛同が頂けていることに大変励まされております。
スタッフ一同心よりお礼申し上げます。
鉄製有蓋貨車の復元の後には旧ライジングサン石油タンク車の復元が控えております。
旧ライジングサン石油タンク車は1900(明治33)年製の旧関西鉄道鉄製有蓋貨車よりさらに古く、製造時期は1895(明治28)~1898(明治31)年と見られます。
鉄製有蓋車と部品は共通のものも多く、今回同時に製作しておく方が製作コストが低くなり、次期目標達成までに要する時間も短縮されるというメリットがあります。
こちらの支援金の募集は3月31日(金)23:00まで引き続き行っておりますのでご支援よろしくお願い致します。
2023.3.30 追記
国内最古級の貨車を、現役時の姿に!
旧関西鉄道鉄製有蓋貨車の復元にご支援を
日本の経済発展を支えてきた、鉄道による貨物輸送。
三重県いなべ市にある貨物鉄道博物館は、国内で初めての貨物鉄道を専門とする博物館として、2003年に開館しました。
今年2023年は、国内で鉄道による貨物輸送が始まってから150周年、貨物鉄道博物館が開館して20周年という節目の年です。
これを記念して当館では、地元の四日市で123年前に製造された、旧関西鉄道鉄製有蓋貨車の復元を行います。
1900年に製造された7トン積鉄製有蓋貨車、旧関西鉄道鉄製有蓋貨車。1950年頃に廃車となりましたが、製造から120年近く形を変えながらも倉庫として使用されてきました。
しかし、この貨車が解体される予定であることを知り、私たちは所有者の関東鉄道に保存展示のための譲渡を打診。ご快諾いただき、2017年に貨車が当館へ到着しました。
すでに車体の修復作業は完了していますが、当時の図面を参考にして、ここから更に床下を復元したいと考えています。それによって、現在不可能な台枠の補修・塗装と、123年前に製造された珍しい台枠構造の見学が可能となります。
ただ、車輪の改造、軸箱・軸箱守・担弾機などの製作には多大な費用がかかり、当館だけの力では復元が困難な状況です。
鉄道による貨物輸送は、二酸化炭素排出量が自動車の約10分の1と、持続可能な未来社会を目指す上で大きな可能性を持っています。
貨車の実物に接し、「ものを運ぶ仕組み」の大変さや大切さを感じていただくことを通じて、貨物輸送の歴史を広く伝えていくことが、より良い社会を目指す上での私たちの使命だと感じています。
ご賛同いただける皆さまからのあたたかいご支援を、何卒よろしくお願い申し上げます。
特定非営利活動法人 貨物鉄道博物館
全国でも珍しい
貨物鉄道専門の博物館
1873(明治6)年9月15日に始まった、国内での鉄道による貨物輸送。それから130周年を迎えるのを記念して、2003年、初めての貨物鉄道を専門とする博物館として貨物鉄道博物館は開館しました。
主要な展示物である様々な種類の実物貨車は、全国の鉄道事業者や企業・個人からの寄贈や貸与によるもので、貴重な車輌が勢揃いしています。機関車や客車、電車の陰に隠れ決して表舞台に出ることは無かったものの、これらの貨車が果たしてきた役割は大変大きなものがあります。
当館は一般からの寄付とボランティアにより運営されており、開館日にはスタッフによる貨車の修復、塗装作業もご覧いただけます。
開館以来、収蔵車輌も増え、木材や鉄、アルミなど時代や用途により材質や構造も異なる様々な貨車を野外展示しているため修復、保全は欠かせません。
我が国の鉄道貨物輸送150周年
貨物鉄道博物館20周年の節目の記念事業
2023年は鉄道による貨物輸送が1873(明治6)年9月15日に始まって150周年、貨物鉄道博物館が開館して20周年という節目の年になります。これを記念して貨物鉄道博物館では、地元四日市で123年前に製造された旧関西鉄道鉄製有蓋貨車の復元を行いたいと思います。
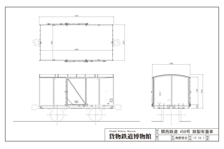
旧関西鉄道鉄製有蓋貨車について
復元対象の貨車は1900(明治33)年10月、関西鉄道四日市工場で458号として製造された7トン積鉄製有蓋貨車(※)です。四日市工場は現在のJR四日市駅東側の貨物ターミナル付近にありました。
※有蓋貨車(ゆうがいかしゃ):屋根のある貨車の総称。
当時は鉄材の国産が始まったばかりで、需要を賄い切れなかったためかこの貨車にも舶来の鋼材が使われており、欧米メーカーの刻印が見られます。
1907(明治40)年10月の関西鉄道国有化で、テワ1003形1009と形式変更されています。現在の貨車は鉄製がほとんどですが、当時は木造貨車が多数派の時代、全て鉄で作られた有蓋貨車ということで鉄(テツ)、有蓋貨車(ワゴン)の頭文字を取って「テワ」と名付けられました。
鉄製有蓋貨車は木造貨車では引火性があって危険な灯油缶や、水に濡れると発火する危険性がある生石灰などの輸送に使われることが多かったのですが、この貨車が現役時に実際どのように使われていたのかは定かでありません。
その後、1921(大正10)年9月に現在の関東鉄道竜ケ崎線の前身、龍崎鉄道へ譲渡され、線内貨物輸送に使われていたものと見られます。

1950年頃に廃車となったようですが、小型の全鋼製車だったため倉庫として使い勝手が良く、それゆえに製造から120年近く形を変えながらも使用されたものと思います。
年表1900(明治33)年10月 関西鉄道四日市工場にて458号として製造。
1907(明治40)年10月 関西鉄道国有化。テワ1003形1009号に改番。
1921(大正10)年 9月 龍崎鉄道へ譲渡。テワ1形1号に改番。
1928(昭和3)年 9月 テ1形1号に改番。
1944(昭和19)年 5月 龍崎鉄道が鹿島参宮鉄道と合併。
1950(昭和25)年頃 廃車。倉庫として利用。
1965(昭和40)年 6月 鹿島参宮鉄道が常総筑波鉄道と合併し関東鉄道成立。
2017(平成29)年 9月 貨物鉄道博物館へ移設。
貨物鉄道博物館への収蔵
この貨車が関東鉄道竜ケ崎線竜ケ崎客車庫で付属倉庫として使われていることは、四日市市立博物館で2017(平成29)年8~9月に開催された四日市市制120周年記念企画展「メイド・イン・ヨッカイチ」でも紹介され、同年8月末で車庫の解体工事によりこの貨車も一緒に解体されることを知りました。
当該有蓋貨車(倉庫)は、「鉄道車輌製造技術の発達の観点から見た産業文化財としての価値」が極めて高く、ぜひ地元三重県に戻して貨物鉄道博物館で保存展示したいと考え、関東鉄道へ譲渡のお願いをするに至りました。
保存展示案に快諾いただき、2017(平成29)年9月20日に竜ケ崎駅より搬出、翌21日に貨物鉄道博物館へ到着しました。
車体の復元
鉄道雑誌などで、関西鉄道・龍崎鉄道~鹿島参宮鉄道時代の現役写真を募ったところ、鹿島参宮鉄道時代の写真を提供いただき、今回の修復は関東鉄道の前身である鹿島参宮鉄道時代での修復と決定しました。
鹿島参宮鉄道で廃車後に倉庫として使われていた頃に開けられた通風窓や煙突穴、屋根の経年劣化による錆穴を埋めました。
また、欠落していた車体ブレーキ部手摺も実車写真・図面をもとに製作していただきました。車体・台枠の泥・錆落としを行い、塗装、鹿島参宮鉄道時代の車輌番号・形式などの標記を入れました。
下回りを復元し現役時の姿へ
123年前の珍しい台枠構造の見学も可能に
倉庫として利用されていた車体の修復作業は完了しましたが、貨物鉄道博物館では、テワ1が現役時代に履いていた車輪に似た松葉スポーク車輪を所蔵しておりますので、今後はこれを使い、軸箱・軸箱守・担弾機などを当時の図面を参考に製作して床下を復元したいと考えております。
床下を復元することにより、現在不可能な台枠の補修・塗装が可能になり、また123年前に製造された珍しい台枠構造の見学も可能となります。
ただ、車輪の改造、軸箱・軸箱守・担弾機などの製作には多大な費用が掛かり、貨物鉄道博物館単独では復元が困難なのが現状です。
<1st GOAL>
第一目標金額:300万円
資金の使い道:
・旧関西鉄道鉄製有蓋貨車の足回りの修繕費
・・・
※本プロジェクトはAll or Nothingです。目標金額に1円でも満たなかった場合は全額返金となってしまいます。
今後の展望
持続可能な物流システムとしての鉄道へ
鉄道による貨物輸送は、輸送量あたりの二酸化炭素排出量が自動車の約10分の1で、持続可能な未来社会を目指す上で大きな可能性を持っています。
小学校や中学校ではいろいろな品物の生産と消費について学びますが、その二つをつなぐ「ものを運ぶ仕組み」を学ぶことは、近年ますます大切になってきていると思っています。
貨物鉄道博物館は、修復された貨車の実物に接して、「ものを運ぶ仕組み」について考えたり、その大変さや大切さを感じていただけることを願っています。鉄道による貨物輸送の歴史を、保存貨車を通じて伝えることは、より良い社会を目指す上での私たちの使命だと感じています。
皆様の温かいご理解とご支援をよろしくお願い申し上げます。
代表メッセージ
南野 哲志
貨物鉄道博物館 常務理事
1873(明治6)年に新橋~横浜間で誕生して今年で150年を迎える日本の鉄道貨物輸送。三重県四日市市に本社・工場を置いていた関西鉄道では、国内製鉄がまだ不安定だった鉄道黎明期の1900(明治33)年に、輸入鋼材を用いて四日市の自社工場で鉄製有蓋車の製作を行いました。
そんな、国内最古級の鉄製有蓋車車体が関東鉄道で倉庫として現存しており、同社で解体されることがわかったため当館が譲り受け、三重県へ里帰りすることとなりました。そしてこの度、貨物鉄道150周年と当館20周年を記念して、床下復元を計画しました。
地元四日市の産業遺産として後世へ伝えていきたいと思いますので、ご支援よろしくお願いします。
ご留意事項
・リターンの【お名前掲載】は、リターン送付先にご登録いただいているお名前となります。
・ また【お名前掲載】に関するリターンの条件詳細については、リンク先(https://readyfor.jp/terms_of_service#appendix)の「支援契約」の中にある「●命名権、メッセージの掲載その他これに類するリターン」をご確認ください。
・支援完了時に「応援コメント」としていただいたメッセージは、本プロジェクトのPRのために利用させていただく場合があります。
・ご支援確定後にアカウント情報を変更した場合でも、ご支援時に入力したお届け先の宛名と住所は変更されません(個別にご連絡いただかない限り、原則としてご支援時に入力いただいた宛名と住所にリターンをお送りさせていただくことになります)のでご注意ください。
達成のお礼とネクストゴールについて
2023年2月17日にスタートしたクラウドファンディングは皆様からのご支援により開始23日目にして第一目標金額の300万円を達成することができました。
ご支援、応援頂きました皆様に心より感謝申し上げます。
物価高の折で目標達成は厳しいのではないかという予想に反し、産業遺産である鉄製有蓋貨車の保存に対し多くの方のご賛同を頂きスタッフ一同身の引き締まる思いです。
クラウドファンディング終了の3月31日までは、鉄製有蓋車の次に復元を予定している旧ライジングサン石油タンク車の部品製作費に充てるネクストゴール400万円を設定させていただきたいと思います。
旧ライジングサン石油タンク車は1900(明治33)年製の旧関西鉄道鉄製有蓋貨車よりさらに古く、製造時期は1895(明治28)~1898(明治31)年と見られます。
鉄製有蓋車と部品は共通のものも多く、今回同時に製作しておく方が製作コストが低くなり、次期目標達成までに要する時間も短縮されるというメリットがあります。
クラウドファンディング終了の3月31日23:00まで引き続きご支援、ご協力いただきますよう宜しくお願い申し上げます。
2023.3.13 追記
- プロジェクト実行責任者:
- 伊藤則人(特定非営利活動法人貨物鉄道博物館)
- プロジェクト実施完了日:
- 2023年10月31日
プロジェクト概要と集めた資金の使途
特定非営利活動法人貨物鉄道博物館が貨物鉄道博物館にて旧関西鉄道鉄製有蓋貨車の車体下回りを復元します。 集まった資金は下回り製作2,475,000円に自己資金と合わせて使用します。
あなたのシェアでプロジェクトをさらに応援しよう!
プロフィール
あなたのシェアでプロジェクトをさらに応援しよう!
リターン
3,000円+システム利用料
お気持ちコース 3,000円
■お礼のメール
■復元記念プレートへのお名前記載(希望者のみ)
※リターン送付先にご登録いただいているお名前となります
- 申込数
- 44
- 在庫数
- 制限なし
- 発送完了予定月
- 2023年4月
5,000円+システム利用料

貨鉄博クリアファイル
■お礼のメール
■貨鉄博クリアファイル
■旧関西鉄道鉄製有蓋貨車パンフレット
■復元記念プレートへのお名前記載(希望者のみ)
※リターン送付先にご登録いただいているお名前となります
- 申込数
- 160
- 在庫数
- 制限なし
- 発送完了予定月
- 2023年4月
3,000円+システム利用料
お気持ちコース 3,000円
■お礼のメール
■復元記念プレートへのお名前記載(希望者のみ)
※リターン送付先にご登録いただいているお名前となります
- 申込数
- 44
- 在庫数
- 制限なし
- 発送完了予定月
- 2023年4月
5,000円+システム利用料

貨鉄博クリアファイル
■お礼のメール
■貨鉄博クリアファイル
■旧関西鉄道鉄製有蓋貨車パンフレット
■復元記念プレートへのお名前記載(希望者のみ)
※リターン送付先にご登録いただいているお名前となります
- 申込数
- 160
- 在庫数
- 制限なし
- 発送完了予定月
- 2023年4月













