支援総額
3,056,000円
目標金額 3,000,000円
- 支援者
- 147人
- 募集終了日
- 2014年3月18日
https://readyfor.jp/projects/girls-square?sns_share_token=&utm_source=pj_share_url&utm_medium=social
2014年01月31日 18:20
サポーターミーティング
沖縄ガールズスクエアの能塚です。いつもあたたかい応援ありがとうございます。
今日午前中は、サポーター全員で、本プロジェクトについてのミーティングを行いました。
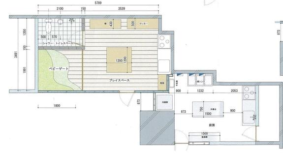
市役所や保健所からの指導内容を図面をみながら共有すると同時に、実現へ向けての知恵を出し合いました。
あと46日、実現には、あと2,669,000円! というまだまだこれからという状況ですが、なんとしても、できるだけ多くの方に知っていただき、私たちのような女性の起業応援活動が全国各地に広がることを夢見ながら、本プロジェクトの実現を目指して頑張ります!
引き続きの応援、どうぞよろしくお願いいたします。
沖縄ガールズスクエア 能塚

リターン
3,000円
・サンクスメール
- 申込数
- 102
- 在庫数
- 制限なし
10,000円
・サンクスレター
・完成したキッチンで創作した商品
【アイシングクッキーと
焼き菓子の詰め合わせセット】
・HPに、完成ありがとうのお名前掲載
- 申込数
- 87
- 在庫数
- 制限なし
3,000円
・サンクスメール
- 申込数
- 102
- 在庫数
- 制限なし
10,000円
・サンクスレター
・完成したキッチンで創作した商品
【アイシングクッキーと
焼き菓子の詰め合わせセット】
・HPに、完成ありがとうのお名前掲載
- 申込数
- 87
- 在庫数
- 制限なし
1 ~ 1/ 5
このページを見た人はこんなプロジェクトもチェックしています
アニメーター支援機構 菅原潤
イノセンス・プロジェクト・ジャパン
株式会社AIRDO
一般社団法人 野良猫もみな家族だよ
E.Saku
りりあ
特定非営利活動法人 あおぞら

低賃金の新人アニメーターに住居支援し、割の良い仕事を作りたい!
継続寄付
- 総計
- 39人

えん罪のない世界へ!IPJサポーター
継続寄付
- 総計
- 79人

未来のパイロットを応援!AIRDO Lakseløp 2025
35%
- 現在
- 1,061,000円
- 支援者
- 54人
- 残り
- 10日

保護猫活動を続けるために継続的な寄付をお願いします
継続寄付
- 総計
- 6人

姪の支援をお願いします。妹が病気で最後の一年分の学費が払えません。
27%
- 現在
- 387,000円
- 支援者
- 36人
- 残り
- 35日

マーチングバンド全国大会出場に伴う楽器運送費等の活動費のお願い
137%
- 現在
- 206,000円
- 支援者
- 61人
- 残り
- 17日

瀬戸内発! 持続可能な豊かな町づくりを目指して
継続寄付
- 総計
- 0人











