支援総額
目標金額 400,000円
- 支援者
- 89人
- 募集終了日
- 2017年3月21日

ごかつら池どうぶつパーク|命を守り、次世代へ繋ぐ小さな動物園の挑戦
#観光
- 現在
- 5,604,000円
- 支援者
- 344人
- 残り
- 36日

物価高でごはん食べられない若者に今すぐ食糧を|緊急支援2025冬
#子ども・教育
- 現在
- 11,810,000円
- 寄付者
- 311人
- 残り
- 29日

ぬるぬるのお引越|万博・落合陽一 null²パビリオン次なる場所へ
#ものづくり
- 現在
- 216,929,000円
- 支援者
- 12,303人
- 残り
- 29日

「アレルギー対応の教科書」を届けたい
#子ども・教育
- 現在
- 311,000円
- 支援者
- 36人
- 残り
- 9日

「防衛技術博物館を創る会」のマンスリーサポーターを募集します!
#地域文化
- 総計
- 530人

国宝 彦根城、日本の遺産を未来へつなぐ|高橋架け替えで蘇る大名庭園
#地域文化
- 現在
- 7,985,000円
- 寄付者
- 195人
- 残り
- 36日

【第三弾】日本の囲碁・ペア碁を未来へ繋ぐ!棋士強化と派遣にご支援を
#地域文化
- 現在
- 7,330,000円
- 支援者
- 65人
- 残り
- 11日
プロジェクト本文
終了報告を読む
100万円達成!ご支援いただいた皆様、
永遠にこの家と文化を守り続けるために。
今回の改修後、次は205年後に改修工事を実施いたします。
205年後の未来に、あなたのお名前を繋ぎませんか。
くわしくはこちら→【おしらせ】2世紀先もずっと守り続ける
皆さまの暖かいご支援ありがとうございました!ご支援いただいた皆様のご芳名を土壁とともに、
皆さまのご支援のおかげで、
この家は、木と土で出来ている建物です。
人も家も、老いや痛みをすこしずつ治療しながら、生きていく。
次の時代も、この家が『人と共に生きる』建物であるように。
もう少しだけ、お力を貸していただけませんでしょうか。
これまでのご支援で、
150年間この場所を守っていた、土壁。
大西拝 <2017年3月14日追記>
"五感を使って営むくらし"
京町家のくらしと文化をもっとたくさんの人に知ってもらいたい!
皆さま、はじめまして、大西里枝と申します。京都で日本の伝統工芸品のひとつである、京扇子の製造・販売をしている家に生まれ育ち、今は後継者としての修業をしています。
私の実家は、築150年ほどの伝統的な職住一体型の町家造りです。この京町家の良さを後世に残しつつ、現在失われつつあるこの京都の暮らしの営みや、行事などを共有したい!と10年ほど前から痛んだ場所や、地震に耐えられない場所を少しづつ改修してきました。ここまでの修復によって、状況は大きく改善してきました。
そしてここからは、お越しいただいた皆さまに、京町家を見ていただいたり、五節句などの日本の伝統行事を体験していただくためのスペース作りをしていきたいと考えています。そのためには、京扇子の作業スペースを二階へ移転させ、部屋の改修を行う必要があります。ぜひ皆さんのお力をお借りできませんでしょうか。
子どもの頃はただ古いだけ、と感じていましたが、今ではその四季を感じる「京町家の暮らし」に魅了されています。
現在の京扇子の製造販売は、約100年前から続けている家業です。その前は元結屋をしていました。大正後期、日本髪の衰退によって商材を変更、京扇子を扱い始めました。
そんな我が家には、母屋と離れ、庭、茶室、蔵、作業場などが100坪ほどの敷地にぎゅっと凝縮されています。「なんでうちだけこんな古い家やの!床暖房があるとこに引っ越したい!」と、小さな頃はよく駄々をこねたものですが、大人になってからは、「京町家の暮らし」に魅了されています。
朝露に濡れる奥庭の草花たちを眺めながらいただく朝の一服。
台所のおくどさんから立ち上る湯気と、ご飯の匂い。
年中節句や行事を楽しむ家族の笑い声。
「五感を使って生活を営んでいく」という事がとても楽しく、四季の変化に胸を躍らせる日々です。
『うちらは今、ご先祖さんからこの家をお預かりしてるだけ。』
母のこの一言で、家族でこの家を守り伝えることを決めました
15年前に京都に訪れた空前のマンションラッシュ。家族での話し合いに決着をつけたのは母の一言でした。「おめでとうございます!このあたりはマンション需要が高く、高価格での取引が可能なんですよ!」頻繁にセールスマンが訪問するようになったのが、この時期でした。
何百軒もの町屋が解体されて、マンションへと姿を変えていきました。京町家は維持に多額の費用が掛かります。伝統的工法を使って建てている町家では、ビルやマンションを一棟建てられるほどのお金がとんでいく事もあります。その他にも、相続税の問題などで、泣く泣く手放した人もたくさんおられたと聞き及んでいます。
私たちの家の周辺も例外ではありません。来年の夏には、裏手にも新しいビルが建てられることになり、道路に面した玄関以外の三方を地上五階建てのビルに囲まれることになりました。
とにかく、この時期を境に、京都の市街地からどんどん京町家が減少していきました。「うちも壊してビルにしてしまお、賃貸にしたらええんとちゃうか」当時、私は成人しておらず、知らされることはありませんでしたが、親族の間でそういった論争が繰り広げられた時期もあったようです。
『うちらは今、ご先祖さんからこの家をお預かりしてるだけ。時代に流されて、簡単に変えたらあかんの。この家と土地で営んでいかんならんのやから。』
「先祖が建てた家をお預かりしている私たちには、この家と、そこに根付く生活文化を後世に伝えるという責任がある」 母は、そう言いたかったのだと思います。この言葉を契機にして、私たちのプロジェクトはスタートしました。
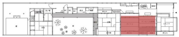
作業場を人々が集まるスペースに。
それから15年間。建仁寺などを手掛ける宮大工のみなさんと一緒に、痛みのひどい場所や、地震に耐えられない場所を少しづつ改修してきました。全てを新しくするのではなく、古い木材は洗いにかけ、再利用できるものはすべて使い、なるべく150年間の時間を損なわないように気を付けて改修を進めました。そして、今回のプロジェクトで、京町家をより多くの人にご覧いただける環境を整えたいと考えています。
京町家の1階部分には扇子の作業場があり、この作業場が1階の居室の多くを占めています。より多くの人にいつでも京町家を楽しんでもらえるように、十分な面積を確保するべく、この作業場を2階に移転し、一部改装したいと考えています。
高祖父がこの家を建てていた時には、町の人々が集まるようなスペースとして使われていたそうです。二階の居室では、浄瑠璃や、能の謡など様々なお稽古を楽しんでいたといいます。
■実施を予定している行事やイベント
・月釜(お茶会)
・能の鑑賞会
・中秋の名月を眺めて菊酒を楽しむ「重陽の節句」
・おくどさんで炊いたもち米を杵臼でついてお餅を作って食べる「餅つき会」
・代々伝わる兜や軸などのお飾りを眺めながら、菖蒲酒や柏餅を楽しむ「端午の節句」
節句を町家で楽しめるイベントもたくさん開催し、より多くの方にお楽しみいただけるようにしたいと考えております。
「おかえりやす」とお迎えできる場所でありたい。
扇子を求めにご来店くださる方、投扇興や扇子の絵付けを楽しみに来てくださる方、「たまたま近くに寄ったから」と言って挨拶に来てくださる方、ご近所の皆さん、ここにお越しになる皆様に、もっとたくさんの方に京都の昔ながらの暮らしと、かつてそこにあった「五感を使って楽しむ日々の暮らし」を知ってもらいたいと考えています。
私たちが、ご先祖さんから受け取ったこの空間を、今度はたくさんの人たちとシェアしたいのです。日常のくらしだけではなく、「古くから伝わる年中行事を家庭で楽しむ」こともご一緒したいと考えています。年中行事というのは、日常の中にある生活の中、文化や四季を大切にして、行事を通じて日本の心を養っていくものだと考えています。
この場所が、日本の皆さんにとって、ほっこりと、心を暖かくして帰ってもらえる場所でありたいと思っています。日本の、京都のくらしの文化を、100年先の未来に繋ぐためのお力添えを、どうぞよろしくお願いします!
リターンについて
京都の節句文化を中心としたリターンをご用意しています。「節句」はハレの行事です。日常生活とは違う、特別な日。毎年同じ行事を重ねるたびに、人生の変化や、家族を取り巻く様々な物事に気づく事ができます。
「去年の今頃はあんなことがあったなあ。」
「節句が来たら、言うてる間におじいちゃんの命日やわ。」
「こないだまでよちよち歩いてたのに、兜がよぉ似合おて」
そんな風に、「今まで生きてこられた」事を感謝する日です。京都で大切にしてきた、節句の行事と、お祝いの品々をおすそわけします。
A.端午の節句セット【粽、菖蒲(刀用、湯用、軒用)、菖蒲酒キット】
粽や菖蒲湯はおなじみですが、菖蒲で戦う「菖蒲刀」、玄関に飾って邪気を払う「軒菖蒲」オトナがうれしい「菖蒲酒」作成キットもあわせておすそわけ。

B.七夕の節句セット【竹猪口&竹器、そうめん、短冊】
京都老舗竹材店がこしらえた「青竹のおちょこと竹器」発送日にあわせて竹を伐採するので、竹林の香りがほんわり。おそうめんを竹器に盛ってお祝いします。

C.重陽の節句セット【菊酒キット、菊の着綿、栗】
栗をあてに菊酒を飲んでほんのりええ気分。菊のしずくを綿にまとわせ、身体をぬぐって長寿を祈ります。

D.七草の節句セット【お米、七草、七草囃子の歌詞、七草爪用爪切り】
七草を叩いて、歌って、七草粥づくり。年の初めに、みんなで爪を切って一年の健康を祈りましょう。

E.上巳の節句セット【ひちぎり、桃花酒キット、ひなあられ】
引きちぎる、という意味の京菓子「ひちぎり」をおすそわけ。子供は甘酒ですが、大人は桃花酒を飲んでお祝いを。

その他にも、現地に来て下さる方向けに「オープニングイベント」や「お抹茶・生菓子チケット」、「宿泊プラン」などもご用意しております。
■大西 里枝 フェイスブックページ
■大西常商店 ホームページ
■大西常商店 フェイスブックページ
あなたのシェアでプロジェクトをさらに応援しよう!
プロフィール
京扇子の製造卸・小売を行っている㈱大西常商店で若女将として働いています。見習い修行中の27歳です。
あなたのシェアでプロジェクトをさらに応援しよう!
リターン
4,000円

巻物+ミニ扇子コース
■巻物への記名
■巻物への記名部分のお写真送付
■ミニチュア京扇子
ご支援いただきました皆様のお名前を書いた巻物を、大切に飾らせていただきます。
また、職人手作りの季節のミニチュア京扇子もお送りさせていただきます。
- 申込数
- 31
- 在庫数
- 29
- 発送完了予定月
- 2017年5月
7,000円

なんぞってなんぞ?コース
■巻物への記名
■巻物への記名部分のお写真送付
■大西家とっておきのなんぞ(おやつ)
京都弁でなんぞ、はおやつやお菓子の事を差します。
大西家が昔から「ここぞ」という時に頼む、とっておきの季節の「なんぞ」をお届けします。
※画像はイメージです
- 申込数
- 11
- 在庫数
- 制限なし
- 発送完了予定月
- 2017年5月
4,000円

巻物+ミニ扇子コース
■巻物への記名
■巻物への記名部分のお写真送付
■ミニチュア京扇子
ご支援いただきました皆様のお名前を書いた巻物を、大切に飾らせていただきます。
また、職人手作りの季節のミニチュア京扇子もお送りさせていただきます。
- 申込数
- 31
- 在庫数
- 29
- 発送完了予定月
- 2017年5月
7,000円

なんぞってなんぞ?コース
■巻物への記名
■巻物への記名部分のお写真送付
■大西家とっておきのなんぞ(おやつ)
京都弁でなんぞ、はおやつやお菓子の事を差します。
大西家が昔から「ここぞ」という時に頼む、とっておきの季節の「なんぞ」をお届けします。
※画像はイメージです
- 申込数
- 11
- 在庫数
- 制限なし
- 発送完了予定月
- 2017年5月
プロフィール
京扇子の製造卸・小売を行っている㈱大西常商店で若女将として働いています。見習い修行中の27歳です。













