
支援総額
目標金額 10,000,000円
- 支援者
- 573人
- 募集終了日
- 2023年5月29日
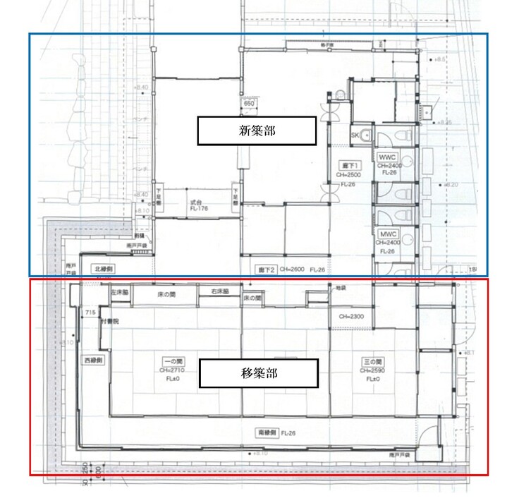
移築部分と新築部分
クラウドファンディング最終章、2月5日(水)23時の終了まで残り2日となりました。
重ねてのご支援くださる方も多く、本当に有難い限りです。
本当にありがとうございます。
先日工事の進捗報告で現在の写真を掲載させていただきましたが、建物の全体図面をご紹介したことがなかったと思いますので、改めてご紹介させていただきます。
今回の工事は、水月ホテル鷗外荘から移築する部分と、それだけですと一軒の建物として完成しないため、新築部分を追加してます。
具体的には、こちらの図面のように移築部分、新築部分と分かれています。

移築部分は広間と縁側のみで、それ以外の玄関や台所、トイレ等は新築いたします。
もちろん森鴎外が住んでいた頃には、この広間だけでなく玄関や台所、トイレ、他にも部屋があったのだと思いますが、その後の変遷の中で改築され、残されていたのが広間と縁側でした。
それだけでは建物として活用が出来ないので、新築部分も併せて一軒の建物にしています。
そして、図面の移築部の左側と下側の面は全部縁側になっており、構造的にはとても弱いため、現在の耐震基準に合致するよう構造に鉄骨を組み込んだり、縁側の建具に工夫を凝らしたりと構造強化をはかっています。
そして構造強化をしたことで、もともと使っていた材が使えない部分も出てきました。
材自体が傷んでいて使用出来ないケースと、構造的に使用出来ないケースと両方ありますが、残ってしまった木材や建具があります。
6mある大きな丸太や柱材、縁側の建具、雨戸などが残っています。
その内、明治時代の建築当初のものではないものもありまして、選別した上で、当時のものはなるべく何かに再利用出来ないかと活用方法を検討中です。
それでは、2月5日(水)23時終了まであと2日、引き続きご支援よろしくお願いいたします。
リターン
5,000円+システム利用料

お気持ちコース
●お礼メール
返礼品をお送りしない代わりにより多くの金額をプロジェクトに活用させていただきます。
※お一人様複数口のご支援も可能です。
- 申込数
- 232
- 在庫数
- 制限なし
- 発送完了予定月
- 2023年6月
10,000円+システム利用料

御朱印・クリアファイル(絵:士農力)・つつじ苑入苑券2枚コース
●お礼状
●根津神社HPへのご芳名掲載(希望者)
●根津神社御朱印
●A5クリアファイル(絵:士農力)
●つつじ苑入苑券2枚(有効期限なし)
つつじまつりは毎年4/1~4/30に実施しています。早咲き、遅咲きあり長い期間楽しめます。
※有効期限はございませんが、入苑されない場合でもご返金できかねますのでご注意ください。
※お一人様複数口のご支援も可能です。
- 申込数
- 187
- 在庫数
- 制限なし
- 発送完了予定月
- 2023年8月
5,000円+システム利用料

お気持ちコース
●お礼メール
返礼品をお送りしない代わりにより多くの金額をプロジェクトに活用させていただきます。
※お一人様複数口のご支援も可能です。
- 申込数
- 232
- 在庫数
- 制限なし
- 発送完了予定月
- 2023年6月
10,000円+システム利用料

御朱印・クリアファイル(絵:士農力)・つつじ苑入苑券2枚コース
●お礼状
●根津神社HPへのご芳名掲載(希望者)
●根津神社御朱印
●A5クリアファイル(絵:士農力)
●つつじ苑入苑券2枚(有効期限なし)
つつじまつりは毎年4/1~4/30に実施しています。早咲き、遅咲きあり長い期間楽しめます。
※有効期限はございませんが、入苑されない場合でもご返金できかねますのでご注意ください。
※お一人様複数口のご支援も可能です。
- 申込数
- 187
- 在庫数
- 制限なし
- 発送完了予定月
- 2023年8月

東京国立博物館|価値ある文化財を救い出す。源氏物語図屏風、修理へ
#伝統文化
- 現在
- 59,505,000円
- 寄付者
- 2,847人
- 残り
- 30日

【静岡県竜巻】緊急支援を開始!被災地を応援してください
- 現在
- 568,000円
- 寄付者
- 69人
- 残り
- 21日

国立科学博物館マンスリーサポーター|地球の宝を守りつづける
- 総計
- 679人

埼玉おもちゃ美術館 子育て支援のためのバス増便にご支援を!
- 現在
- 145,000円
- 支援者
- 14人
- 残り
- 2日

ぬるぬるのお引越|万博・落合陽一 null²パビリオン次なる場所へ
- 現在
- 216,684,000円
- 支援者
- 12,280人
- 残り
- 30日

たった7人でも夢は叶う!玉村ミニバレークラブ、2度目の全国大会へ!
- 現在
- 67,000円
- 支援者
- 12人
- 残り
- 4日

坂本龍馬ゆかりの御神木、倒壊。京都・武信稲荷神社「希望の再建」へ
- 現在
- 6,425,000円
- 支援者
- 337人
- 残り
- 47日








