
支援総額
目標金額 10,000,000円
- 支援者
- 573人
- 募集終了日
- 2023年5月29日
工事進捗報告
いつも応援ありがとうございます。
森鴎外『舞姫』執筆の旧居 根津神社への移築プロジェクト【最終章】が
2月5日(水)23時の終了まで、残り4日となりました。
現在目標50%の達成となっております。ここまでご支援いただきました皆様本当にありがとうございます。
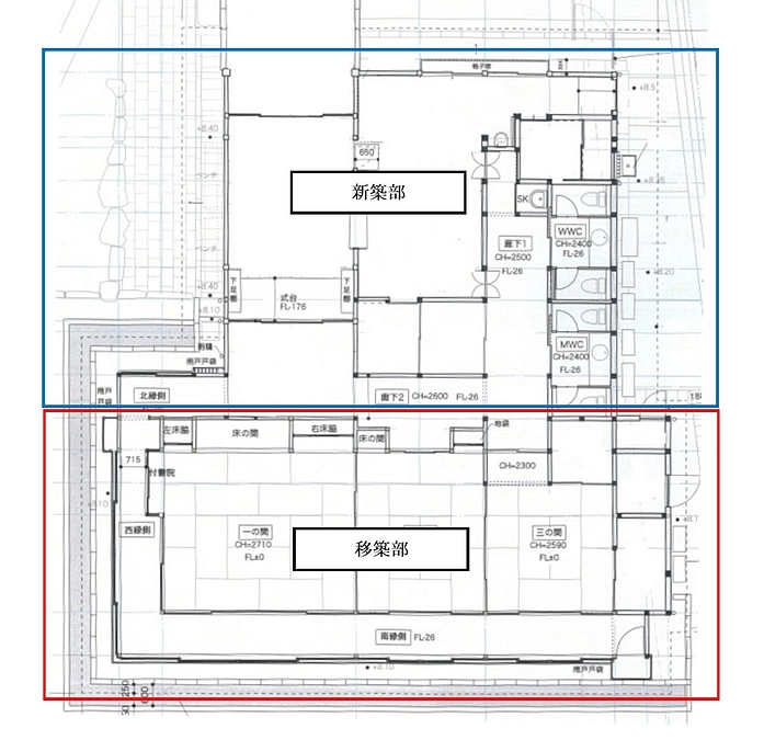
工事の方もだいぶ進んでまいりましたが、外側からだと屋根の一部分しか見えない状態になっており、現在の内部の様子も含め、ご報告いたします。
ちなみに、囲いには、現在、氏子地域の千駄木小学校の生徒さんの絵が飾られています。

昨年12月頃から屋根の工事が始まり、徐々に瓦葺きが進み、昨日完了したところで、これから銅板葺きの部分が進められていきます。



床下の設備や人通ピットの工事なども進み、床板が徐々に張られてきています。

以下は現在の室内の様子です。
天井には鉄骨が組まれ、強度を上げています。

縁側部分。

外がシートでよく見えませんが、室内から庭を眺めたところ。

庭から建物を眺めたところ。

池の方も、護岸の石組みが出来、現在は池の真ん中あたりにある瀬落ち部分の工事が進んでいます。


2月には、池周辺に植える木の選定に山に行く予定です。
ご献木いただいた木々を選んでまいります。
クラウドファンディング最終章はいよいよ残り4日となりました。
最終日2月5日(水)23時まで引き続きよろしくお願いいたします。
リターン
5,000円+システム利用料

お気持ちコース
●お礼メール
返礼品をお送りしない代わりにより多くの金額をプロジェクトに活用させていただきます。
※お一人様複数口のご支援も可能です。
- 申込数
- 232
- 在庫数
- 制限なし
- 発送完了予定月
- 2023年6月
10,000円+システム利用料

御朱印・クリアファイル(絵:士農力)・つつじ苑入苑券2枚コース
●お礼状
●根津神社HPへのご芳名掲載(希望者)
●根津神社御朱印
●A5クリアファイル(絵:士農力)
●つつじ苑入苑券2枚(有効期限なし)
つつじまつりは毎年4/1~4/30に実施しています。早咲き、遅咲きあり長い期間楽しめます。
※有効期限はございませんが、入苑されない場合でもご返金できかねますのでご注意ください。
※お一人様複数口のご支援も可能です。
- 申込数
- 187
- 在庫数
- 制限なし
- 発送完了予定月
- 2023年8月
5,000円+システム利用料

お気持ちコース
●お礼メール
返礼品をお送りしない代わりにより多くの金額をプロジェクトに活用させていただきます。
※お一人様複数口のご支援も可能です。
- 申込数
- 232
- 在庫数
- 制限なし
- 発送完了予定月
- 2023年6月
10,000円+システム利用料

御朱印・クリアファイル(絵:士農力)・つつじ苑入苑券2枚コース
●お礼状
●根津神社HPへのご芳名掲載(希望者)
●根津神社御朱印
●A5クリアファイル(絵:士農力)
●つつじ苑入苑券2枚(有効期限なし)
つつじまつりは毎年4/1~4/30に実施しています。早咲き、遅咲きあり長い期間楽しめます。
※有効期限はございませんが、入苑されない場合でもご返金できかねますのでご注意ください。
※お一人様複数口のご支援も可能です。
- 申込数
- 187
- 在庫数
- 制限なし
- 発送完了予定月
- 2023年8月

東京国立博物館|価値ある文化財を救い出す。源氏物語図屏風、修理へ
#伝統文化
- 現在
- 59,505,000円
- 寄付者
- 2,847人
- 残り
- 30日

【静岡県竜巻】緊急支援を開始!被災地を応援してください
- 現在
- 568,000円
- 寄付者
- 69人
- 残り
- 21日

国立科学博物館マンスリーサポーター|地球の宝を守りつづける
- 総計
- 679人

埼玉おもちゃ美術館 子育て支援のためのバス増便にご支援を!
- 現在
- 145,000円
- 支援者
- 14人
- 残り
- 2日

ぬるぬるのお引越|万博・落合陽一 null²パビリオン次なる場所へ
- 現在
- 216,725,000円
- 支援者
- 12,283人
- 残り
- 30日

たった7人でも夢は叶う!玉村ミニバレークラブ、2度目の全国大会へ!
- 現在
- 67,000円
- 支援者
- 12人
- 残り
- 4日

坂本龍馬ゆかりの御神木、倒壊。京都・武信稲荷神社「希望の再建」へ
- 現在
- 6,475,000円
- 支援者
- 338人
- 残り
- 47日
鳥取県三朝温泉の夏の風物詩 ロングラン夏花火を存続させたい!
- 支援総額
- 1,645,000円
- 支援者
- 84人
- 終了日
- 7/14
抗がん剤治療中の方が笑顔で外出できるネイルチップをプレゼントしたい
- 支援総額
- 2,447,000円
- 支援者
- 128人
- 終了日
- 11/11

ウクライナ支援|危機の長期化で困窮する女性や子どもたちに支援を
- 寄付総額
- 1,275,000円
- 寄付者
- 72人
- 終了日
- 8/21
全国の小さな酒蔵さんの日本酒を大阪の皆さんに飲んでもらいたい
- 支援総額
- 1,531,000円
- 支援者
- 73人
- 終了日
- 6/15

金沢発!未来のがん研究者を育む「がん克服プロジェクト」
- 寄付総額
- 3,134,000円
- 寄付者
- 155人
- 終了日
- 8/29








