静岡市清水区蒲原の築古の空き家をゲストハウスとして再生したい

支援総額
目標金額 500,000円
- 支援者
- 7人
- 募集終了日
- 2024年7月31日

KOMAGANEから元気プロジェクト『マンスリーサポーター募集』
#地域文化
- 総計
- 0人

丸岡城下に新たな歴史を 日向御前・国姫の顕彰モニュメントを未来へ
#地域文化
- 現在
- 6,320,000円
- 支援者
- 78人
- 残り
- 19日

開湯400年!お客様を温かくお迎えする歓迎標のリニューアルに挑戦!
#地域文化
- 現在
- 4,495,000円
- 支援者
- 233人
- 残り
- 22日

地域文化を残し、課題を創造的に解決する 『めぐる、友の会』会員募集
#地域文化
- 総計
- 100人

『d design travel』を続けたいvol.36 徳島号
#地域文化
- 現在
- 742,000円
- 支援者
- 69人
- 残り
- 29日

お国帰りプロジェクト|田沼家ゆかりの名刀を皆で守り、後世へ
#地域文化
- 現在
- 725,000円
- 支援者
- 12人
- 残り
- 71日

美肌&ぬる湯の名湯を再び。廃業温泉の復活にご支援を。TV等も応援中
#地域文化
- 現在
- 389,000円
- 支援者
- 35人
- 残り
- 24日
プロジェクト本文
▶▶▶ 中文主页 ◀◀◀
▶▶▶ English page ◀◀◀
▶▶▶ How to Process your Funding Support(click HERE) ◀◀◀
自己紹介
ページをご覧いただき、ありがとうございます。SEA STUDIO株式会社です。
弊社は、東京と上海を拠点として主に建築、空間デザインを手掛ける一級建築士事務所(一級東京都知事登録 第64865号)です。
SEA(海)という社名には、国籍や文化の背景を問わず、それぞれ能力のある個人(水滴)が集まり、互いを補い、協働することで次第に川、引いては大きな海となって、社会に大きく貢献したいという願いが込められています。
ポストコロナの今後、数年で再び増加すると考えられる外国人観光客に向けて、約10年の現地でのビジネス経験で培った中国語と中国文化への理解を生かして、接客や情報発信を行います。外国人観光客を積極的に招き入れ、外国文化に興味がある地域の方々にも訪れてもらえるよう、気軽に交流できる地域の国際交流施設としてゲストハウスを運営し、独創性のあるPRを行います。
ゲストハウスをつくるのは初めてですが、中国上海での生活とアジア、ヨーロッパでのバックパッカー経験をもとに、あったら楽しい国際交流もできたりするゲストハウスの場づくりをしていければと考えています。
プロジェクトを立ち上げたきっかけ
事業の実施地域となる静岡市清水区蒲原は、東海道沿いの宿場街としての歴史的背景を持ち、価値ある歴史建築物が残っています。
蒲原海岸、御殿山といった海と山のある風光明媚な自然環境に囲まれており、富士山の近くでもあります。興津や三保ではマリンスポーツ、御殿山では花見やハイキング、富士では登山とウィンタースポーツが楽しめます。
静岡、富士、沼津の市街地等、周辺都市部へのアクセスが良く、東京首都圏へも電車、新幹線や高速バスが直通しており、豊富な観光資源と立地の利便性を兼ね備える稀有な場所です。
清水区は近年人口減少が続き、購買力の低下によって地域の産業が衰退の傾向にあり、再活性化と持続化が大きな課題です。全国的に問題となっている住宅の空き家化についても、蒲原付近も例に漏れず増加傾向にあり、老朽化する空き家の安全性担保と有効利用を考える必要があります。
昨年、偶然にも蒲原の築古の空き家に巡り会い、初めて見たとき直してくれと訴えかけてくるように感じました。改修計画を練るうちに何とか再生して現代に生きる建築として蘇らせたいと思うようになり、今に至ります。
今回の対象物件は、蒲原宿に見られる歴史的価値の高い古建築とは違い、ありふれた築古戸建てです。今後の蒲原や清水区、その他の日本の人口減少地域では、こういった普通の空き家が今よりもたくさん出てきて、どう使うかが問われてくると思います。だからこそ、多少手間をかけてでも普通の築古戸建てを改修し、地域活性のきっかけ生むような、地方型の空き家再生モデルをつくる意味があるのではないかと感じています。
私にとって初めての再生プロジェクトなので、今は個人レベルで進めていますが、このプロセスと今後の運営を広く公開して、みなさんに興味をもっていただくことで、社会性のあるもう少し大きな動きにしていきたいと考えています。そのきっかけとして施設整備段階からプロジェクトを公開し、クラウドファウンディングを利用した実施を考えました。
プロジェクトの内容
今回のプロジェクトでは、以下実施してまいります。
1.老朽化した築古戸建てを購入、改修し複合型ゲストハウスに転用します。
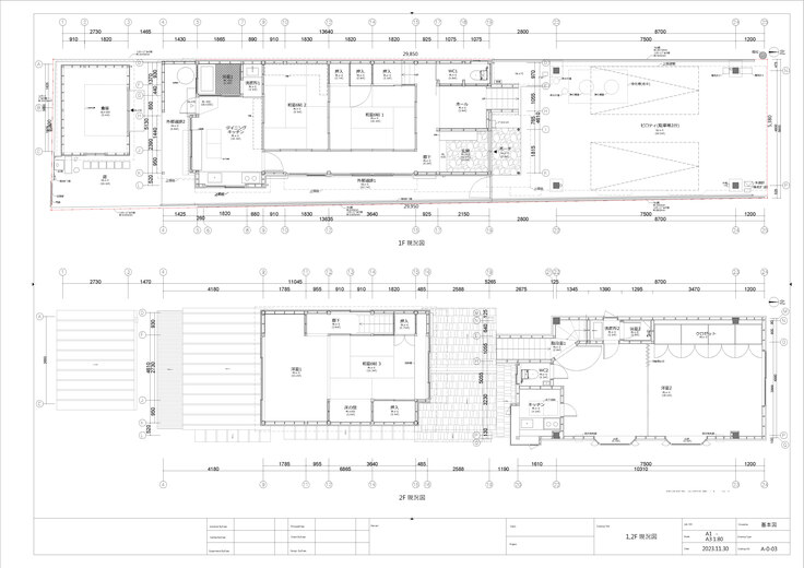
対象物件は土地面積約180㎡、建物面積約140㎡の2階建ての築古戸建てです。築60年の木造部分と築37年の鉄骨造部分を併せ持つ混構造の特徴的な物件です。
対象物件は、築60年の木造の母屋に、築37年の鉄骨造の増築棟と木造の倉庫が追加されています。
敷地形状は、短冊状の縦長で、入り口の道路沿いから順に母屋の1階に2つに分かれる畳の広間が1つ、その奥にキッチン、ダイニングと洗面所、浴室があります。その更に奥に坪庭があり、庭には離れの倉庫が1つ建っています。2階にも2つに分かれる和室が1つあります。増築棟の2階にキッチン、トイレ、シャワーが併設された広い洋室が1つ、屋上はルーフテラスになっています。
既存建築の問題点として、母屋のキッチン、ダイニング部分の床の破損、増築棟の塔屋からの漏水、母屋と増築棟に共通して床、壁、天井、建具等の内装材と水回りの劣化の問題があります。また、住宅宿泊事業法の住宅宿泊事業者の届出を出すため、火災報知機や消火器等の設置が必要になります。
これらを解決するリノベーション工事と空間づくりを約660万円で行い、民泊営業できるゲストハウス、屋外ルーフテラス、民泊非営業時にイベント及びコワーキングスペース等として利用できる空間が併設された複合型ゲストハウスをつくります。
2.古民家風の和室を活かし、建築の新旧が体感できるゲストハウスをつくります。
木造と鉄骨造を併用した既存住宅の特徴を活かし、古民家の雰囲気を残しながらも現代的で清潔感のある空間を兼ね備えたインバウンドとワーケーション需要両方に応えるゲストハウスを実現します。
・1階は和室の広間を活かし、民泊営業時には宿泊室、非営業時にはイベント及びコワーキングスペース等として利用できる空間をつくります。さらにダイニングキッチンは宿泊者が自由に利用できるコモンスペースとし、その奥に屋外でくつろげる中庭をつくります。
・2階は和室を活かした宿泊室と、鉄骨造の洋室を転用したミーティングラウンジとスタッフルーム(主に運営管理用)をつくります。
・鉄骨増築棟の屋上は人工芝を敷き、アウトドアチェアやテーブルを設置して屋外ルーフテラスとして設え、貸スペースとして利用できるようにします。

・1階のピロティ駐車場は白色で統一し、イベントや展示などに使える半屋外の多目的スペースとして設えます。
3.目玉になるサービスやイベントを企画し、地域の内外からの集客を促します。
・1階ピロティを必要に応じて室内イベントスペースとして使用し、定期的に蒲原周辺の地元事業者と協力して、地元産業のPRイベントを行い話題作りをします。

・屋外ルーフテラスを利用して、不定期に地元の海産物を活かしたBBQサービスの提供や、テントやアウトドアギアを設置し、キャンプの要素を取り入れて集客を行い、ルーフテラスの魅力を用いた独自の地産地消サービスを行います。

・宿泊予約のない日や、民泊営業可能日数の180日を超えてしまった日に関しては、母屋1階の宿泊室をコワーキングスペース等として開放し、地域の憩いの場となるようにします。
4.ブランド名を「のまやど」とし、外国人、日本人旅行者と地域の小規模事業者に向けてSNS、宿泊予約プラットフォームからPRし集客を増やします。
・宿泊室、屋外ルーフテラス
外国人旅行者、中国人旅行者、ワーケーション日本人旅行者、首都圏家族旅行者、学校クラブ、サークル等の団体利用者、サッカー観戦遠征旅行者、地域の団体利用者等
・屋内イベントスペース
静岡市、富士市の小規模事業者、地域住民等
・コワーキングスペース
地域のIT、デザイン系フリーランス小規模事業者
地域の副業をする主婦、サラリーマン
国内テレワーク移住者、ワーケーション日本人旅行者
外国人小規模事業者等

施設を表すブランド名は「のまやど」として、日本らしいおもてなし、親しみやすさ、暖かさ、等をイメージできるブランディングを考えます。名前の由来は元々遊牧民を意味し昨今ではリモートワーカーを表し、放浪の旅をイメージできる「ノマド」と「宿」を掛け合わせた造語です。

ポストコロナに見込めるインバウンド需要を見据え、主に外国人旅行者の獲得を目指します。2024年現時点で訪日客数が過去最高だった2019年を上回る勢いで回復してきています。2019年時点で、静岡に訪れる外国人観光客の48.8%が中国人でした。インバウンド需要回復時により多くの中国人旅行者に訪れてもらうことも重要と考えています。
PRについて、外国向けのSNSとしてWeChat,抖音,小红书等、日本向けのものとしてユーチューブ、インスタグラム、TIK TOK等のを使用し、中国と日本の10~30代の若年層にゲストハウスと蒲原周辺の観光資源等の情報を発信します。
宿泊個室の予約について、外国向けの予約プラットフォームとして携程,AIR BNB,BOOKING.COM等を、日本向けのものとして楽天TRAVEL、じゃらん、AGODA等を使用し、インターネット上で支払い手続きを完結でき、利便性が高くなるよう工夫します。
PRに用いるSNSは、外国人が頻繁に利用するInstagram、WeChat、抖音、小红书等を考えており、外国人の幅広い層に情報発信することができます。
国内のワーケーション市場向けに日本人リモートワーカーへのPRも行い、県内外からも宿泊者を獲得します。
SNSで展開する広告内容は、主に蒲原周辺の観光資源である蒲原海岸、三保松原海岸、由比漁港、東海道沿いの歴史的建築物、富士山等に関連した情報や、地元の飲食店、商店、ゲストハウス内部の様子の紹介を考えています。
静岡市お試しテレワーク体験事業における対象宿泊施設となることを目指し、定期的に国内ワーケーション宿泊者に訪れてもらえるように努めます。
【のまやど概要】
所在地:静岡県静岡市清水区蒲原中158-3
利用可能時間:10:00~22:00
施設:民泊営業日
和風宿泊室1(定員3名)
和風宿泊室2(定員3名)
和風宿泊室1、2一体利用(定員6名)
和風宿泊室3(定員3名)
和風宿泊室4(定員2名)
和風宿泊室3、4一体利用(定員5名)
全室貸切(定員11名)
民泊非営業日
室内イベントスペース
コワーキングスペース
マンスリーシェアハウス
全日共通
半屋外イベントスペース
ルーフテラス
8月に施設完成、開業準備後10月オープン予定です。

導入する設備、工事、複合貸型グストハウス開業準備のため、以下が必要となります。
1.複合型ゲストハウスとして使用するための改修工事 約6,000,000円
・解体工事 ・内装工事 ・外装、屋根補修工事 ・電気、設備工事
2.家具、必要設備の設置 約500,000円
・宿泊施設用家具、家電、備品の設置
・ルーフテラス用家具、備品の設置
・イベントスペース用家具、備品の設置
・コワーキングスペース用家具、備品の設置
3.消防設備、管理システムの整備 約 100,000円
・スマートロックの設置
・住宅用火災報知器の設置
・消火器の設置
概算費用合計 約¥6,600,000
クラウドファウンディングでご支援いただいた資金は、主に改修工事費の一部に使用させていただき、施設整備の充実を図ります。
プロジェクトの展望・ビジョン
海外旅行者と地域住民が気軽に交流でき、外国の語学、文化が学べる場の創出。
今後数年で、再び増加すると考えられる外国人観光客に、多く来てもらえるよう、これまで約10年の上海でのビジネスで培った中国語と、中国文化への理解を、観光客への対応や、SNSや、OTAを用いた情報発信に生かして、外国人観光客を積極的に招くとともに、施設をイベント及びコワーキングスペース等として積極的に開放することで、地域の国際交流施設として運営します。
蒲原のまちづくりに貢献する集客施設の実現。
施設1階のピロティや、民泊非営業時の広間を利用し、特産品である桜えびや静岡茶等の関連商品の展示、試食、試飲等を行い、商品販売を促進して地域経済の収益増加に貢献します。
地域の協力者である静岡市清水商工会は、蒲原支所のみならず、由比・興津・庵原・小島にも支所を有しており、桜えびやお茶等の地元の特産品を取り扱っている事業者が、会員として所属しています。そのため、地元の飲食店や小売店等を紹介や地元の事業者との連携をスムーズに行い、サービスの提供を図ることができます。
築古戸建て空き家の再生ロールモデルになります。
空き家有効利用のモデルケースとして、築古戸建てを改修してインバウンド、ワーケーション需要に応える複合貸スペースへ転用して収益を得るビジネスモデルを確立し、全国的な社会問題の解決策の一つを提示します。
歌川広重の浮世絵にあるように、実は風光明媚でアウトドアアクティビティを楽しめる蒲原の魅力を存分に引き出すきっかけとなる場所をつくりたいと考えています。
まだ見ぬ日本の魅力をみなさんと一緒に見つけていきたいので、ぜひご支援よろしくお願いします!
- プロジェクト実行責任者:
- 梅澤一充(SEA STUDIO株式会社)
- プロジェクト実施完了日:
- 2024年10月1日
プロジェクト概要と集めた資金の使途
SEA STUDIO株式会社が、蒲原中の物件のゲストハウスへのリノベーション工事を完了し、民泊の届出、必要備品等を揃え開業します。クラウドファウンディングでご支援いただいた資金は、主に改修工事費の一部に使用させていただき、施設整備の充実を図ります。
リスク&チャレンジ
- プロジェクトを実施する上で必要になる資格や許認可について
- 住宅宿泊事業者の届出は、2024年9月30日までに取得します。
- リターンを実施する上で必要になる資格や許認可について
- 住宅宿泊事業者の届出は、2024年9月30日までに取得します。
- プロジェクトに必要な金額と目標金額の差額について
- 必要金額と目標金額の差額は、自己資金で対応します。
あなたのシェアでプロジェクトをさらに応援しよう!
プロフィール
あなたのシェアでプロジェクトをさらに応援しよう!
リターン
3,000円+システム利用料
お気持ちコース
・感謝のメールをお送り致します。
・報告レポート(PDF)
- 申込数
- 2
- 在庫数
- 制限なし
- 発送完了予定月
- 2024年10月
10,000円+システム利用料
〜3人用個室1泊無料券
・〜3人用個室1泊無料券をお送りいたします。
※有効期限:発行日から6ヶ月内
・感謝のメールをお送りいたします。
- 申込数
- 1
- 在庫数
- 制限なし
- 発送完了予定月
- 2024年10月
3,000円+システム利用料
お気持ちコース
・感謝のメールをお送り致します。
・報告レポート(PDF)
- 申込数
- 2
- 在庫数
- 制限なし
- 発送完了予定月
- 2024年10月
10,000円+システム利用料
〜3人用個室1泊無料券
・〜3人用個室1泊無料券をお送りいたします。
※有効期限:発行日から6ヶ月内
・感謝のメールをお送りいたします。
- 申込数
- 1
- 在庫数
- 制限なし
- 発送完了予定月
- 2024年10月















































