
支援総額
目標金額 2,000,000円
- 支援者
- 163人
- 募集終了日
- 2022年3月21日
ついに公開!スタジオの内側お見せします!!
前回までおとのわの立ち上げからこれまでの実践をお話しさせていただきました。
そしてようやく今回!これから建設するスタジオの詳細をお話しできるところに辿り着きました!
先日インテリアの打ち合わせもほぼほぼ終わり、配置も決まってあとは建てるだけというところに差し掛かりつつあります。着工は予定では4月下旬になる予定です。
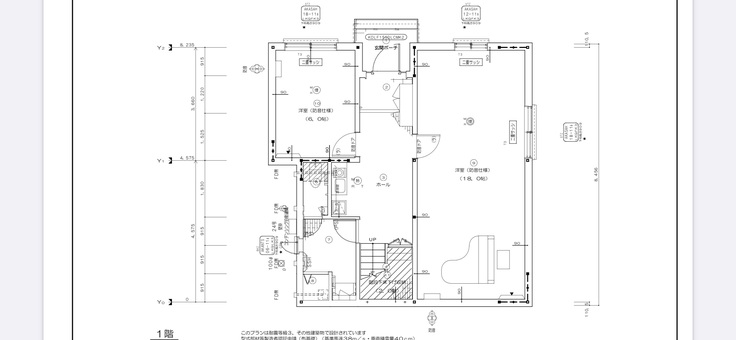
スタジオの間取り
ひとまず図面をご覧ください。

ここからまた少しだけ変更になってはいますが、
概ねこのような感じです!
図面の上側が玄関で、入ると真っ直ぐ玄関ホールになっています。
イベント開催時はここに机を置いて受付にします♫
図面右側の大きな防音室がコワーキング型スタジオです。
こちらのお部屋は基本的にはドロップイン料金(1日入場券)で、みんなで好きなように音を出したり、その日居合わせた人たちでちょっとしたコンサートをやってみたりするスペースにしたいと思っています。グランドピアノも置きます!
照明もこだわって、コンサート開催時にはピアノ側(ステージ側)と客席側の照明を別々に操作でき、さらにステージ側にはスポットライト、客席側の暗転時には間接照明がふわっと灯ります。
客席数20席くらいの小さなコンサートもこちらでどんどん開催していきます!
もちろん発表会等での貸し切り利用も可能です♫
また、小ぶりな防音室もご用意しています。(図面左側)
こちらは個人練習やグループの練習、レッスンをする方・受ける方にご利用いただきたいと思っています。6畳ほどのスペースにアップライトピアノを設置したお部屋です。
さらに、よく見ていただくと階段のところにもスペースがあるのがお分かりいただけますか?
ここは普通は階段下収納にする場所ですが、せっかくなのでここにも防音ドアを設置して、WEB配信ルームとしてお使い頂こうと思っています。
オンラインレッスンやライブ配信に是非ご利用ください。
ということで、音を出すスペースは以上3部屋です。
一階にはそのほか、小さなキッチンがあり、洗面台・トイレ・シャワールームがあります。
そして階段を登っていただくと、屋上に出るわけですが…
ここからの眺めがまあ最高なんです!
建設予定地は少し高いところにある土地なのでここから筑波山をはじめとした山々が一望できます!この屋上で自然豊かな眺めを楽しみながら、ゆったりくつろいだり、企画の打ち合わせをしたり、BBQしたり、星を眺めたり、そんな場所になればいいなと思っています♫
スタジオの配置と周辺の様子

汚い字でごめんなさい…😅
スタジオ予定地周辺の様子と配置は大体こんな感じです。
スタジオの後ろには池があり、その背後には竹林があります。自然に囲まれた静かな場所です。
また、一段低い土地には日本家屋の母屋があり、こちらもコミュニティスペースとして開いていきます。
母屋の方では音は出せませんが、ゆっくりくつろいだり、仕事や読書をしたり、打ち合わせをしたり、ワークショップやイベントの開催もどんどんやっていこうと思っています。
場の価値はそこに集う人にある
ここまで「場」のお話をしてきましたが、結局場の価値というのは、そこに人と人との繋がりが生まれ、まだここにない何かが生まれることにあると思います。
特に音楽に関してはこの場が「音楽と遭遇する場所」になってほしい。
そのためには音楽だけでなくほかの何かと掛け合わせる必要があると考えます。
この地域の豊かな自然を味わう自然体験の機会や、地域の子供たちに向けた体験学習の機会、地域の食や農に触れ合える機会、などなど、多様な地域文化と関わらせながら多くの方に是非音楽と“遭遇“していただきたいのです。
この場所が誰にとっても居心地の良い心癒される場所となり、学びの深まる場所となり、そして、そこに当たり前のように音楽がともにある場となることで、音楽が日常の文化となる第一歩にできたらと思います。
その歩みは必ずや音楽家の活躍の場の創出と地域の音楽文化の充実の両輪を叶えるものと確信しております。
この場をとおして、多様な他者が出会い、混ざり、まだ誰も見たことがないワクワクする何かが生まれる場所になることを願って、一歩ずつ進んで参ります。
まずは何よりこのクラファンがサクセスするように!
【あと4日】引き続きご支援・応援のほどよろしくお願いいたします!!!
リターン
1,000円

【ラストスパート応援】おとのわスタジオ3時間利用
・おとのわをお試しで利用できる権利
利用期限:OPENから1年間
利用回数:ドロップイン1回(3時間)
- 申込数
- 12
- 在庫数
- 制限なし
- 発送完了予定月
- 2022年12月
3,000円

【応援】おとのわ応援団の一員に
・おとのわステッカー1枚
・支援者限定のFacebookコミュニティーへのご招待
OPENまでの様子を伝える立ち上げまでの様子を伝える、 OPEN後の情報はウェブサイトで更新します
・おとのわをお試しで利用できる権利
利用期限:OPENから1年間
利用回数:ドロップイン1回
- 申込数
- 44
- 在庫数
- 制限なし
- 発送完了予定月
- 2022年12月
1,000円

【ラストスパート応援】おとのわスタジオ3時間利用
・おとのわをお試しで利用できる権利
利用期限:OPENから1年間
利用回数:ドロップイン1回(3時間)
- 申込数
- 12
- 在庫数
- 制限なし
- 発送完了予定月
- 2022年12月
3,000円

【応援】おとのわ応援団の一員に
・おとのわステッカー1枚
・支援者限定のFacebookコミュニティーへのご招待
OPENまでの様子を伝える立ち上げまでの様子を伝える、 OPEN後の情報はウェブサイトで更新します
・おとのわをお試しで利用できる権利
利用期限:OPENから1年間
利用回数:ドロップイン1回
- 申込数
- 44
- 在庫数
- 制限なし
- 発送完了予定月
- 2022年12月

茨城おとのわプロジェクトはスポンサーを募集しています!
- 総計
- 1人

アフガニスタン冬の食糧支援!飢餓が心配される子どもたちに給食を!
- 現在
- 371,500円
- 寄付者
- 13人
- 残り
- 41日

アレッシ・バウスフィールド・リンドバーグ×東京佼成WO夢の響宴へ!
- 現在
- 4,225,000円
- 支援者
- 108人
- 残り
- 40日

吉村作治エジプト調査隊 太陽の船 大エジプト博物館展示へ【第一弾】
- 現在
- 5,880,000円
- 支援者
- 154人
- 残り
- 67日

ウガンダ貧困支援プロジェクトオーガニックコーヒー ニジイロビーンズ
- 現在
- 25,000円
- 支援者
- 5人
- 残り
- 10日

ぬるぬるのお引越|万博・落合陽一 null²パビリオン次なる場所へ
#ものづくり
- 現在
- 217,678,000円
- 支援者
- 12,377人
- 残り
- 29日

ワンラブ助っ人募集中!|ルワンダでずっと義足を作り続けるために!
- 総計
- 88人









