
支援総額
1,683,000円
目標金額 1,500,000円
- 支援者
- 75人
- 募集終了日
- 2014年9月28日
https://readyfor.jp/projects/tanami_gekijyo?sns_share_token=&utm_source=pj_share_url&utm_medium=social
2014年09月16日 07:25
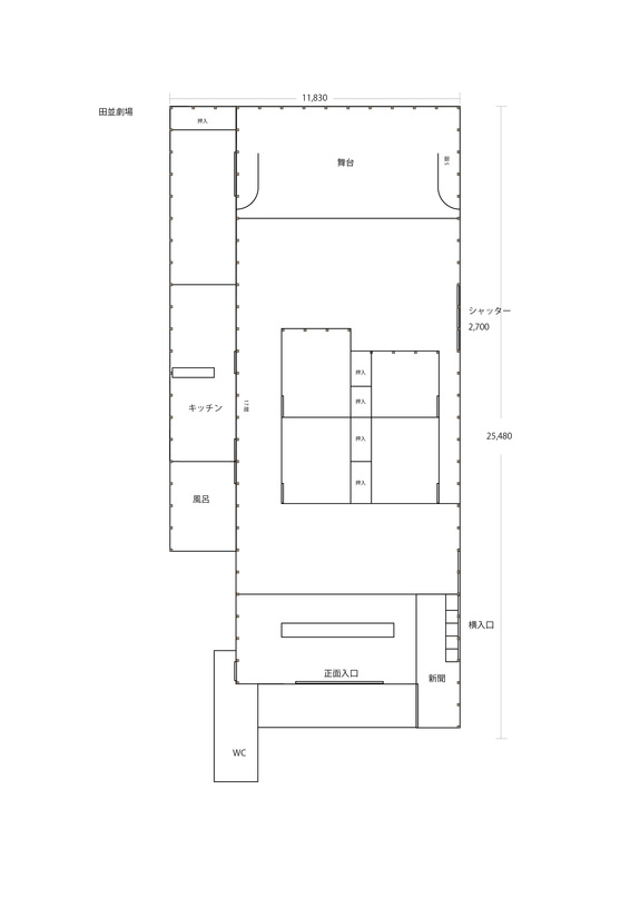
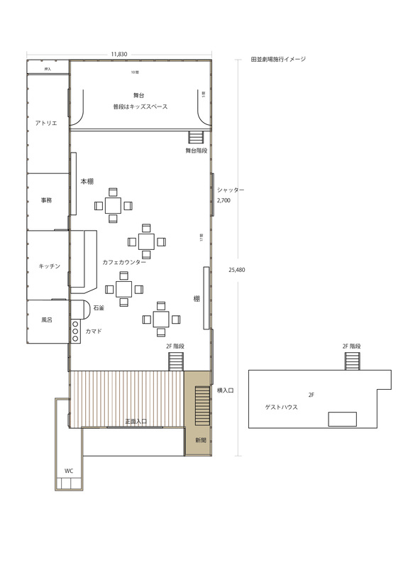
ざっとした見通し
田並劇場、クラウド・ファンディングも無事目標額に達し、再生への道のりが少しづつ開けてきました。
さて、10月半ばまでは林が多忙でなかなか手が付けられない状態なわけだが、その後のざっとした見通しを。
10月半ばに、手伝いたいと言ってくれている方、興味を持っている方を集めての「大片付け大会」ここからスタート!(ぜひ皆さん手伝って下さい!!)
11月上旬までに、これからの現場の休憩室となるキッチン周りのざっとした修復、資材置き場としての舞台横の控え室の修復
11月半ばまでに、劇場内パーテーション撤去、天井撤去
11月半ばに、劇場周り足場組み。
11月半ばから12月にかけて、屋根修理および外壁修理
2015年1月から、内部耐震補強、トイレ周りの改修
などと続いていく予定!


リターン
3,000円
田並劇場オリジナルポストカード・サンクスレター
- 申込数
- 21
- 在庫数
- 制限なし
10,000円
田並劇場オリジナルポストカード・サンクスレター
田並劇場オリジナルトートバック&田並劇場内に支援者リストプレートに名前を記載
- 申込数
- 47
- 在庫数
- 制限なし
3,000円
田並劇場オリジナルポストカード・サンクスレター
- 申込数
- 21
- 在庫数
- 制限なし
10,000円
田並劇場オリジナルポストカード・サンクスレター
田並劇場オリジナルトートバック&田並劇場内に支援者リストプレートに名前を記載
- 申込数
- 47
- 在庫数
- 制限なし
1 ~ 1/ 5
このページを見た人はこんなプロジェクトもチェックしています
国立大学法人茨城大学五浦美術文化研究所
浅見俊哉 Shunya.ASAMI
奇談プロジェクト実行委員会
星野工房
早稲田大学国際文学館(村上春樹ライブラリー)
原 源郎
一般社団法人Get in touch

五浦美術文化研究所|雨漏り進む有形文化財・長屋門に一刻も早い修繕を
78%
- 現在
- 3,120,000円
- 寄付者
- 101人
- 残り
- 32日

葛飾の町工場をリノベして、「青写真」専門ギャラリーをつくりたい!
34%
- 現在
- 349,500円
- 支援者
- 39人
- 残り
- 9日

古文書に眠る妖怪たちを、現代に甦らせたい! ~妖怪絵師が紡ぐ奇談~
231%
- 現在
- 231,000円
- 支援者
- 22人
- 残り
- 10日

「沖縄のピカソ小波津有希」ダウン症重度画家の人生をマンガ化
1%
- 現在
- 35,000円
- 支援者
- 5人
- 残り
- 6日

文学とジャズで世界をつなぐ-村上春樹ライブラリーの挑戦にご支援を
123%
- 現在
- 4,944,000円
- 寄付者
- 207人
- 残り
- 71日

アレッシ・バウスフィールド・リンドバーグ×東京佼成WO夢の響宴へ!
89%
- 現在
- 4,225,000円
- 支援者
- 108人
- 残り
- 39日

「まぜこぜ」の社会をめざして|Getフレンズ募集中!
継続寄付
- 総計
- 38人











