寄付総額
目標金額 4,500,000円
- 寄付者
- 225人
- 募集終了日
- 2024年8月31日
ラオ・フレンズ小児病院って?
私たちの現在の活動は、ラオスで小児病院を運営すること。将来ラオス人たちだけで、質の高い心のこもった医療が提供できる人材を育成することです。病院を作り、人材を育成し、現地に根付く医療が提供できるようになることが目的ですが、皆さんが想像されるラオスの病院とは、どんなイメージでしょうか?
毎日働いている職場なので、私は皆さんがどのように想像しているのかということをまったく考えたことがなかったのですが、ある日病院を訪問された日本の方に「立派で驚きました。もっと小屋のようなものを想像していました。」と言われました。私はそれを聞いて、びっくり仰天!まさか、そのようなイメージだとは、微塵にも思っていなかったのですが、確かに『貧困』のイメージからは、小屋のような病院を思い浮かべても不思議ではないですね。
そこで、今日は実際の病院がどのような建物で施設はどんな感じなのかをお伝えしようと思います。
こちらが、ドローンで撮った建物の写真。囲われているところが、ラオ・フレンズ小児病院(LFHC)です。

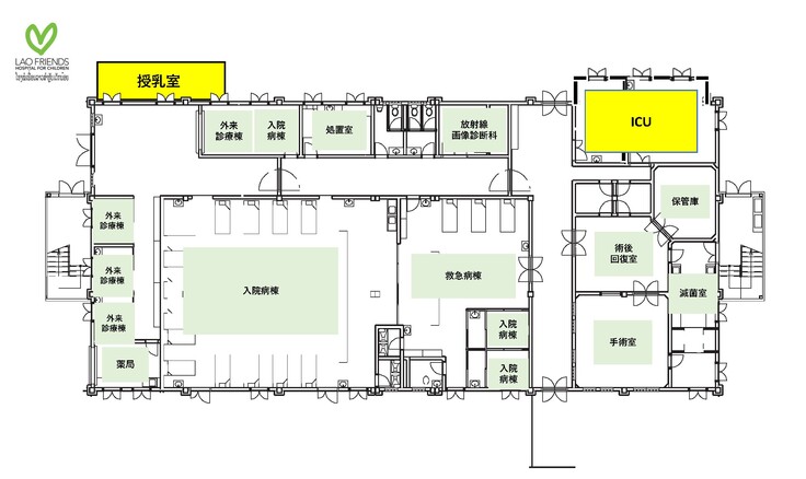
下の写真が内部の図面です。黄色の部分はこの数年で新しく増改築した部分となります。ICUは年々増える患者さんの受け入れに従い、重症な患者さんが、他の郡や他県から送られてくることが増えています。ICUができる前には、救急病棟の一部で受け入れていましたが、コロナの蔓延により、患者さんのベッドの間隔を広くとらなければならず、受け入れ可能な人数が限られるなど適切な救急医療を提供できなくなりました。また重症患者さんの対応も周囲のバタバタの中では、診療の質は下がることはたやすく想像できるでしょう。そこで、重症患者さんのためのICU
を開設することになりました。

もう一つの新設場所は、授乳室。この建築に当たっては、2021年のクラウドファンディングで建築費をご支援いただき、完成した建物です。(詳細はhttps://readyfor.jp/projects/LFHC-Breastfeeding)
こちらは、一般の入院病棟の写真です。(プライバシー保護のためにぼかしを入れています。)大部屋になっており、現在大小合わせて26ベッドがこの部屋に設置されています。日本では大きくても6人や8人部屋でしょうか。できるだけたくさんの患者さんを受け入れるには、小さい部屋をたくさん作ることはできず、このような形になっています。これでも足りず、廊下にもベッドを並べているのが現状です。

図面で分かるように、外来、入院施設、レントゲン室、手術室が設置されていますので、日本の病院の印象からは遠いかもしれませんが、小屋ほど小さい規模ではないことが伝わったでしょうか?
フレンズ(フレンズ・ウィズアウト・ア・ボーダー)が目指すのは、国のモデルとなれる病院です。できるだけコストがかからないようにしなければなりませんが、命を守るために必要な最低限の施設・設備は整えなければなりません。この小さな箱の中に、優秀な人材がぎゅっと詰まって将来の目標へ向けてみんなで頑張っています!
引き続きどうぞよろしくお願いいたします。
ギフト
3,000円+システム利用料

3,000円プラン
・ラオスからの感謝のフォトレター
・活動報告書
・寄付金領収証
・フレンズの活動がわかるメールニュースのお届け
・寄付者限定イベントへのご招待(2025年8月開催予定。ご案内をクラウドファンディング終了後に別途お送りします。)
※ギフト送付先にご記入いただいたお名前が寄付金領収証の宛名となります寄付金領収証の日付は、フレンズ・ウィズアウト・ア・ボーダーJAPANへ入金される2024年10月の日付となり、2024年の所得に対する確定申告の対象です。2024年12月までに送付いたします。
- 申込数
- 117
- 在庫数
- 制限なし
- 発送完了予定月
- 2025年8月
10,000円+システム利用料

1万円プラン
・ラオスからの感謝のフォトレター
・活動報告書
・寄付金領収証
・フレンズの活動がわかるメールニュースのお届け
・寄付者限定イベントへのご招待(2025年8月開催予定。ご案内をクラウドファンディング終了後に別途お送りします。)
※ギフト送付先にご記入いただいたお名前が寄付金領収証の宛名となります。寄付金領収証の日付は、フレンズ・ウィズアウト・ア・ボーダーJAPANへ入金される2024年10月の日付となり、2024年の所得に対する確定申告の対象です。2024年12月までに送付いたします。
- 申込数
- 99
- 在庫数
- 制限なし
- 発送完了予定月
- 2025年8月
3,000円+システム利用料

3,000円プラン
・ラオスからの感謝のフォトレター
・活動報告書
・寄付金領収証
・フレンズの活動がわかるメールニュースのお届け
・寄付者限定イベントへのご招待(2025年8月開催予定。ご案内をクラウドファンディング終了後に別途お送りします。)
※ギフト送付先にご記入いただいたお名前が寄付金領収証の宛名となります寄付金領収証の日付は、フレンズ・ウィズアウト・ア・ボーダーJAPANへ入金される2024年10月の日付となり、2024年の所得に対する確定申告の対象です。2024年12月までに送付いたします。
- 申込数
- 117
- 在庫数
- 制限なし
- 発送完了予定月
- 2025年8月
10,000円+システム利用料

1万円プラン
・ラオスからの感謝のフォトレター
・活動報告書
・寄付金領収証
・フレンズの活動がわかるメールニュースのお届け
・寄付者限定イベントへのご招待(2025年8月開催予定。ご案内をクラウドファンディング終了後に別途お送りします。)
※ギフト送付先にご記入いただいたお名前が寄付金領収証の宛名となります。寄付金領収証の日付は、フレンズ・ウィズアウト・ア・ボーダーJAPANへ入金される2024年10月の日付となり、2024年の所得に対する確定申告の対象です。2024年12月までに送付いたします。
- 申込数
- 99
- 在庫数
- 制限なし
- 発送完了予定月
- 2025年8月

新たな命を守る1分がここにある。新生児専用救急車の更新にご支援を
- 現在
- 47,788,659円
- 寄付者
- 1,362人
- 残り
- 8日

【緊急支援|大分市 大規模火災へのご支援を】
#医療・福祉
- 現在
- 2,598,000円
- 寄付者
- 314人
- 残り
- 41日

緊急支援|フィリピン地震へのご支援を
- 現在
- 1,628,000円
- 寄付者
- 222人
- 残り
- 10日

貧困・虐待などで親を頼れない若者に伴走支援を|若者おうえん基金
- 現在
- 7,125,000円
- 支援者
- 332人
- 残り
- 6日

JWCサポーター大募集中!傷付いた野生動物を救いたい
- 総計
- 253人

多くの猫を幸せにするためのご支援を〜(マンスリーらぶサポ)
- 総計
- 63人

緊急支援|被災重なるフィリピン、台風25号被害へのご支援を
- 現在
- 570,000円
- 寄付者
- 64人
- 残り
- 36日

香川県で一般・ジュニア対象のテニストーナメント大会を開催したい!
- 支援総額
- 367,000円
- 支援者
- 18人
- 終了日
- 8/15

アメリカンを楽しめるdog park +cafe
- 支援総額
- 85,000円
- 支援者
- 6人
- 終了日
- 3/15

国境を越えて、人と人をつなぐ音楽を届けたい!新たな挑戦にご支援を
- 支援総額
- 1,815,000円
- 支援者
- 89人
- 終了日
- 8/10

誰でも気軽にワンコインで受けれる乳がん検診イベントを開催!
- 支援総額
- 1,204,000円
- 支援者
- 146人
- 終了日
- 9/18
地域教育として、中学生にディベートを教えて大会を開催したい!
- 支援総額
- 85,000円
- 支援者
- 24人
- 終了日
- 9/27
栃ナビ!カレンダー募金【台風19号被害による復興支援】
- 支援総額
- 21,000円
- 支援者
- 17人
- 終了日
- 12/26
子ども、若いママ、シニア…コミュニティホールを開かれた街の縁側に
- 寄付総額
- 1,415,000円
- 寄付者
- 106人
- 終了日
- 10/31










