支援総額
目標金額 2,000,000円
- 支援者
- 126人
- 募集終了日
- 2025年3月31日
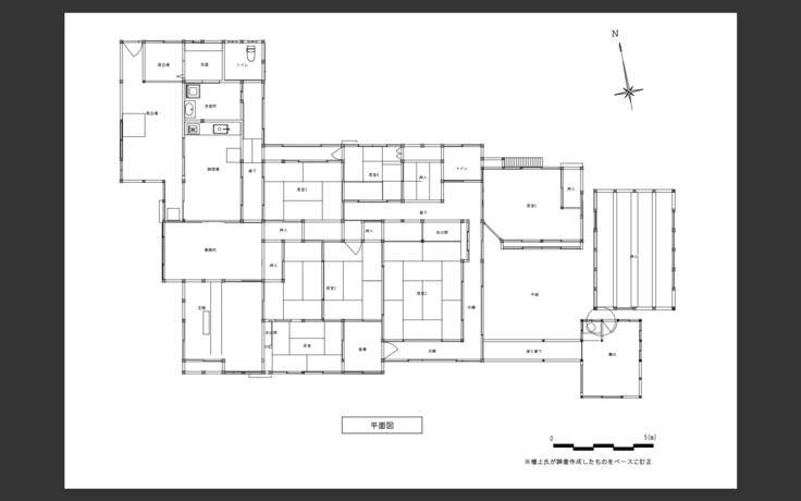
大名屋敷の間取りと活用 Floor plan and Utilization
2022年の3Dスキャンデータです。
3D scan data for the year 2022.
庭園の名残 A garden

大座敷 Tatami room

私たちは4つのベッドルームと四つのクリエイティブに活用できる部屋を持っています。
We have four bedrooms and four rooms that can be utilized creatively.


図面とアクセス Drawings and Access
またマネージャーの部屋を一つとギャラリーに変えることができるストレージを持っています。
中庭の橋を通り抜けるとその先は創作用の部屋がDIYでいくつか用意されています。
It also has one manager's room and storage that could be converted into a gallery cafe.
After passing through the courtyard bridge, there are several DIY rooms for creative work beyond.

1F
2F



日本の歴史的空間の中に宿泊し、また対応する創作環境が設計されています!This creative environment is designed to accommodate and respond to Japanese historical spaces!
クラウドファンディングは3/31 2025 までです。
応援よろしく願いいたします。!
Crowdfunding ends 3/31 2025.
Thank you for your support!

リターン
2,000,000円+システム利用料

團上祐志描きおろし絵画(130号または100号) + 團上邸の見学 + 團上祐志アーティストコラボ日本茶セットサイン入り
●團上祐志描きおろし絵画(130号または100号)
※蜜蝋画もしくは油絵をご選択いただけます
※額装なし
※画像は参考作品です
●團上邸の見学
※参加人数:1口のご支援につき1名様まで
※実施日程:2025年5月〜2026年3月までの期間で1回
※事前予約が必要です、InstagramのDMまでご連絡ください。(アカウントID:@dangami_house)
※詳細は2025年4月末までに個別メールにてご連絡いたします
※お食事の提供はございません
●團上祐志アーティストコラボ日本茶セット(4つ1セット)サイン入り
※1つあたり3g×4つ
●お礼のメッセージ
●webサイト/instagramで支援者一覧としてお名前紹介(希望制)
- 申込数
- 0
- 在庫数
- 1
- 発送完了予定月
- 2026年3月
1,500,000円+システム利用料

團上祐志描きおろし絵画(100号)
●團上祐志描きおろし絵画(100号)
※蜜蝋画もしくは油絵をご選択いただけます
※額装なし
※画像は参考作品です
●お礼のメッセージ
●webサイト/instagramで支援者一覧としてお名前紹介(希望制)
- 申込数
- 0
- 在庫数
- 1
- 発送完了予定月
- 2026年3月
2,000,000円+システム利用料

團上祐志描きおろし絵画(130号または100号) + 團上邸の見学 + 團上祐志アーティストコラボ日本茶セットサイン入り
●團上祐志描きおろし絵画(130号または100号)
※蜜蝋画もしくは油絵をご選択いただけます
※額装なし
※画像は参考作品です
●團上邸の見学
※参加人数:1口のご支援につき1名様まで
※実施日程:2025年5月〜2026年3月までの期間で1回
※事前予約が必要です、InstagramのDMまでご連絡ください。(アカウントID:@dangami_house)
※詳細は2025年4月末までに個別メールにてご連絡いたします
※お食事の提供はございません
●團上祐志アーティストコラボ日本茶セット(4つ1セット)サイン入り
※1つあたり3g×4つ
●お礼のメッセージ
●webサイト/instagramで支援者一覧としてお名前紹介(希望制)
- 申込数
- 0
- 在庫数
- 1
- 発送完了予定月
- 2026年3月
1,500,000円+システム利用料

團上祐志描きおろし絵画(100号)
●團上祐志描きおろし絵画(100号)
※蜜蝋画もしくは油絵をご選択いただけます
※額装なし
※画像は参考作品です
●お礼のメッセージ
●webサイト/instagramで支援者一覧としてお名前紹介(希望制)
- 申込数
- 0
- 在庫数
- 1
- 発送完了予定月
- 2026年3月

久賀島の歴史を後世に語り伝えたい・潜伏キリシタン資料館サポーター
- 総計
- 4人

夜の世界で孤立・困窮している女性たちに、必要な支援を届けたい
- 総計
- 162人

えん罪のない世界へ!IPJサポーター
- 総計
- 79人

聖武天皇が建立し日本武尊を祀る礒崎神社本殿の修復にご支援ください!
- 現在
- 677,000円
- 支援者
- 122人
- 残り
- 12時間

明日の災害に備える仕組みにご支援を|カーシェアサポーター募集
- 総計
- 3人

困窮する女性や女子を支援~1日33円からの人道支援サポーター募集!
- 総計
- 21人

沖縄が誇る歴史文化をつなぐ 琉球びんがた事業協同組合50年目の挑戦
- 現在
- 1,285,000円
- 支援者
- 60人
- 残り
- 15日

.png)
.jpg)

















