
支援総額
1,499,000円
目標金額 1,000,000円
- 支援者
- 162人
- 募集終了日
- 2023年8月31日
https://readyfor.jp/projects/kiosuma?sns_share_token=&utm_source=pj_share_url&utm_medium=social
2023年08月24日 20:33
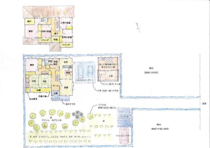
海で遊び趣味を楽しんだ三世代の家
仙台市荒浜の元住民で「記憶の中の住まい」プロジェクトで聞き取りに応じて下さり、又、今回の冊子への掲載にも同意して下さった元)東北工業大学教授/現)有限会社ジーマデザイン代表 中島 敏様から支援と共に応援のメッセージをいただきました。
「仙台市若林区荒浜では、大変お世話になりました。その時に描いて頂きました図面は、時々見て、懐かしく思っております。記憶が日々薄れる中で、私の唯一の想い出となっており、多分私が成仏した折、子供や孫達の記憶の中に残るものと確信しています。
暑くて日々の活動大変ですが、御健闘を心より労いたく思います。ありがとうございます。」
中島様のお住まいは「海で遊び趣味を楽しんだ三世代の家」と題して、冊子に掲載されます。
夏になると海水浴客で賑わう海水浴場のすぐ傍らに暮していらっしゃいました。
400坪の敷地の畑で野菜を作り、梅干し、自家製味噌も作っていました。
聞き取りの時、最後に空に向かって「あの味噌がもう一度食べたい!」と叫んでいらしたことが思い出されます。
そんな確かに海辺にあった26の暮らしを冊子にして、後世に伝えていきます。

配置図・間取り図
リターン
1,000円+システム利用料
感謝のメール
●感謝のメールを送り致します。
- 申込数
- 21
- 在庫数
- 制限なし
- 発送完了予定月
- 2024年2月
3,000円+システム利用料
全力応援
感謝のお手紙をお送り致します。
出来上がった「記憶中の住まい」冊子をお送り致します。
- 申込数
- 45
- 在庫数
- 制限なし
- 発送完了予定月
- 2024年2月
1,000円+システム利用料
感謝のメール
●感謝のメールを送り致します。
- 申込数
- 21
- 在庫数
- 制限なし
- 発送完了予定月
- 2024年2月
3,000円+システム利用料
全力応援
感謝のお手紙をお送り致します。
出来上がった「記憶中の住まい」冊子をお送り致します。
- 申込数
- 45
- 在庫数
- 制限なし
- 発送完了予定月
- 2024年2月
1 ~ 1/ 21
このページを見た人はこんなプロジェクトもチェックしています
天王寺動物園
千石船「気仙丸」利活用推進協議会
一般財団法人栗田美術館
NPO法人メディアージ(漆田義孝)
TEAM AS ONE
一般社団法人 日本カーシェアリング協会 
富田林市

アムールトラ「ショウヘイ」に、みんなでつくるおもちゃ箱をプレゼント
#観光
31%
- 現在
- 4,389,000円
- 支援者
- 268人
- 残り
- 71日

時代と津波を超えた船匠の誇りを守れ!気仙丸保全プロジェクト
10%
- 現在
- 303,927円
- 支援者
- 31人
- 残り
- 34日

栗田美術館 | 伊萬里・鍋島の名品を未来へ。文化財修復プロジェクト
84%
- 現在
- 2,540,000円
- 支援者
- 97人
- 残り
- 22日

仙台発、政治や選挙を身近にする活動をサポートしてください!
継続寄付
- 総計
- 23人

チカラをひとつに。₋ Jリーグ TEAM AS ONE募金 ₋
継続寄付
- 総計
- 2人

明日の災害に備える仕組みにご支援を|カーシェアサポーター募集
継続寄付
- 総計
- 3人

富田林市が災害派遣トイレネットワークに参加。清潔なトイレを避難所へ
14%
- 現在
- 1,120,000円
- 寄付者
- 25人
- 残り
- 17日
最近見たプロジェクト












