寄付総額
目標金額 10,000,000円
- 寄付者
- 489人
- 募集終了日
- 2025年1月31日
〈ロー・ハウス〉の大きさはどのくらい?実際の展示室で実験しました!
国立新美術館のクラウドファンディングは現在約68%、支援者様の数は232人となりました。
終了まで残り2週間強。引き続きご支援のほどどうぞよろしくお願いいたします。
さて、今回の資金の使い道となる企画展「リビング・モダニティ」は、3月19日からの会期に向けて、展覧会そのものの準備も進んでいます。
▼先週の活動報告では、本展覧会の監修者であり建築家の岸和郎氏に、ロー・ハウスについて解説いただきました
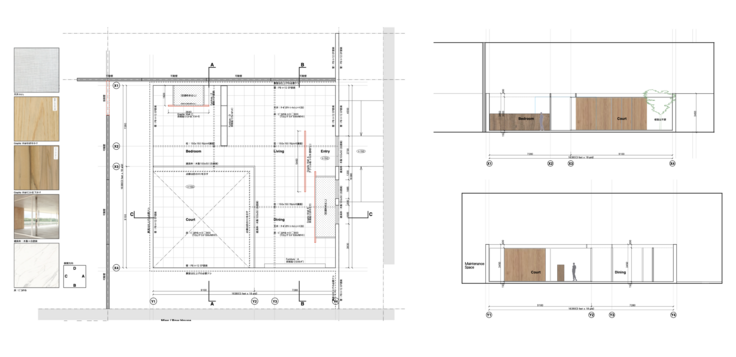
今回無料エリアに展示する「ロー・ハウス」は、建築家の巨匠ミース・ファン・デル・ローエがいくつもの計画案を残していますが、建物として "実在する" ものは世界にひとつもありません。参考になる写真や映像のない中で、残された図面や資料をもとに模型を作り、手探りで実現していくことになります。
そこで、先日館内では、「ロー・ハウス」を実現する2階の展示室で、実際どのくらいの広さになるのか"実験"を行いました。
①まずは、国立新美術館ならではの巨大な可動壁を動かしてスペースを確保。高さ8m、重さ2.5tもあり動かすのもひと苦労。
②緑色の養生テープで囲ったエリアが、ロー・ハウス全体の広さ
③そのうち橙色のテープで囲ったところが、庭のエリアです
④この広さをスタッフ2人が歩く様子を、高いところから撮影しました
「ロー・ハウス」は、16.4m×16.4mのスクエア型。約150畳におよぶ空間に、「こんなに広いんだ!」とスタッフもあらためてびっくり。
実際には、この空間の中に、「ロー・ハウス」の設計図に基づいて柱なども建てていきます。

さらに内部には、テーブル、チェア、ソファなどさまざまな家具を配置する計画も。

来場者のみなさまに、設計された当時の住宅の中にいるかのような体験をしていただけるような展示を目指しています。
また、このロー・ハウスの展示設計を担当している建築家の長田直之氏からもコメントが届きました。
今回実現を目指す「Row Houses」(1931)は、彼の代表作である「バルセロナ・パビリオン」(1929)、「トゥーゲントハット邸」(1930)と同じ時期に構想された計画案です。
この時期彼は、「コート・ハウス」とよばれる、コート=外部と住居=内部の新しい関係を模索した多くのスケッチを残しています。
実現しなかった建築は、実現した建築以上に私たちに何を語るのか? おそらく、世界で初めてのミースの「コート・ハウス」の原寸大の展示になるでしょう。国立新美術館の展示室だからこそ叶う、スケールの大きな空間の実現にご協力ください。

今後も、続報を楽しみにお待ちください。
|【おまけ】映像メイキング
ちなみにこのテープ貼り作業、熟練のスタッフが一辺貼るだけでも一苦労でした。「ロー・ハウス」の広さを体感します。
さらに、この映像は高所作業台に乗って撮影しました。
普段は、この作業台を使って壁の造作なども行っています。国立新美術館の展示空間を作り上げるのに欠かせない機械です。
ギフト
15,000円+システム利用料

【一押し】【限定グッズ】大判トートバッグ
●オリジナル大判トートバッグ
国立新美術館のイラストとロゴが印刷された大判トートバッグ
サイズ:横約550mm×縦310mm×マチ180mm
素材:リネン(麻)とコットンの混紡生地
●お礼状
●リビング・モダニティ展招待券1枚
●展示室・HPへお名前掲載(ご希望の方のみ)
●寄附金領収書
- 申込数
- 121
- 在庫数
- 制限なし
- 発送完了予定月
- 2025年3月
10,000円+システム利用料

【限定グッズ】外観モチーフハンドタオル
●外観モチーフハンドタオル
国立新美術館の外観をイメージしたウェーブがデザインされた、非売品のハンドタオル。赤色または青色いずれか1枚をお届けします(色はお選びいただけません)。
サイズ:約26×24.5cm
今治タオル
●お礼状
●リビング・モダニティ展招待券1枚
●展示室・HPへお名前掲載(ご希望の方のみ)
●寄附金領収書
- 申込数
- 67
- 在庫数
- 制限なし
- 発送完了予定月
- 2025年3月
15,000円+システム利用料

【一押し】【限定グッズ】大判トートバッグ
●オリジナル大判トートバッグ
国立新美術館のイラストとロゴが印刷された大判トートバッグ
サイズ:横約550mm×縦310mm×マチ180mm
素材:リネン(麻)とコットンの混紡生地
●お礼状
●リビング・モダニティ展招待券1枚
●展示室・HPへお名前掲載(ご希望の方のみ)
●寄附金領収書
- 申込数
- 121
- 在庫数
- 制限なし
- 発送完了予定月
- 2025年3月
10,000円+システム利用料

【限定グッズ】外観モチーフハンドタオル
●外観モチーフハンドタオル
国立新美術館の外観をイメージしたウェーブがデザインされた、非売品のハンドタオル。赤色または青色いずれか1枚をお届けします(色はお選びいただけません)。
サイズ:約26×24.5cm
今治タオル
●お礼状
●リビング・モダニティ展招待券1枚
●展示室・HPへお名前掲載(ご希望の方のみ)
●寄附金領収書
- 申込数
- 67
- 在庫数
- 制限なし
- 発送完了予定月
- 2025年3月

東京国立博物館|価値ある文化財を救い出す。源氏物語図屏風、修理へ
#伝統文化
- 現在
- 59,405,000円
- 寄付者
- 2,843人
- 残り
- 30日

国立科学博物館マンスリーサポーター|地球の宝を守りつづける
- 総計
- 679人

ぬるぬるのお引越|万博・落合陽一 null²パビリオン次なる場所へ
- 現在
- 216,684,000円
- 支援者
- 12,280人
- 残り
- 30日

聖武天皇が建立し日本武尊を祀る礒崎神社本殿の修復にご支援ください!
- 現在
- 672,000円
- 支援者
- 120人
- 残り
- 1日

地域に息づく宝を次世代へ!鞆淵八幡神社の修復にご協力ください
- 現在
- 3,710,000円
- 支援者
- 206人
- 残り
- 23日

久賀島の歴史を後世に語り伝えたい・潜伏キリシタン資料館サポーター
- 総計
- 4人

夜の世界で孤立・困窮している女性たちに、必要な支援を届けたい
- 総計
- 162人

東京二期会|日本のオペラ文化を未来へ。コロナ禍の今、ご支援を
- 支援総額
- 6,055,000円
- 支援者
- 210人
- 終了日
- 4/20

U-22プログラミング・コンテスト2025 開催サポーター募集!!
- 支援総額
- 5,000円
- 支援者
- 1人
- 終了日
- 3/20

息子と歩む道。障がい者や高齢者も一緒にスキーを楽しめる環境を
- 支援総額
- 3,595,000円
- 支援者
- 191人
- 終了日
- 7/31
アニメ漫画商店を下町商店街で存続させたい。
- 支援総額
- 10,000円
- 支援者
- 1人
- 終了日
- 4/3
岡山に囲炉裏と露天風呂でほっこりできるゲストハウスを作りたい
- 支援総額
- 1,127,087円
- 支援者
- 98人
- 終了日
- 10/18
汚くなった壁にみんなで絵を描こう!!
- 支援総額
- 500円
- 支援者
- 1人
- 終了日
- 9/22

のぼりべつクマ牧場|クマへの恩返し作戦!動物福祉の向上へ。
- 支援総額
- 4,355,000円
- 支援者
- 367人
- 終了日
- 12/24






















