
支援総額
575,000円
目標金額 500,000円
- 支援者
- 71人
- 募集終了日
- 2025年2月9日
https://readyfor.jp/projects/wisteria?sns_share_token=&utm_source=pj_share_url&utm_medium=social
2025年01月16日 14:26
浜松市に相談をしてきました。
高丘北の物件
保証会社の審査が通ったので建築行政課と障害福祉課に相談しに行ってきました。
また、書類関係が揃ったので政策金融公庫さんに融資の相談を行ってきました。
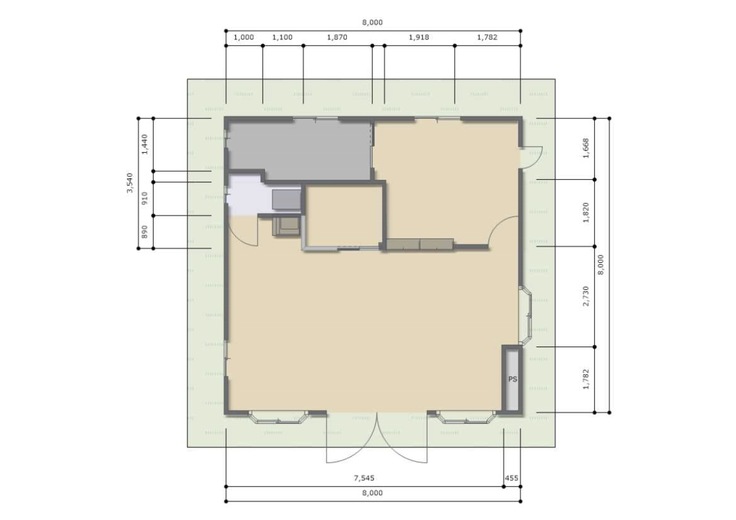
下記は事業所の図面です。どこが何になるかはお楽しみです。
少しずつですが、開業に向けて歩んでおります。
応援よろしくお願いいたします。
リターン
2,000円+システム利用料
感謝のメール
感謝のメールをお送りいたします。
- 申込数
- 25
- 在庫数
- 制限なし
- 発送完了予定月
- 2025年4月
5,000円+システム利用料
感謝のメール及びWebページにお名前掲載
感謝のメールをお送りいたします。
また弊社Webページにてお名前を掲載させていただきます。(希望者のみ)
- 申込数
- 65
- 在庫数
- 制限なし
- 発送完了予定月
- 2025年4月
2,000円+システム利用料
感謝のメール
感謝のメールをお送りいたします。
- 申込数
- 25
- 在庫数
- 制限なし
- 発送完了予定月
- 2025年4月
5,000円+システム利用料
感謝のメール及びWebページにお名前掲載
感謝のメールをお送りいたします。
また弊社Webページにてお名前を掲載させていただきます。(希望者のみ)
- 申込数
- 65
- 在庫数
- 制限なし
- 発送完了予定月
- 2025年4月
1 ~ 1/ 3
このページを見た人はこんなプロジェクトもチェックしています
TAKAHIRO.OZEKI
ピースウィンズ・ジャパン
金井 しのぶ
旭川医科大学病院
とざわ
秋田県大仙市文化財課
NPO法人セブンデイズ

地域の野良猫を守りたい!小さな命にTNRと医療を届けるプロジェクト
33%
- 現在
- 40,000円
- 支援者
- 15人
- 残り
- 2日

【緊急支援|大分市 大規模火災へのご支援を】
#医療・福祉
396%
- 現在
- 3,961,000円
- 寄付者
- 478人
- 残り
- 40日

命を守る手術器械の職人技を次代へ。技術継承にご支援を
123%
- 現在
- 1,859,000円
- 支援者
- 56人
- 残り
- 9日

地域医療を守るため、ともに走ろう|ドクターカー更新プロジェクト
31%
- 現在
- 7,283,000円
- 寄付者
- 259人
- 残り
- 28日

市場流通0.1%以下の「国産ごま」を信州から全国へ世界へ発信
40%
- 現在
- 600,000円
- 支援者
- 27人
- 残り
- 9日

【第二弾】法隆寺金堂、火災で失った色彩|「鈴木空如」模写絵を未来へ
72%
- 現在
- 1,450,000円
- 寄付者
- 61人
- 残り
- 28日

救う命を選ばない。どんな犬猫も保護し続け福岡の里親さんを増やしたい
#動物
106%
- 現在
- 3,194,000円
- 支援者
- 301人
- 残り
- 20時間
最近見たプロジェクト
場面緘黙サポーターはるっぺ
環瀬戸内海会議
森康行
Minayogini
大須田 理人
社会福祉法人SHIP
kazuaki
成立
場面緘黙当事者経験者が働けるカフェイベントをやりたい!
158%
- 支援総額
- 238,000円
- 支援者
- 39人
- 終了日
- 1/31
成立

瀬戸内法50年プロジェクト
132%
- 支援総額
- 1,728,000円
- 支援者
- 193人
- 終了日
- 5/13
成立
娘の意思を知りたい。その為の装置購入を支援してください。
181%
- 支援総額
- 217,400円
- 支援者
- 64人
- 終了日
- 9/30
La Nature School International
- 支援総額
- 216,000円
- 支援者
- 26人
- 終了日
- 8/2
成立
19歳、ゼロ高等学校に入学しました!単身スペイン留学帰り
101%
- 支援総額
- 720,000円
- 支援者
- 31人
- 終了日
- 1/28
成立
「要領がよくないと思い込んでいる人」のための本を贈りたい!
103%
- 寄付総額
- 270,000円
- 寄付者
- 42人
- 終了日
- 3/1
障がいのある子どもたちの「お仕事体験」を通した学びの場作り
- 支援総額
- 216,000円
- 支援者
- 21人
- 終了日
- 9/30









